20% Off House Plans Sitewide Ends Sunday
20% Off House Plans Sitewide Ends Sunday

House Plan: DFD-7884

See All 12 Photos > (photographs may reflect modified homes)
© copyright by designer
SQ FT
4,730
BEDS
3
BATHS
4
STORIES
2
CARS
3
HOUSE PLANS SALE 
START AT  $1,892.00
For questions and help, live chat, email or call us at 877-895-5299
Floor Plans
Click to Zoom In on Floor Plan
 
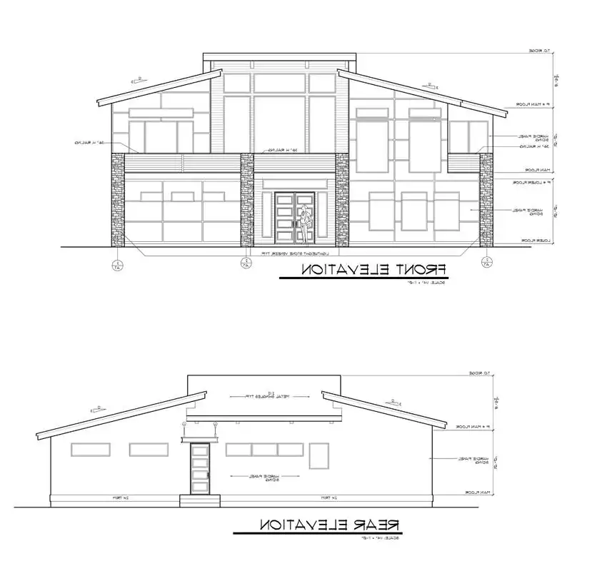
About House Plan 7884:
Strikingly beautiful from the very first glance, this 3 bed, 4.5 bath modern home is a wonderful option for a new or growing family. You will love the spacious interior design which features 4,730 square feet of living space, including an attached 3-car garage and a massive second-story deck! The first level is a great place for the family to hang out together, as it offers a parlor, an exercise room, and even a private media room. Also downstairs is a full bed and bath, a private option for kids and guests alike. The second floor has all of the main living spaces, highlighted by gorgeous natural light. Here you'll find the island kitchen, along with the family room, dining room, and access to your stunning wraparound deck. This floor also provides the other 2 bedrooms, including the master with its en-suite and private second story balcony. 
House Plan Pricing
STEP 1 Select Your Package

PDF Single Build


Digital plans emailed to you in PDF format that allows for printing copies and sharing electronically with contractors, subs, decorators, and more. This package includes a license to build the home one time.

PDF Single Build $2,365
Most recommended package

5 Printed Sets


Five Printed Sets of Residential Construction Drawings are typically 24” x 36” documents and come with a license to construct a single residence shipped to a physical address. Keep in mind PDF Plan Packages are our most popular choice which allows you to print as many copies as you need and to electronically send files to your builder, subcontractors, etc.

5 Printed Sets $2,665
Five printed sets of house plans

8 Printed Sets


Eight Printed Sets of Construction Drawings, typically 24” x 36” documents, with a license to construct a single residence shipped to your physical address. PDF Plan Packages are our most popular choice which allows you to print as many copies as you need and to electronically send files to your builder, subcontractors, bank/mortgage reps, material stores, decorators and more.

8 Printed Sets $2,815
Eight printed sets of house plans

CAD + PDF Single Build


CAD files are a complete set of construction drawings delivered electronically. They can be used for any type of modification—including major design changes and engineering—and include a release granting permission to modify the plan. Most CAD plan orders are emailed the same or next business day.
 
This package also comes with a PDF set of plans and a copyright release for making modifications and printing unlimited copies.
 
CAD files are provided in .dwg format. For details on the specific CAD program used, please refer to the PLAN DETAILS section located above the floor plan on each plan’s page.

CAD + PDF Single Build $4,493
2D electronic editable computer files
STEP 2 Need To Reverse This Plan?
STEP 3 CHOOSE YOUR FOUNDATION
STEP 4 OPTIONAL ADD-ONS
Subtotal:
$2365
FREE SHIPPING
 
Plan Details
See All Details
Finished Square Footage
2,389 Sq. Ft.
Main Level:
2,341 Sq. Ft.
Upper Level:
4,730 Sq. Ft.
Total:
Room Details
3
Bedrooms:
4
Full Baths:
General House Information
2
Number of Stories:
59' 0"
Width:
73' 0"
Depth:
Single
Dwelling Number:
Unfinished Square Footage
619 Sq. Ft.
Garage:
673 Sq. Ft.
Deck:
GARAGE
Front
Garage Location:
3
Garage Size:
Exterior Style
Contemporary
Modern
Collections
Kitchens
Luxury
Open Floor Plan
Outdoor Living
Split Bedroom
Foundation
Crawlspace
Slab
Framing Information
Combination
Roof Framing:
2x6
Exterior Wall Framing:
Roof Pitch
3:12
Primary:
Insulation (R)
0
Exterior Wall:
0
Interior Wall:
0
Ceiling:
0
Floor:
House And Ceiling Heights
10
First Floor Ceiling:
10
Second Floor Ceiling:
30' 0"
Maximum House Height:
Key Features
2 Story Volume
Attached
Bonus Room
Covered Front Porch
Deck
Dining Room
Double Vanity Sink
Exercise Room
Family Room
Fireplace
Great Room
Home Office
Inverted Living
Laundry 1st Fl
Library/Media Rm
Primary Bdrm Upstairs
Mud Room
Open Floor Plan
Separate Tub and Shower
Side-entry
Slab
Split Bedrooms
Suited for corner lot
Suited for sloping lot
Suited for view lot
Walk-in Closet

Our Guarantees

  • Only the highest quality plans
  • Int’l Residential Code Compliant
  • Full structural details on all plans
  • Best plan price guarantee
  • Free modification Estimates
  • Builder-ready construction drawings
  • Expert advice from leading designers
  •  PDFs NOW!™ plans in minutes
  • 100% satisfaction guarantee
  • Free Home Building Organizer

See terms opt out anytime