20% off ALL House Plans Sitewide
20% off ALL House Plans Sitewide

House Plan: DFD-8315

See All 7 Photos > (photographs may reflect modified homes)
© copyright by designer
SQ FT
4,090
BEDS
4
BATHS
4.5
STORIES
3
CARS
4
PLANS FROM $2,045
For questions and help, live chat, email or call us at 877-895-5299
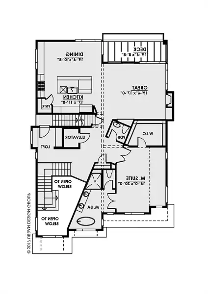
Floor Plans
Click to Zoom In on Floor Plan
 
About House Plan 8315:
With designs that look as though they are straight out of an art museum, this contemporary plan is reminiscent of a modern masterpiece. 3 floors, 4 beds and 4.5 baths means that there is plenty of space for everyone to enjoy in this home that is perfectly suited for a narrow or sloping lot. And for another unique twist, move inside to discover that this plan has an inverted layout floor plan, meaning that the bedrooms are conveniently on the first floor, while the living spaces are on the top floor, with unbeatable views all around. The ground level features a drive-under 4-car garage, as well as your very own elevator, making this plan accessible to everyone. The main floor finds 3 auxiliary bedrooms, long with a large rec room for the kids, and a covered deck nearby. Upstairs is home to your gourmet kitchen and spacious great room, along with the stunning master suite and an equally impressive rear sundeck. 
House Plan Pricing
STEP 1 Select Your Package

PDF Single Build


Digital plans emailed to you in PDF format that allows for printing copies and sharing electronically with contractors, subs, decorators, and more. This package includes a license to build the home one time.

PDF Single Build $2,045
Most recommended package

5 Printed Sets


Five Printed Sets of Residential Construction Drawings are typically 24” x 36” documents and come with a license to construct a single residence shipped to a physical address. Keep in mind PDF Plan Packages are our most popular choice which allows you to print as many copies as you need and to electronically send files to your builder, subcontractors, etc.

5 Printed Sets $2,345
Five printed sets of house plans

8 Printed Sets


Eight Printed Sets of Construction Drawings, typically 24” x 36” documents, with a license to construct a single residence shipped to your physical address. PDF Plan Packages are our most popular choice which allows you to print as many copies as you need and to electronically send files to your builder, subcontractors, bank/mortgage reps, material stores, decorators and more.

8 Printed Sets $2,490
Eight printed sets of house plans

CAD + PDF Single Build


CAD files are a complete set of construction drawings delivered electronically. They can be used for any type of modification—including major design changes and engineering—and include a release granting permission to modify the plan. Most CAD plan orders are emailed the same or next business day.
 
This package also comes with a PDF set of plans and a copyright release for making modifications and printing unlimited copies.
 
CAD files are provided in .dwg format. For details on the specific CAD program used, please refer to the PLAN DETAILS section located above the floor plan on each plan’s page.

CAD + PDF Single Build $3,885
2D electronic editable computer files
STEP 2 Need To Reverse This Plan?
STEP 3 CHOOSE YOUR FOUNDATION
STEP 4 OPTIONAL ADD-ONS
Subtotal:
$2045
FREE SHIPPING
 
Plan Details
See All Details
Finished Square Footage
1,917 Sq. Ft.
Main Level:
1,938 Sq. Ft.
Upper Level:
338 Sq. Ft.
Lower Level:
4,090 Sq. Ft.
Total:
Room Details
4
Bedrooms:
4
Full Baths:
1
Half Baths:
General House Information
3
Number of Stories:
40' 0"
Width:
60' 0"
Depth:
Single
Dwelling Number:
Unfinished Square Footage
719 Sq. Ft.
Garage:
67 Sq. Ft.
Porch:
531 Sq. Ft.
Deck:
GARAGE
4
Garage Size:
Exterior Style
Contemporary
Modern
Collections
Budget
Luxury
Split Bedroom
Foundation
Basement
Crawl Space
Slab
Framing Information
Stick
Roof Framing:
2x6
Exterior Wall Framing:
Roof Pitch
3:12
Primary:
Insulation (R)
House And Ceiling Heights
9
First Floor Ceiling:
9
Second Floor Ceiling:
26' 4"
Maximum House Height:
Key Features
2 Story Volume
Attached
Basement
Bonus Room
Covered Rear Porch
Dining Room
Double Vanity Sink
Family Room
Front Porch
Front-entry
Inverted Living
Laundry 1st Fl
Primary Bdrm Upstairs
Rec Room
Separate Tub and Shower
Split Bedrooms
Suited for sloping lot
Tandem
Walk-in Closet

Our Guarantees

  • Only the highest quality plans
  • Int’l Residential Code Compliant
  • Full structural details on all plans
  • Best plan price guarantee
  • Free modification Estimates
  • Builder-ready construction drawings
  • Expert advice from leading designers
  •  PDFs NOW!™ plans in minutes
  • 100% satisfaction guarantee
  • Free Home Building Organizer