20% Off House Plans Sitewide Ends Sunday
20% Off House Plans Sitewide Ends Sunday

House Plan: DFD-8513

See All 2 Photos > (photographs may reflect modified homes)
© copyright by designer
SQ FT
7,489
BEDS
4
BATHS
4.5
STORIES
1.5
CARS
4
HOUSE PLANS SALE 
START AT  $2,686.40
For questions and help, live chat, email or call us at 877-895-5299
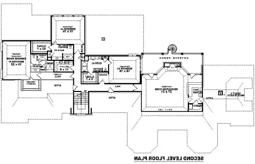
Floor Plans
Click to Zoom In on Floor Plan
 
House Plan 8513
House Plan Pricing
STEP 1 Select Your Package

PDF Bid Set


Home plans stamped "NOT FOR CONSTRUCTION" for cost estimating and bidding purposes only; a minimum 5 set plan package must be purchased within 90 days for a license to build plan set; a credit will be applied towards your house plan upgrade

PDF Bid Set $1,073
Digital set of plans for bidding purposes only

5 Printed Sets


Five Printed Sets of Residential Construction Drawings are typically 24” x 36” documents and come with a license to construct a single residence shipped to a physical address. Keep in mind PDF Plan Packages are our most popular choice which allows you to print as many copies as you need and to electronically send files to your builder, subcontractors, etc.

5 Printed Sets $3,358
Five printed sets of house plans

PDF Single Build


Digital plans emailed to you in PDF format that allows for printing copies and sharing electronically with contractors, subs, decorators, and more. This package includes a license to build the home one time.

PDF Single Build $4,790
Most recommended package

CAD + PDF Single Build


CAD files are a complete set of construction drawings delivered electronically. They can be used for any type of modification—including major design changes and engineering—and include a release granting permission to modify the plan. Most CAD plan orders are emailed the same or next business day.
 
This package also comes with a PDF set of plans and a copyright release for making modifications and printing unlimited copies.
 
CAD files are provided in .dwg format. For details on the specific CAD program used, please refer to the PLAN DETAILS section located above the floor plan on each plan’s page.

CAD + PDF Single Build $6,223
2D electronic editable computer files
STEP 2 Need To Reverse This Plan?
STEP 3 CHOOSE YOUR FOUNDATION
STEP 4 OPTIONAL ADD-ONS
Subtotal:
$3358
FREE SHIPPING
 
Plan Details
See All Details
Finished Square Footage
5,062 Sq. Ft.
Main Level:
2,427 Sq. Ft.
Upper Level:
7,489 Sq. Ft.
Total:
Room Details
4
Bedrooms:
4
Full Baths:
1
Half Baths:
General House Information
1.5
Number of Stories:
146' 0"
Width:
86' 0"
Depth:
Single
Dwelling Number:
2nd Floor
Bonus Access:
Unfinished Square Footage
705 Sq. Ft.
Bonus Room:
GARAGE
Side
Garage Location:
4
Garage Size:
Exterior Style
European
French Country
Traditional
Collections
Luxury
Old House Classics
Foundation
Slab
Framing Information
Stick
Roof Framing:
2x4
Exterior Wall Framing:
Roof Pitch
10
Primary:
14
Secondary:
Insulation (R)
Per IRC Climate Zones
House And Ceiling Heights
12
First Floor Ceiling:
9
Second Floor Ceiling:
34' 0"
Maximum House Height:
Key Features
Attached
Fireplace
outdoor storage
Rear Porch
Screened Porch/Sunroom
Slab

Our Guarantees

  • Only the highest quality plans
  • Int’l Residential Code Compliant
  • Full structural details on all plans
  • Best plan price guarantee
  • Free modification Estimates
  • Builder-ready construction drawings
  • Expert advice from leading designers
  •  PDFs NOW!™ plans in minutes
  • 100% satisfaction guarantee
  • Free Home Building Organizer