20% Off House Plans Sitewide Ends Tuesday
20% Off House Plans Sitewide Ends Tuesday

House Plan: DFD-8604

See All 5 Photos > (photographs may reflect modified homes)
© copyright by designer
SQ FT
1,548
BEDS
3
BATHS
2
STORIES
2
CARS
0
HOUSE PLANS SALE 
START AT  $860.00
For questions and help, live chat, email or call us at 877-895-5299
Floor Plans
Click to Zoom In on Floor Plan
 
About House Plan 8604:
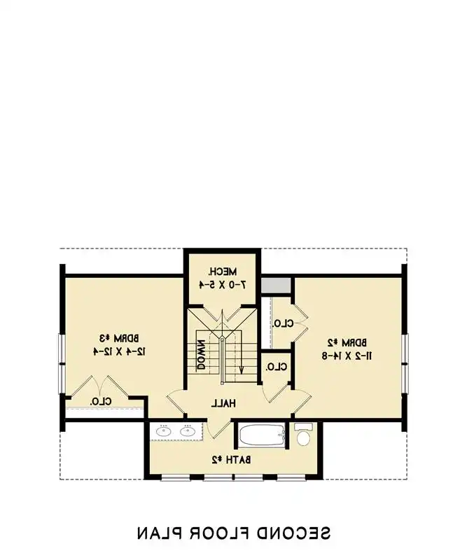
A great plan for just about any lot and any use, this cottage is actually quite spacious and totally affordable! 1,548 square feet of space provides 3 bedrooms, 2 bathrooms, and even room for future expansions. Check out the open family room and island kitchen, along with the full master and nearby covered porch. Upstairs you'll find 2 more bedrooms and a large full bath. Finally, the basement is a blank slate, ready for your finishing touches to make this home one-of-a-kind. Consider this plan as either a vacation home or even as a year-round dwelling, it is totally flexible!
House Plan Pricing
STEP 1 Select Your Package

PDF Bid Set


Home plans stamped "NOT FOR CONSTRUCTION" for cost estimating and bidding purposes only; a minimum 5 set plan package must be purchased within 90 days for a license to build plan set; a credit will be applied towards your house plan upgrade

PDF Bid Set $250
Digital set of plans for bidding purposes only

PDF Single Build


Digital plans emailed to you in PDF format that allows for printing copies and sharing electronically with contractors, subs, decorators, and more. This package includes a license to build the home one time.

PDF Single Build $1,075
Most recommended package

5 Printed Sets


Five Printed Sets of Residential Construction Drawings are typically 24” x 36” documents and come with a license to construct a single residence shipped to a physical address. Keep in mind PDF Plan Packages are our most popular choice which allows you to print as many copies as you need and to electronically send files to your builder, subcontractors, etc.

5 Printed Sets $1,175
Five printed sets of house plans

CAD + PDF Single Build


CAD files are a complete set of construction drawings delivered electronically. They can be used for any type of modification—including major design changes and engineering—and include a release granting permission to modify the plan. Most CAD plan orders are emailed the same or next business day.
 
This package also comes with a PDF set of plans and a copyright release for making modifications and printing unlimited copies.
 
CAD files are provided in .dwg format. For details on the specific CAD program used, please refer to the PLAN DETAILS section located above the floor plan on each plan’s page.

CAD + PDF Single Build $1,865
2D electronic editable computer files
STEP 2 Need To Reverse This Plan?
STEP 3 CHOOSE YOUR FOUNDATION
STEP 4 OPTIONAL ADD-ONS
Subtotal:
$1075
FREE SHIPPING
 
Plan Details
See All Details
Finished Square Footage
864 Sq. Ft.
Main Level:
684 Sq. Ft.
Upper Level:
864 Sq. Ft.
Lower Level:
1,548 Sq. Ft.
Total:
Room Details
3
Bedrooms:
2
Full Baths:
General House Information
2
Number of Stories:
36' 0"
Width:
24' 0"
Depth:
Single
Dwelling Number:
Unfinished Square Footage
160 Sq. Ft.
Porch:
GARAGE
0
Garage Size:
Exterior Style
Beach
Bungalow
Cape Cod
Cottage
Southern
Collections
Affordable
Budget
Builders
First Home
Tennessee
Vacation
Foundation
Basement
Slab
Framing Information
Stick
Roof Framing:
2x6
Exterior Wall Framing:
Roof Pitch
12/12
Primary:
4/12
Secondary:
Roof Load
#20DL
Live:
10DL
Dead:
100
Wind:
Insulation (R)
15
Exterior Wall:
0
Interior Wall:
38
Ceiling:
19
Floor:
House And Ceiling Heights
9
First Floor Ceiling:
9
Second Floor Ceiling:
29' 11"
Maximum House Height:
Key Features
Basement
Covered Front Porch
Foyer
Great Room
Primary Bdrm Main Floor
None
Suited for corner lot

Our Guarantees

  • Only the highest quality plans
  • Int’l Residential Code Compliant
  • Full structural details on all plans
  • Best plan price guarantee
  • Free modification Estimates
  • Builder-ready construction drawings
  • Expert advice from leading designers
  •  PDFs NOW!™ plans in minutes
  • 100% satisfaction guarantee
  • Free Home Building Organizer