20% off ALL House Plans Sitewide
20% off ALL House Plans Sitewide

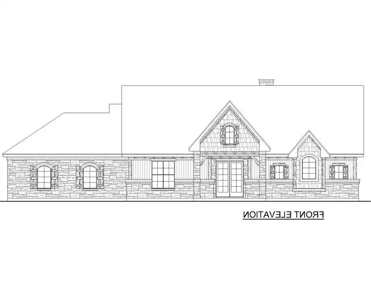
House Plan: DFD-8788

See All 5 Photos > (photographs may reflect modified homes)
© copyright by designer
SQ FT
1,974
BEDS
2
BATHS
2.5
STORIES
1
CARS
2
HOUSE PLANS SALE 
START AT  $776.00
For questions and help, live chat, email or call us at 877-895-5299
Floor Plans
Click to Zoom In on Floor Plan
 
About House Plan 8788:
There is something truly special about a home that is designed for a new family yet brings the style, spaces, and charm of larger plans, all at an affordable price. This sensible 2-bedroom Craftsman is exactly that. With an open layout of 1,974 square feet of living space and tons of open areas, this is the perfect home for watching your kids grow up and make memories together. Whether it's a game or movie night in the living room or a backyard barbecue as you grill at your grilling station and bar, whatever you do, this home is there for you. It even has the extra addition of a full garage and a private study, perfect for getting some extra work done!
House Plan Pricing
STEP 1 Select Your Package

PDF Single Build


Digital plans emailed to you in PDF format that allows for printing copies and sharing electronically with contractors, subs, decorators, and more. This package includes a license to build the home one time.

PDF Single Build $970
Most recommended package

CAD + PDF Single Build


CAD files are a complete set of construction drawings delivered electronically. They can be used for any type of modification—including major design changes and engineering—and include a release granting permission to modify the plan. Most CAD plan orders are emailed the same or next business day.
 
This package also comes with a PDF set of plans and a copyright release for making modifications and printing unlimited copies.
 
CAD files are provided in .dwg format. For details on the specific CAD program used, please refer to the PLAN DETAILS section located above the floor plan on each plan’s page.

CAD + PDF Single Build $1,450
2D electronic editable computer files

5 Printed Sets


Five Printed Sets of Residential Construction Drawings are typically 24” x 36” documents and come with a license to construct a single residence shipped to a physical address. Keep in mind PDF Plan Packages are our most popular choice which allows you to print as many copies as you need and to electronically send files to your builder, subcontractors, etc.

5 Printed Sets $1,450
Five printed sets of house plans
STEP 2 Need To Reverse This Plan?
STEP 3 CHOOSE YOUR FOUNDATION
STEP 4 OPTIONAL ADD-ONS
Subtotal:
$970
FREE SHIPPING
 
Plan Details
See All Details
Finished Square Footage
1,974 Sq. Ft.
Main Level:
1,974 Sq. Ft.
Total:
Room Details
2
Bedrooms:
2
Full Baths:
1
Half Baths:
General House Information
1
Number of Stories:
77'
Width:
55'
Depth:
Single
Dwelling Number:
Unfinished Square Footage
560 Sq. Ft.
Garage:
122 Sq. Ft.
Porch:
510 Sq. Ft.
Deck:
GARAGE
Side
Garage Location:
2
Garage Size:
Exterior Style
Country
Craftsman
Farmhouse
Ranch
Traditional
Collections
Accessible
Affordable
Budget
Empty Nester
First Home
Open Floor Plan
Outdoor Living
Foundation
Slab
Framing Information
Stick
Roof Framing:
2x4
Exterior Wall Framing:
Roof Pitch
8
Primary:
14
Secondary:
Insulation (R)
House And Ceiling Heights
10
First Floor Ceiling:
25'
Maximum House Height:
Key Features
Attached
Covered Rear Porch
Double Vanity Sink
Family Room
Fireplace
Front Porch
Home Office
Kitchen Island
Laundry 1st Fl
Primary Bdrm Main Floor
Open Floor Plan
Outdoor Kitchen
Outdoor Living Space
Pantry
Peninsula / Eating Bar
Separate Tub and Shower
Side-entry
Walk-in Closet
Walk-in Pantry

Our Guarantees

  • Only the highest quality plans
  • Int’l Residential Code Compliant
  • Full structural details on all plans
  • Best plan price guarantee
  • Free modification Estimates
  • Builder-ready construction drawings
  • Expert advice from leading designers
  •  PDFs NOW!™ plans in minutes
  • 100% satisfaction guarantee
  • Free Home Building Organizer