20% Off House Plans Sitewide Ends Sunday
20% Off House Plans Sitewide Ends Sunday

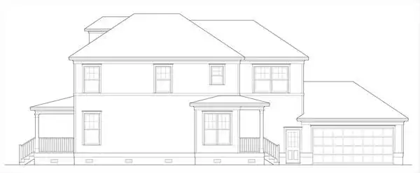
House Plan: DFD-9320

See All 6 Photos > (photographs may reflect modified homes)
© copyright by designer
SQ FT
2,139
BEDS
4
BATHS
3
STORIES
2
CARS
2
HOUSE PLANS SALE 
START AT  $808.00
For questions and help, live chat, email or call us at 877-895-5299
Floor Plans
Click to Zoom In on Floor Plan
 
About House Plan 9320:
The two-story four-bedroom home, ideal for a coastal or urban neighborhood setting. Under 2,200 SF total, this house plan has three spacious second floor bedrooms, with an additional large bedroom and full bath located on the first floor. The kitchen has a wonderful breakfast nook with access to the read porch and Garage.  At only 29 feet wide, this floor plan is ideal for a narrow urban or coastal lot. The attached side loading garage located in the rear is a feature you don't find on many house plans.
House Plan Pricing
STEP 1 Select Your Package

PDF Bid Set


Home plans stamped "NOT FOR CONSTRUCTION" for cost estimating and bidding purposes only; a minimum 5 set plan package must be purchased within 90 days for a license to build plan set; a credit will be applied towards your house plan upgrade

PDF Bid Set $250
Digital set of plans for bidding purposes only

PDF Single Build


Digital plans emailed to you in PDF format that allows for printing copies and sharing electronically with contractors, subs, decorators, and more. This package includes a license to build the home one time.

PDF Single Build $1,010
Most recommended package

5 Printed Sets


Five Printed Sets of Residential Construction Drawings are typically 24” x 36” documents and come with a license to construct a single residence shipped to a physical address. Keep in mind PDF Plan Packages are our most popular choice which allows you to print as many copies as you need and to electronically send files to your builder, subcontractors, etc.

5 Printed Sets $1,110
Five printed sets of house plans

CAD + PDF Single Build


CAD files are a complete set of construction drawings delivered electronically. They can be used for any type of modification—including major design changes and engineering—and include a release granting permission to modify the plan. Most CAD plan orders are emailed the same or next business day.
 
This package also comes with a PDF set of plans and a copyright release for making modifications and printing unlimited copies.
 
CAD files are provided in .dwg format. For details on the specific CAD program used, please refer to the PLAN DETAILS section located above the floor plan on each plan’s page.

CAD + PDF Single Build $1,690
2D electronic editable computer files
STEP 2 CHOOSE YOUR FOUNDATION
STEP 3 OPTIONAL ADD-ONS
Subtotal:
$1010
FREE SHIPPING
 
Plan Details
See All Details
Finished Square Footage
1,088 Sq. Ft.
Main Level:
1,051 Sq. Ft.
Upper Level:
2,139 Sq. Ft.
Total:
Room Details
4
Bedrooms:
3
Full Baths:
General House Information
2
Number of Stories:
29' 0"
Width:
73' 11"
Depth:
Single
Dwelling Number:
Unfinished Square Footage
400 Sq. Ft.
Garage:
222 Sq. Ft.
Porch:
GARAGE
Rear
Garage Location:
2
Garage Size:
Exterior Style
Cottage
Craftsman
Collections
Builders
Old House Classics
Open Floor Plan
Outdoor Living
PDFs Fast!
T Shaped
Foundation
Crawl Space
Slab
Framing Information
Stick
Roof Framing:
2x4
Exterior Wall Framing:
Roof Pitch
8/12
Primary:
Roof Load
20
Live:
10
Dead:
100
Wind:
Insulation (R)
13
Exterior Wall:
0
Interior Wall:
38
Ceiling:
19
Floor:
House And Ceiling Heights
9
First Floor Ceiling:
8
Second Floor Ceiling:
30' 5"
Maximum House Height:
Key Features
Attached
Country Kitchen
Covered Front Porch
Crawlspace
Dining Room
Double Vanity Sink
Family Room
Front Porch
His and Hers Primary Closets
Laundry 2nd Fl
Primary Bdrm Upstairs
Rear Porch
Suited for narrow lot

Our Guarantees

  • Only the highest quality plans
  • Int’l Residential Code Compliant
  • Full structural details on all plans
  • Best plan price guarantee
  • Free modification Estimates
  • Builder-ready construction drawings
  • Expert advice from leading designers
  •  PDFs NOW!™ plans in minutes
  • 100% satisfaction guarantee
  • Free Home Building Organizer