15% off ALL House Plans Sitewide
15% off ALL House Plans Sitewide

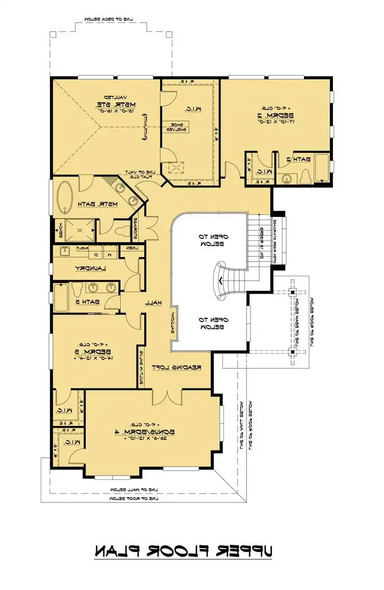
House Plan: DFD-9518

See All 8 Photos > (photographs may reflect modified homes)
© copyright by designer
SQ FT
4,748
BEDS
6
BATHS
5
STORIES
2
CARS
3
HOUSE PLANS SALE 
START AT  $2,017.90
For questions and help, live chat, email or call us at 877-895-5299
Floor Plans
Click to Zoom In on Floor Plan
 
About House Plan 9518:
This incredible 4,728 sf home is contemporary and comfortable. This home features a two story entrance, 6 bedrooms and a 3-car garage. The beautiful entrance is spectacular with its 2-story foyer with grand staircase. A beautiful dining room with coffered ceiling as well as the magnificent great room with fireplace feature wall and wall of windows is impressive and luxurious. The great room leads to the gourmet chef’s kitchen with huge prep island.  The kitchen boasts a butler’s pantry and the storage pantry provides everything you need to host your upscale dinner party. Additional features include a den/guest room with hall bathroom and provides a perfect place for Grandma to stay without having to navigate stairs. The second level of the home includes a luxurious master suite with vaulted ceiling, huge walk-in closet, and gorgeous ensuite bath with all the amenities. Two secondary bedrooms are located on this level, each with large walk-in closet and private bath. To round out this level, there is a large bonus room that could also be another bedroom as well as a reading loft providing a comfortable and quiet place to enjoy a good book. The basement level of the home includes another guest suite with private bath as well as the family rec room, perfect for game night or viewing your favorite movies. The rec room opens to the uncovered patio allowing access to the outside. This home is sure to please even the most discerning individual.

 
House Plan Pricing
STEP 1 Select Your Package

PDF Single Build


Digital plans emailed to you in PDF format that allows for printing copies and sharing electronically with contractors, subs, decorators, and more. This package includes a license to build the home one time.

PDF Single Build $2,374
Most recommended package

5 Printed Sets + PDF


Includes 5 physical printed blueprint sets, shipped free via UPS within the Continental U.S. Printed sets ship within 1 business day and are delivered within 3 – 5 business days. A complimentary PDF plan set is also emailed within 1 business day for easy sharing and local printing. These plans may be used to construct one home.

5 Printed Sets + PDF $2,647
5 Printed Sets + PDF

8 Printed Sets


Includes 8 physical printed blueprint sets, shipped free via UPS within the Continental U.S. Printed sets ship within 1 business day and are delivered within 3 – 5 business days. These plans may be used to construct one home.

8 Printed Sets $2,824
Eight printed sets of house plans

CAD + PDF Single Build


This plan package is created in AutoCAD and delivered in .DWG format. CAD files are intended for use by design professionals, structural engineers, and builders to update plans for local building codes or to make revisions based on specific needs, lot requirements, and budget considerations. A complimentary PDF copy is included with this package for reference. CAD packages are delivered within 1 to 2 business days.
 
This package also comes with a copyright release for making revisions and printing unlimited copies.

For details on the specific CAD program used, please refer to the PLAN DETAILS section located above the floor plan on each plan page.

CAD + PDF Single Build $4,510
2D electronic editable computer files
STEP 2 Need To Reverse This Plan?
STEP 3 CHOOSE YOUR FOUNDATION
STEP 4 OPTIONAL ADD-ONS
Subtotal:
$2374
FREE SHIPPING
 
Plan Details
See All Details
Finished Square Footage
1,810 Sq. Ft.
Main Level:
2,110 Sq. Ft.
Upper Level:
828 Sq. Ft.
Lower Level:
4,748 Sq. Ft.
Total:
Room Details
6
Bedrooms:
5
Full Baths:
General House Information
2
Number of Stories:
77' 6"
Width:
47' 6"
Depth:
Single
Dwelling Number:
Unfinished Square Footage
702 Sq. Ft.
Garage:
92 Sq. Ft.
Porch:
60 Sq. Ft.
Deck:
GARAGE
Side
Garage Location:
3
Garage Size:
Exterior Style
Contemporary
Modern
Collections
Kitchens
Luxury
Primary Suites
Mountain
Foundation
Basement
Crawl Space
Crawlspace
Slab
Framing Information
Truss
Roof Framing:
2x6
Exterior Wall Framing:
Roof Pitch
.25/12
Primary:
Roof Load
25
Live:
Insulation (R)
House And Ceiling Heights
10
First Floor Ceiling:
9
Second Floor Ceiling:
36' 6"
Maximum House Height:
Key Features
2 Story Volume
Attached
Butler's Pantry
Deck
Dining Room
Double Vanity Sink
Family Style
Front Porch
Guest Suite
Home Office
Kitchen Island
Laundry 2nd Fl
Loft / Balcony
L-Shaped
Primary Bdrm Upstairs
Rear Porch
Rec Room
Separate Tub and Shower
Side-entry
Suited for sloping lot
Suited for view lot
Walk-in Closet
Walk-in Pantry

Our Guarantees

  • Only the highest quality plans
  • Int’l Residential Code Compliant
  • Full structural details on all plans
  • Best plan price guarantee
  • Free modification Estimates
  • Builder-ready construction drawings
  • Expert advice from leading designers
  •  PDFs NOW!™ plans in minutes
  • 100% satisfaction guarantee
  • Free Home Building Organizer