20% off ALL House Plans Sitewide
20% off ALL House Plans Sitewide

House Plan: DFD-10329

See All 8 Photos > (photographs may reflect modified homes)
© copyright by designer
SQ FT
2,382
BEDS
4
BATHS
3.5
STORIES
1
CARS
2
HOUSE PLANS SALE 
START AT  $1,184.00
For questions and help, live chat, email or call us at 877-895-5299
Floor Plans
Click to Zoom In on Floor Plan
 
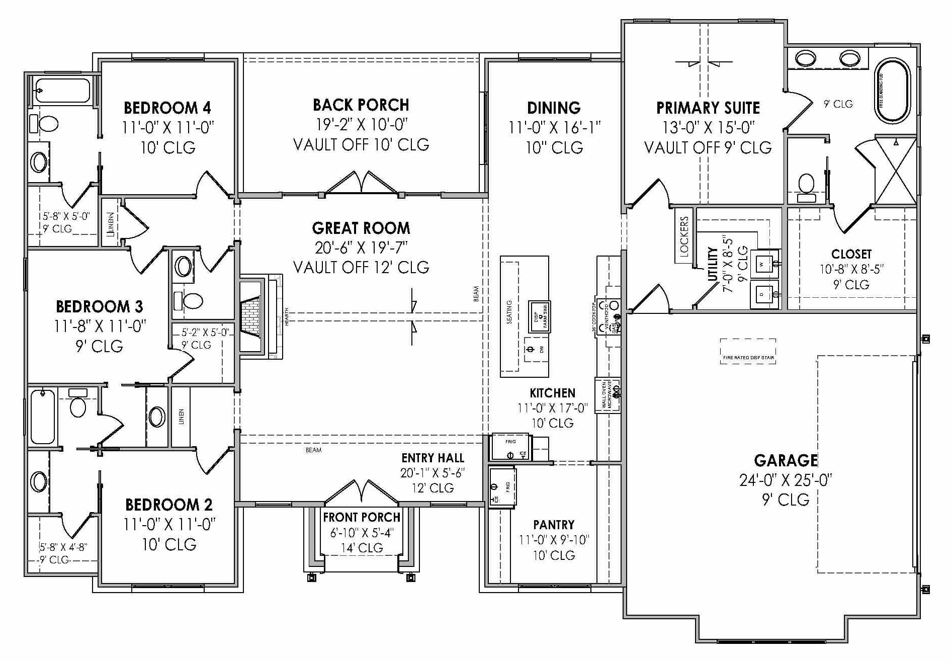
About House Plan 10329:
House Plan 10329 is a 2,382 sq. ft. Southern-style home with classic stone accents, an arched entry, and a charming gabled roofline. Inside, a vaulted great room flows into the chef’s kitchen, featuring a large island and an expansive walk-in pantry for ample storage and prep space. The split-bedroom layout ensures privacy, with the primary suite offering a dual vanity sink, separate tub and shower, and a spacious walk-in closet. Three additional bedrooms, including a secondary suite with a private bath, provide comfort for family and guests. Well-organized utility spaces, a vaulted rear covered porch, and a two-car garage complete this elegant and functional design.
House Plan Pricing
STEP 1 Select Your Package

PDF Single Build


Digital plans emailed to you in PDF format that allows for printing copies and sharing electronically with contractors, subs, decorators, and more. This package includes a license to build the home one time.

PDF Single Build $1,480
Most recommended package

PDF Unlimited Build


Digital plans with an unlimited build license emailed in PDF format, that allows for printing copies on a home printer or local print shop and sharing with contractors, subs, decorators and more 

PDF Unlimited Build $2,220
Digital plans including unlimited build license

CAD + PDF Unlimited Build


CAD files are a complete set of construction drawings delivered electronically. They can be used for any type of modification—including major design changes and engineering—and include a release granting permission to modify the plan. Most CAD plan orders are emailed the same or next business day.
 
This package also comes with a PDF set of plans and a multi-use building license, granting permission to construct the home an unlimited number of times, along with a copyright release for making modifications and printing unlimited copies.
 
CAD files are provided in .dwg format. For details on the specific CAD program used, please refer to the PLAN DETAILS section located above the floor plan on each plan’s page.

CAD + PDF Unlimited Build $2,545
2D electronic editable computer files
STEP 2 Need To Reverse This Plan?
STEP 3 CHOOSE YOUR FOUNDATION
STEP 4 OPTIONAL ADD-ONS
Subtotal:
$1480
FREE SHIPPING
 
Plan Details
See All Details
Finished Square Footage
2,382 Sq. Ft.
Main Level:
2,382 Sq. Ft.
Total:
Room Details
4
Bedrooms:
3
Full Baths:
1
Half Baths:
General House Information
1
Number of Stories:
74' 2"
Width:
51' 4"
Depth:
Single
Dwelling Number:
Unfinished Square Footage
640 Sq. Ft.
Garage:
262 Sq. Ft.
Porch:
36 Sq. Ft.
Front Porch:
226 Sq. Ft.
Rear Porch:
GARAGE
Side
Garage Location:
2
Garage Size:
Exterior Style
Cottage
European
French Country
Collections
Builders
Kitchens
Open Floor Plan
Split Bedroom
Texas
Foundation
Basement
Crawlspace
Monolithic Slab
Walkout Basement
Framing Information
Stick
Roof Framing:
2x4
Exterior Wall Framing:
Roof Pitch
12
Primary:
Insulation (R)
Per IRC Climate Zones
House And Ceiling Heights
10
First Floor Ceiling:
30' 2"
Maximum House Height:
Key Features
Covered Front Porch
Covered Rear Porch
Dining Room
Double Vanity Sink
Fireplace
Foyer
Great Room
Kitchen Island
Laundry 1st Fl
L-Shaped
Primary Bdrm Main Floor
Mud Room
Open Floor Plan
Separate Tub and Shower
Side-entry
Split Bedrooms
Suited for corner lot
Suited for sloping lot
Suited for view lot
Vaulted Ceilings
Vaulted Great Room/Living
Vaulted Primary
Walk-in Closet
Walk-in Pantry

Our Guarantees

  • Only the highest quality plans
  • Int’l Residential Code Compliant
  • Full structural details on all plans
  • Best plan price guarantee
  • Free modification Estimates
  • Builder-ready construction drawings
  • Expert advice from leading designers
  •  PDFs NOW!™ plans in minutes
  • 100% satisfaction guarantee
  • Free Home Building Organizer