20% off ALL House Plans Sitewide
20% off ALL House Plans Sitewide

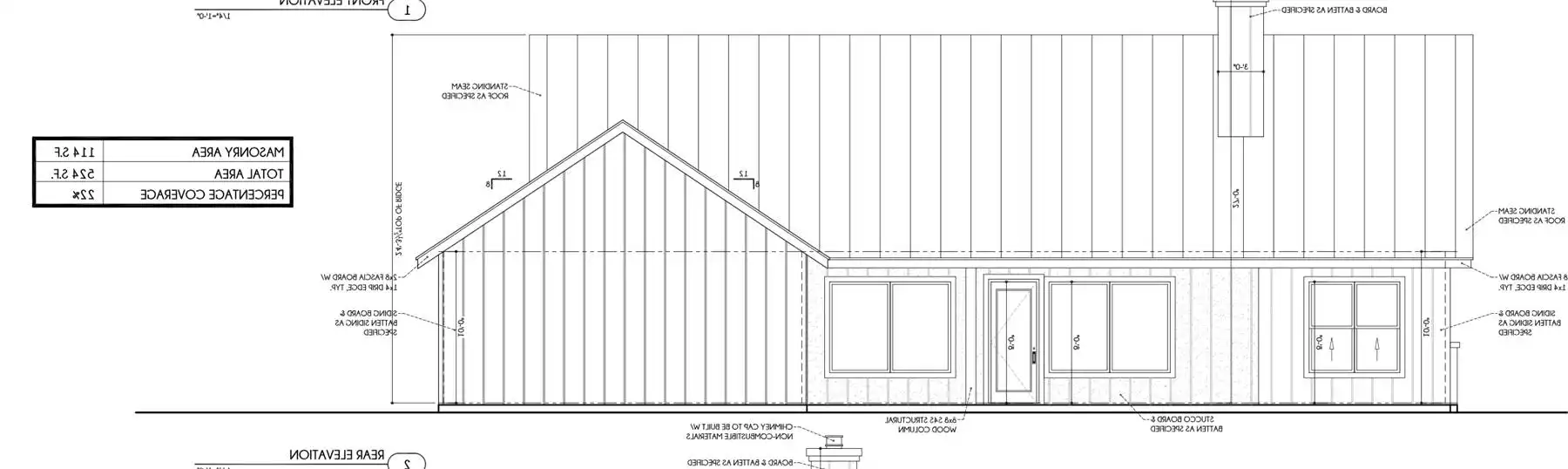
House Plan: DFD-10387

See All 2 Photos > (photographs may reflect modified homes)
© copyright by designer
SQ FT
2,179
BEDS
3
BATHS
2.5
STORIES
1
CARS
4
HOUSE PLANS SALE 
START AT  $1,744.00
For questions and help, live chat, email or call us at 877-895-5299
Floor Plans
Click to Zoom In on Floor Plan
 
About House Plan 10387:
House Plan 10387 is a stylish 2,179 square foot single-story modern farmhouse that perfectly blends charm and functionality. With 3 bedrooms and 2.5 bathrooms, this open floor plan features an L-shaped kitchen with a large central island and easy access to outdoor living spaces. The design includes spacious front and rear covered porches, a massive 4-car garage, and a split-bedroom layout for added privacy. The primary suite boasts a generous bedroom, walk-in closet, ensuite, and a convenient study. House Plan 10387 offers comfortable, modern farmhouse living with thoughtful design and style.
House Plan Pricing
STEP 1 Select Your Package

PDF Single Build


Digital plans emailed to you in PDF format that allows for printing copies and sharing electronically with contractors, subs, decorators, and more. This package includes a license to build the home one time.

PDF Single Build $1,580
Most recommended package

CAD + PDF Single Build


CAD files are a complete set of construction drawings delivered electronically. They can be used for any type of modification—including major design changes and engineering—and include a release granting permission to modify the plan. Most CAD plan orders are emailed the same or next business day.
 
This package also comes with a PDF set of plans and a copyright release for making modifications and printing unlimited copies.
 
CAD files are provided in .dwg format. For details on the specific CAD program used, please refer to the PLAN DETAILS section located above the floor plan on each plan’s page.

CAD + PDF Single Build $2,180
2D electronic editable computer files
STEP 2 Need To Reverse This Plan?
STEP 3 CHOOSE YOUR FOUNDATION
STEP 4 OPTIONAL ADD-ONS
Subtotal:
$2180
FREE SHIPPING
 
Plan Details
See All Details
Finished Square Footage
2,179 Sq. Ft.
Main Level:
2,179 Sq. Ft.
Total:
Room Details
3
Bedrooms:
2
Full Baths:
1
Half Baths:
General House Information
1
Number of Stories:
67' 4"
Width:
87' 4"
Depth:
Single
Dwelling Number:
Unfinished Square Footage
262 Sq. Ft.
Front Porch:
254 Sq. Ft.
Deck:
GARAGE
Rear
Garage Location:
4
Garage Size:
Exterior Style
Barndominium
Country
Farmhouse
Modern Farmhouse
Ranch
Collections
Kitchens
Open Floor Plan
Foundation
Foundation Change (From Slab)
Slab
Framing Information
Stick
Roof Framing:
2x4
Exterior Wall Framing:
Roof Pitch
8/12
Primary:
Insulation (R)
House And Ceiling Heights
10
First Floor Ceiling:
24' 4"
Maximum House Height:
Key Features
Attached
Butler's Pantry
Covered Front Porch
Covered Rear Porch
Dining Room
Double Vanity Sink
Family Room
Foyer
Home Office
Kitchen Island
Laundry 1st Fl
L-Shaped
Primary Bdrm Main Floor
Mud Room
Outdoor Living Space
Rear-entry
Split Bedrooms
Suited for view lot
Walk-in Closet

Our Guarantees

  • Only the highest quality plans
  • Int’l Residential Code Compliant
  • Full structural details on all plans
  • Best plan price guarantee
  • Free modification Estimates
  • Builder-ready construction drawings
  • Expert advice from leading designers
  •  PDFs NOW!™ plans in minutes
  • 100% satisfaction guarantee
  • Free Home Building Organizer