20% Off House Plans Sitewide Ends Sunday
20% Off House Plans Sitewide Ends Sunday

House Plan: DFD-10506

See All 9 Photos > (photographs may reflect modified homes)
© copyright by designer
SQ FT
1,270
BEDS
1
BATHS
1
STORIES
2
CARS
0
PLANS FROM $460
For questions and help, live chat, email or call us at 877-895-5299
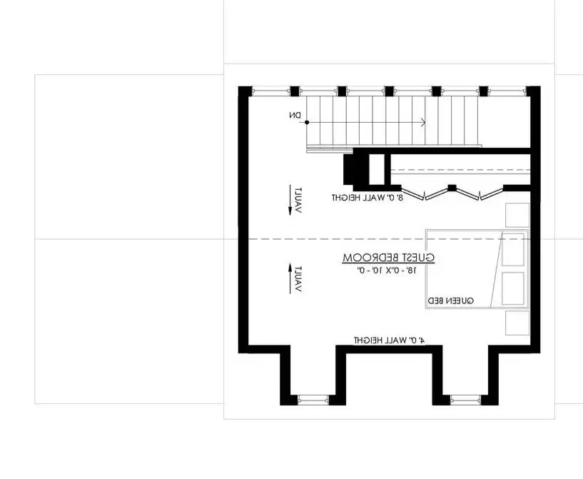
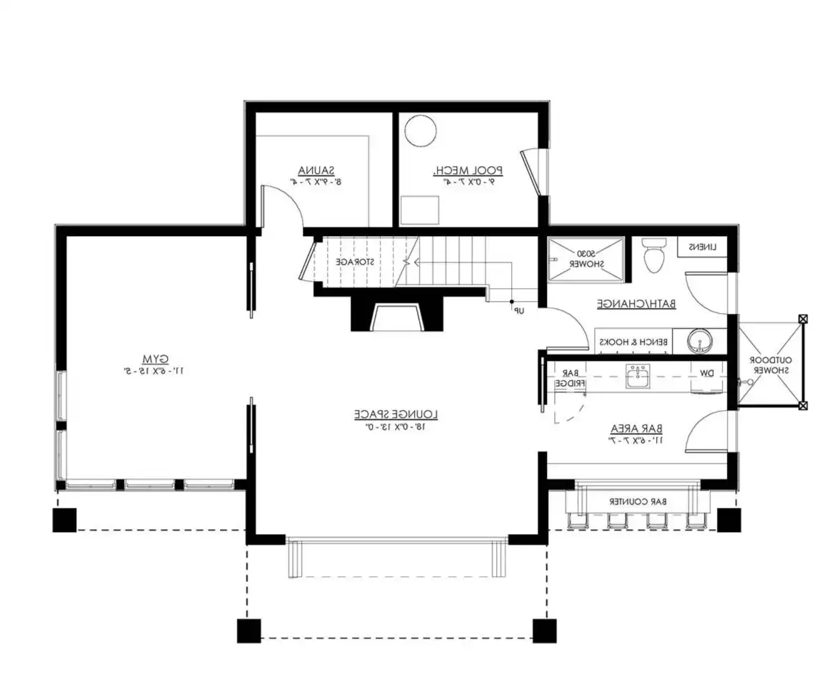
Floor Plans
Click to Zoom In on Floor Plan
 
About House Plan 10506:
House Plan 10506 is a versatile 1,270 square foot Additional Dwelling Unit designed to be the perfect guest house, home studio, or in-law suite. The main level includes a bar area with a convenient counter for entertaining, a full bathroom, a relaxing sauna, a cozy lounge space with a fireplace, and a flexible room for a gym or office. Upstairs, a vaulted-ceiling guest bedroom provides a spacious and welcoming retreat. This stylish and functional design offers endless possibilities for comfortable and modern living.
House Plan Pricing
STEP 1 Select Your Package

PDF Single Build


Digital plans emailed to you in PDF format that allows for printing copies and sharing electronically with contractors, subs, decorators, and more. This package includes a license to build the home one time.

PDF Single Build $575
Most recommended package
STEP 2 CHOOSE YOUR FOUNDATION
STEP 3 OPTIONAL ADD-ONS
Subtotal:
$575
FREE SHIPPING
 
Plan Details
See All Details
Finished Square Footage
925 Sq. Ft.
Main Level:
345 Sq. Ft.
Upper Level:
1,270 Sq. Ft.
Total:
Room Details
1
Bedrooms:
1
Full Baths:
General House Information
2
Number of Stories:
43' 0"
Width:
33' 10"
Depth:
Pool
Dwelling Number:
None
Bonus Access:
Unfinished Square Footage
68 Sq. Ft.
Deck:
GARAGE
0
Garage Size:
Exterior Style
Classical
Coastal
Country
Craftsman
Farmhouse
Modern Farmhouse
Collections
Kitchens
Open Floor Plan
Vacation
Foundation
Basement (Charge)
Crawl Space
Slab
Framing Information
Combination
Roof Framing:
2x6
Exterior Wall Framing:
Roof Pitch
10/12
Primary:
4/12
Secondary:
Insulation (R)
House And Ceiling Heights
9
First Floor Ceiling:
Vaulted
Second Floor Ceiling:
21' 10"
Maximum House Height:
Key Features
Covered Front Porch
Exercise Room
Fireplace
Great Room
Primary Bdrm Upstairs
Open Floor Plan
Suited for corner lot
Suited for narrow lot
Suited for view lot

Our Guarantees

  • Only the highest quality plans
  • Int’l Residential Code Compliant
  • Full structural details on all plans
  • Best plan price guarantee
  • Free modification Estimates
  • Builder-ready construction drawings
  • Expert advice from leading designers
  •  PDFs NOW!™ plans in minutes
  • 100% satisfaction guarantee
  • Free Home Building Organizer