20% off ALL House Plans Sitewide
20% off ALL House Plans Sitewide

House Plan: DFD-10631

See All 3 Photos > (photographs may reflect modified homes)
© copyright by designer
SQ FT
4,072
BEDS
4
BATHS
3
STORIES
2
CARS
2
HOUSE PLANS SALE 
START AT  $2,120.00
For questions and help, live chat, email or call us at 877-895-5299
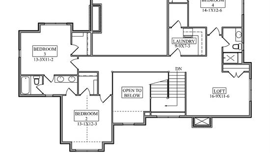
Floor Plans
Click to Zoom In on Floor Plan
 
About House Plan 10631:
House Plan 10631 offers 4,072 square feet of beautifully planned space across two stories, featuring 4 bedrooms, 3 baths, and a 2-car garage. A covered front porch welcomes you into a dramatic two-story foyer that opens into a bright, airy great room with a fireplace and access to the rear covered porch. The L-shaped kitchen is built for gathering and function with double islands, a walk-in pantry, and a nearby mudroom for easy grocery drop-off. The formal dining room is perfectly positioned to enjoy natural light and scenic views. On the main level, the luxurious primary suite includes a spa-inspired bath with a standing tub and a huge walk-in closet. A front den offers added versatility, while upstairs, three additional bedrooms and a central loft provide space for family and guests alike.
House Plan Pricing
STEP 1 Select Your Package

PDF Single Build


Digital plans emailed to you in PDF format that allows for printing copies and sharing electronically with contractors, subs, decorators, and more. This package includes a license to build the home one time.

PDF Single Build $2,650
Most recommended package

CAD + PDF Single Build


CAD files are a complete set of construction drawings delivered electronically. They can be used for any type of modification—including major design changes and engineering—and include a release granting permission to modify the plan. Most CAD plan orders are emailed the same or next business day.
 
This package also comes with a PDF set of plans and a copyright release for making modifications and printing unlimited copies.
 
CAD files are provided in .dwg format. For details on the specific CAD program used, please refer to the PLAN DETAILS section located above the floor plan on each plan’s page.

CAD + PDF Single Build $4,150
2D electronic editable computer files
STEP 2 Need To Reverse This Plan?
STEP 3 CHOOSE YOUR FOUNDATION
STEP 4 OPTIONAL ADD-ONS
Subtotal:
$2650
FREE SHIPPING
 
Plan Details
See All Details
Finished Square Footage
2,679 Sq. Ft.
Main Level:
1,393 Sq. Ft.
Upper Level:
4,072 Sq. Ft.
Total:
Room Details
4
Bedrooms:
3
Full Baths:
General House Information
2
Number of Stories:
79'
Width:
83'
Depth:
Single
Dwelling Number:
None
Bonus Access:
Unfinished Square Footage
672 Sq. Ft.
Garage:
GARAGE
Front
Garage Location:
2
Garage Size:
Exterior Style
Colonial
Country
Transitional
Collections
Kitchens
Luxury
Primary Suites
Open Floor Plan
Outdoor Living
Split Bedroom
Foundation
Basement
Crawl Space
Slab
Walkout Basement
Framing Information
Truss
Roof Framing:
2x6
Exterior Wall Framing:
Roof Pitch
9/12
Primary:
Insulation (R)
House And Ceiling Heights
10
First Floor Ceiling:
9
Second Floor Ceiling:
Key Features
Attached
Covered Front Porch
Covered Rear Porch
Deck
Dining Room
Double Vanity Sink
Fireplace
Foyer
Great Room
His and Hers Primary Closets
Kitchen Island
Laundry 2nd Fl
Loft / Balcony
L-Shaped
Primary Bdrm Main Floor
Mud Room
Nook / Breakfast Area
Open Floor Plan
Separate Tub and Shower
Side-entry
Split Bedrooms
Suited for view lot
Walk-in Pantry

Our Guarantees

  • Only the highest quality plans
  • Int’l Residential Code Compliant
  • Full structural details on all plans
  • Best plan price guarantee
  • Free modification Estimates
  • Builder-ready construction drawings
  • Expert advice from leading designers
  •  PDFs NOW!™ plans in minutes
  • 100% satisfaction guarantee
  • Free Home Building Organizer