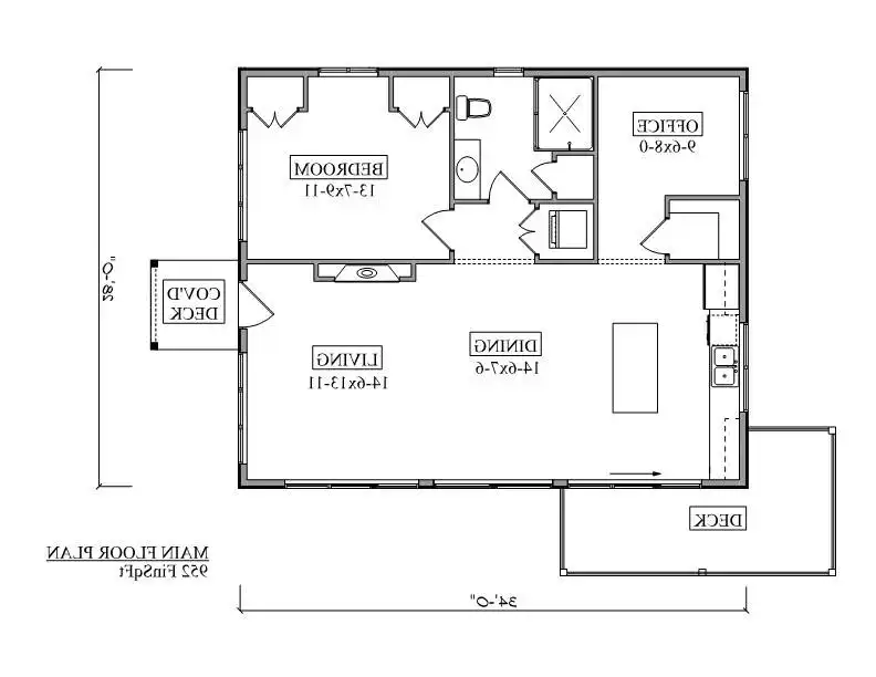
House Plan 10633 delivers 952 square feet of beautifully efficient living in a modern cottage style. This one-story layout is thoughtfully designed with an open-concept great room anchored by a cozy fireplace and seamlessly connected to the kitchen and dining areas. A central island and walk-in pantry enhance kitchen functionality, while the private primary suite features dual closets and direct access to the full bath. Outdoor living is made easy with both a covered front porch and rear deck. Whether you're downsizing, buying your first home, or creating a guest retreat, this charming plan blends comfort and style in a compact footprint.
House Plan 10633 delivers 952 square feet of beautifully efficient living in a modern cottage style. This one-story layout is thoughtfully designed with an open-concept great room anchored by a cozy fireplace and seamlessly connected to the kitchen and dining areas. A central island and walk-in pantry enhance kitchen functionality, while the private primary suite features dual closets and direct access to the full bath. Outdoor living is made easy with both a covered front porch and rear deck. Whether you're downsizing, buying your first home, or creating a guest retreat, this charming plan blends comfort and style in a compact footprint.