20% Off House Plans Sitewide Ends Sunday
20% Off House Plans Sitewide Ends Sunday

House Plan: DFD-10668

See All 20 Photos > (photographs may reflect modified homes)
© copyright by designer
SQ FT
3,907
BEDS
4
BATHS
4.5
STORIES
2
CARS
3
HOUSE PLANS SALE 
START AT  $2,120.00
For questions and help, live chat, email or call us at 877-895-5299
Floor Plans
Click to Zoom In on Floor Plan
 
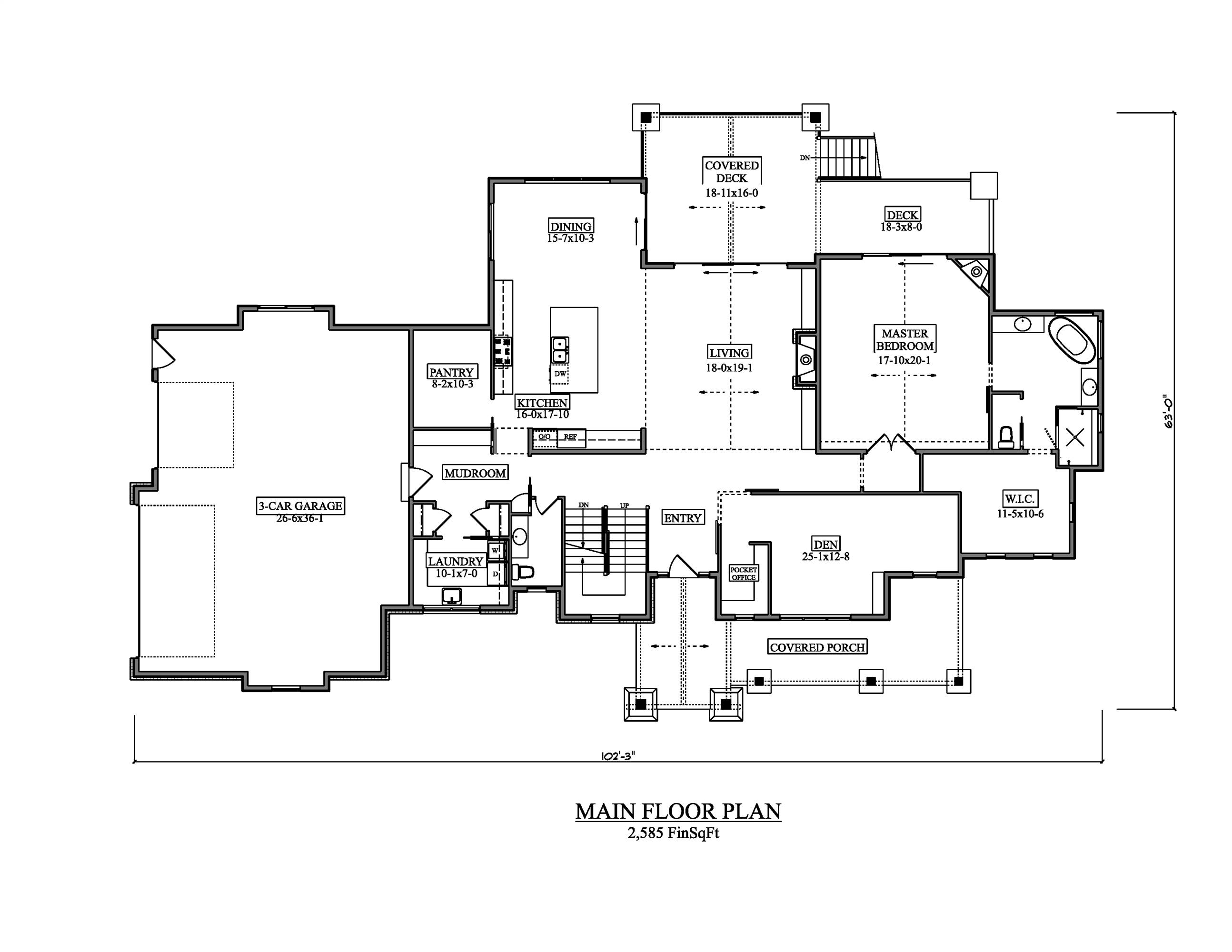
About House Plan 10668:

House Plan 10668 is a stunning Contemporary Craftsman design offering 3,907 sq. ft. of versatile living space. The first floor features a grand vaulted great room with large windows, an open-concept kitchen with walk-in pantry, and a spacious primary suite tucked away for privacy. A home office and formal entry enhance functionality. Upstairs, three bedrooms provide plenty of space for family or guests, each with access to full bathrooms. The optional 2,052 sq. ft. walkout lower level adds endless flexibility for future expansion, including recreation areas or in-law accommodations. Complete with generous porch space and a 3-car garage, this plan balances luxury, style, and everyday comfort.

House Plan Pricing
STEP 1 Select Your Package

PDF Single Build


Digital plans emailed to you in PDF format that allows for printing copies and sharing electronically with contractors, subs, decorators, and more. This package includes a license to build the home one time.

PDF Single Build $2,650
Most recommended package

CAD + PDF Single Build


CAD files are a complete set of construction drawings delivered electronically. They can be used for any type of modification—including major design changes and engineering—and include a release granting permission to modify the plan. Most CAD plan orders are emailed the same or next business day.
 
This package also comes with a PDF set of plans and a copyright release for making modifications and printing unlimited copies.
 
CAD files are provided in .dwg format. For details on the specific CAD program used, please refer to the PLAN DETAILS section located above the floor plan on each plan’s page.

CAD + PDF Single Build $4,150
2D electronic editable computer files

CAD Unlimited Build


CAD files are a complete set of construction drawings delivered electronically. They can be used for any type of modification—including major design changes and engineering—and include a release granting permission to modify the plan. Most CAD plan orders are emailed the same or next business day. CAD files are provided in .dwg format. For details on the specific CAD program used, please refer to the PLAN DETAILS section located above the floor plan on each plan’s page.
CAD Unlimited Build $6,075
2D electronic editable computer files
STEP 2 Need To Reverse This Plan?
STEP 3 CHOOSE YOUR FOUNDATION
STEP 4 OPTIONAL ADD-ONS
Subtotal:
$2650
FREE SHIPPING
 
Plan Details
See All Details
Finished Square Footage
2,585 Sq. Ft.
Main Level:
1,322 Sq. Ft.
Upper Level:
2,052 Sq. Ft.
Lower Level:
3,907 Sq. Ft.
Total:
Room Details
4
Bedrooms:
4
Full Baths:
1
Half Baths:
General House Information
2
Number of Stories:
102' 3"
Width:
63' 0"
Depth:
Single
Dwelling Number:
None
Bonus Access:
Unfinished Square Footage
1055 Sq. Ft.
Garage:
GARAGE
Front
Garage Location:
3
Garage Size:
Exterior Style
Contemporary
Craftsman
Lake
Transitional
Collections
Kitchens
Luxury
Primary Suites
Mountain
Open Floor Plan
Outdoor Living
Split Bedroom
Foundation
Basement
Crawl Space
Slab
Walkout Basement
Framing Information
Truss
Roof Framing:
2x6
Exterior Wall Framing:
Roof Pitch
9/12
Primary:
Insulation (R)
House And Ceiling Heights
10
First Floor Ceiling:
9
Second Floor Ceiling:
30' 1"
Maximum House Height:
Key Features
Attached
Covered Front Porch
Covered Rear Porch
Deck
Dining Room
Double Vanity Sink
Fireplace
Foyer
Great Room
Home Office
Kitchen Island
Laundry 1st Fl
Loft / Balcony
L-Shaped
Primary Bdrm Main Floor
Mud Room
Nook / Breakfast Area
Open Floor Plan
Rec Room
Separate Tub and Shower
Side-entry
Split Bedrooms
Storage Space
Suited for sloping lot
Suited for view lot
Unfinished Space
Walk-in Closet
Walk-in Pantry

Our Guarantees

  • Only the highest quality plans
  • Int’l Residential Code Compliant
  • Full structural details on all plans
  • Best plan price guarantee
  • Free modification Estimates
  • Builder-ready construction drawings
  • Expert advice from leading designers
  •  PDFs NOW!™ plans in minutes
  • 100% satisfaction guarantee
  • Free Home Building Organizer

See terms opt out anytime