20% off ALL House Plans Sitewide
20% off ALL House Plans Sitewide

House Plan: DFD-10679

See All 8 Photos > (photographs may reflect modified homes)
© copyright by designer
SQ FT
3,434
BEDS
4
BATHS
3.5
STORIES
1
CARS
3
HOUSE PLANS SALE 
START AT  $1,484.00
For questions and help, live chat, email or call us at 877-895-5299
Floor Plans
Click to Zoom In on Floor Plan
 
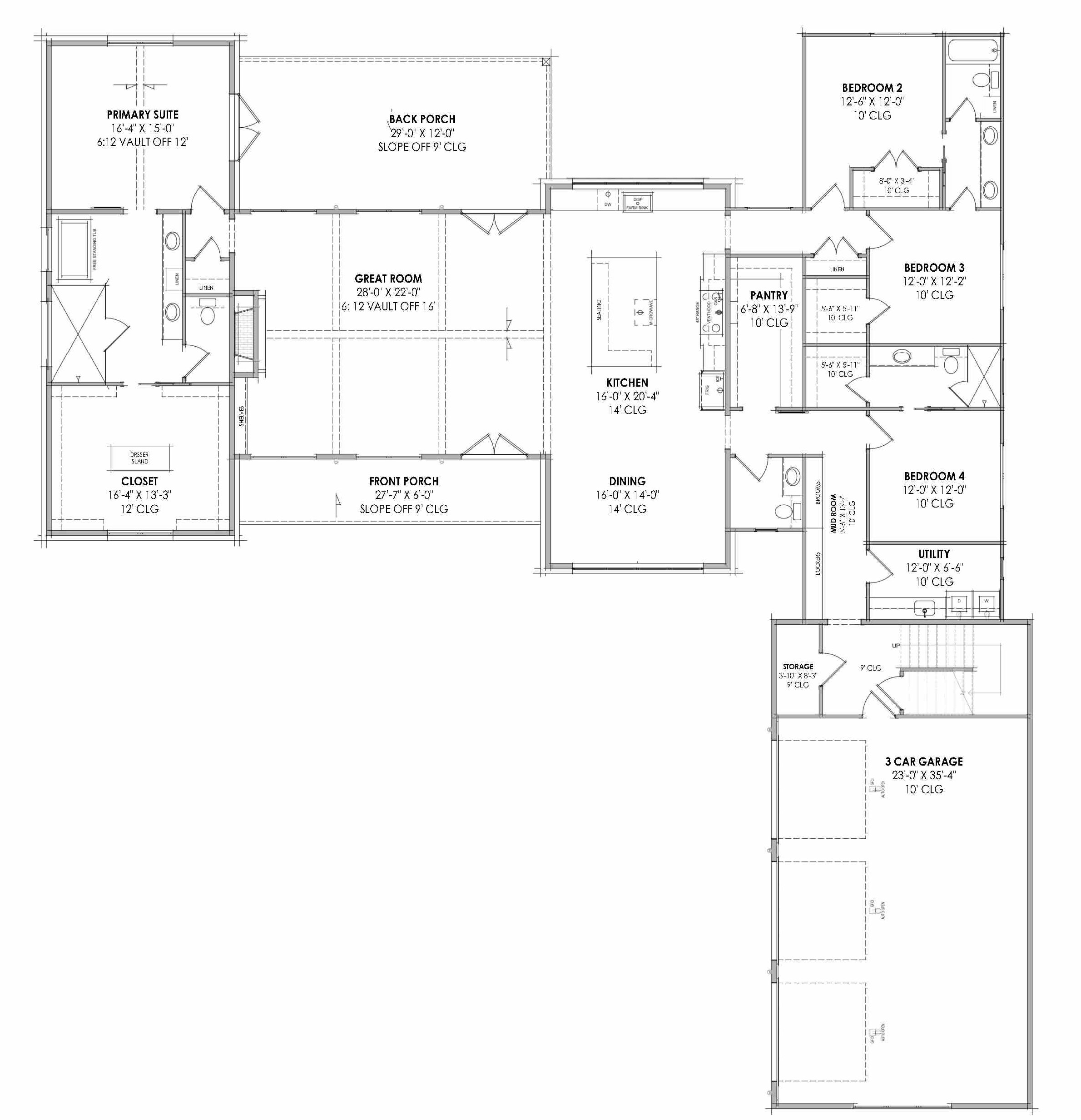
About House Plan 10679:

House Plan 10679 offers 3,434 square feet of beautifully balanced modern and natural design, featuring 4 bedrooms, 3.5 bathrooms, and a spacious 3-car garage. Its striking exterior of natural wood and stone is matched by expansive windows and bright, airy interiors. A wide covered front porch welcomes you into a soaring vaulted great room with a dramatic fireplace and seamless access to a generous rear porch—ideal for relaxing or entertaining. The chef-inspired kitchen features a large central island, abundant counter space, a dedicated dining area, and a massive walk-in pantry. On the right wing, three bedrooms share two full bathrooms, including a Jack and Jill layout. The left wing is a private haven, with a luxurious primary suite offering outdoor access, a spa-like ensuite, and a dream walk-in closet—delivering comfort and elegance in every detail.

 

House Plan Pricing
STEP 1 Select Your Package

PDF Single Build


Digital plans emailed to you in PDF format that allows for printing copies and sharing electronically with contractors, subs, decorators, and more. This package includes a license to build the home one time.

PDF Single Build $1,855
Most recommended package

PDF Unlimited Build


Digital plans with an unlimited build license emailed in PDF format, that allows for printing copies on a home printer or local print shop and sharing with contractors, subs, decorators and more 

PDF Unlimited Build $2,580
Digital plans including unlimited build license

CAD + PDF Unlimited Build


CAD files are a complete set of construction drawings delivered electronically. They can be used for any type of modification—including major design changes and engineering—and include a release granting permission to modify the plan. Most CAD plan orders are emailed the same or next business day.
 
This package also comes with a PDF set of plans and a multi-use building license, granting permission to construct the home an unlimited number of times, along with a copyright release for making modifications and printing unlimited copies.
 
CAD files are provided in .dwg format. For details on the specific CAD program used, please refer to the PLAN DETAILS section located above the floor plan on each plan’s page.

CAD + PDF Unlimited Build $2,890
2D electronic editable computer files
STEP 2 Need To Reverse This Plan?
STEP 3 CHOOSE YOUR FOUNDATION
STEP 4 OPTIONAL ADD-ONS
Subtotal:
$1855
FREE SHIPPING
 
Plan Details
See All Details
Finished Square Footage
3,434 Sq. Ft.
Main Level:
3,434 Sq. Ft.
Total:
Room Details
4
Bedrooms:
3
Full Baths:
1
Half Baths:
General House Information
1
Number of Stories:
90' 11"
Width:
98' 7"
Depth:
Single
Dwelling Number:
1st Floor
Bonus Access:
Unfinished Square Footage
698 Sq. Ft.
Garage:
563 Sq. Ft.
Porch:
166 Sq. Ft.
Front Porch:
397 Sq. Ft.
Rear Porch:
698 Sq. Ft.
Bonus Room:
GARAGE
Side
Garage Location:
3
Garage Size:
Exterior Style
Modern
Modern Farmhouse
Ranch
Scandinavian
Transitional
Collections
Builders
Kitchens
Luxury
Primary Suites
Open Floor Plan
Outdoor Living
Split Bedroom
Texas
Foundation
Basement
Crawlspace
Monolithic Slab
Walkout Basement
Roof Pitch
12:12
Primary:
3:12
Secondary:
Insulation (R)
Per IRC Climate Zones
House And Ceiling Heights
10
First Floor Ceiling:
28' 0"
Maximum House Height:
Key Features
Attached
Bonus Room
Covered Front Porch
Covered Rear Porch
Double Vanity Sink
Fireplace
Front Porch
Great Room
Home Office
Kitchen Island
Laundry 1st Fl
L-Shaped
Primary Bdrm Main Floor
Mud Room
Open Floor Plan
Pantry
Rear Porch
Separate Tub and Shower
Side-entry
Split Bedrooms
Suited for corner lot
Suited for view lot
Unfinished Space
Vaulted Ceilings
Vaulted Great Room/Living
Vaulted Primary
Walk-in Closet
Walk-in Pantry

Our Guarantees

  • Only the highest quality plans
  • Int’l Residential Code Compliant
  • Full structural details on all plans
  • Best plan price guarantee
  • Free modification Estimates
  • Builder-ready construction drawings
  • Expert advice from leading designers
  •  PDFs NOW!™ plans in minutes
  • 100% satisfaction guarantee
  • Free Home Building Organizer

See terms opt out anytime