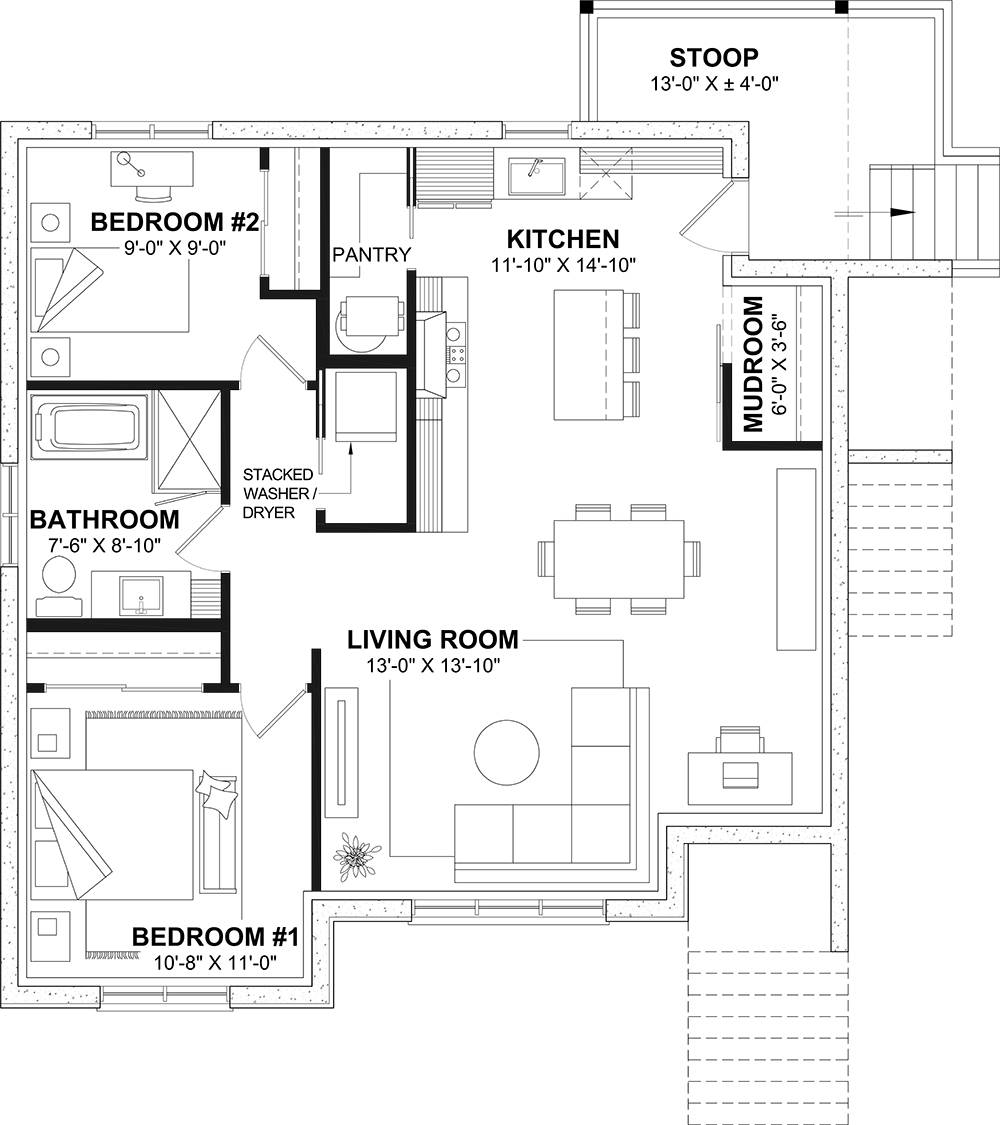
Need to maximize housing on your lot? Consider a triplex like House Plan 10694 that stacks its units from the finished basement through the second floor to keep its foundation small. This multi-family home offers 3,011 square feet in total, with 1,010 square feet in the first floor and basement units and 991 square feet in the second story unit. All three include open-concept living with an island kitchen and two bedrooms that share a hall bath between them. Make sure not to miss the thoughtful design details, like every unit having its own private entry and laundry!
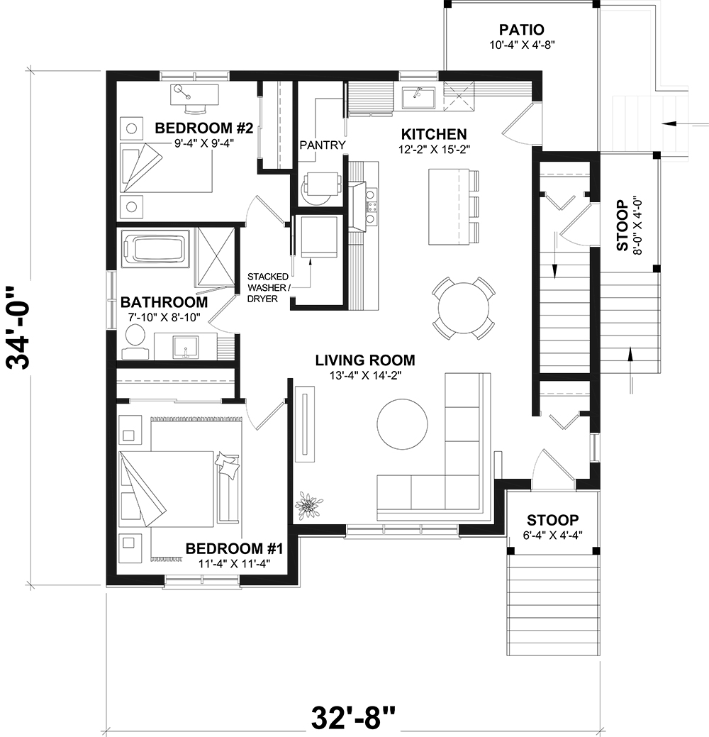
Need to maximize housing on your lot? Consider a triplex like House Plan 10694 that stacks its units from the finished basement through the second floor to keep its foundation small. This multi-family home offers 3,011 square feet in total, with 1,010 square feet in the first floor and basement units and 991 square feet in the second story unit. All three include open-concept living with an island kitchen and two bedrooms that share a hall bath between them. Make sure not to miss the thoughtful design details, like every unit having its own private entry and laundry!