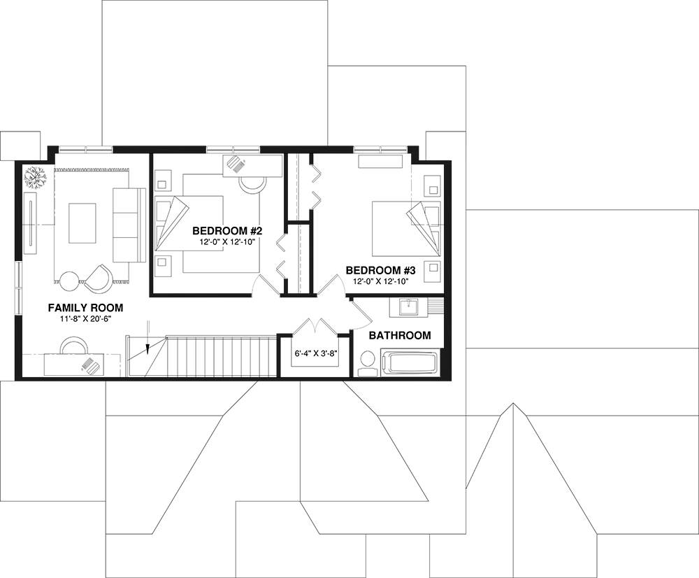
Designed with versatility in mind, this 2,089 square foot home blends open living with well-defined private spaces. The main level welcomes you through a gracious foyer with arched openings that lead into the family room and dining area. The kitchen is positioned for easy entertaining and includes an island and walk-in pantry to support daily routines. A split-bedroom layout places the primary suite on the main floor, complete with his and hers closets and a bath featuring a separate tub and shower. An additional guest suite offers comfort and privacy for visitors or multi-generational living. Upstairs, secondary bedrooms provide ample space, while covered porches extend the living area outdoors and create a warm, inviting feel throughout the home.
Designed with versatility in mind, this 2,089 square foot home blends open living with well-defined private spaces. The main level welcomes you through a gracious foyer with arched openings that lead into the family room and dining area. The kitchen is positioned for easy entertaining and includes an island and walk-in pantry to support daily routines. A split-bedroom layout places the primary suite on the main floor, complete with his and hers closets and a bath featuring a separate tub and shower. An additional guest suite offers comfort and privacy for visitors or multi-generational living. Upstairs, secondary bedrooms provide ample space, while covered porches extend the living area outdoors and create a warm, inviting feel throughout the home.