20% off ALL House Plans Sitewide
20% off ALL House Plans Sitewide

House Plan: DFD-10702

See All 14 Photos > (photographs may reflect modified homes)
© copyright by designer
SQ FT
2,925
BEDS
4
BATHS
3.5
STORIES
1.5
CARS
0
HOUSE PLANS SALE 
START AT  $1,828.00
For questions and help, live chat, email or call us at 877-895-5299
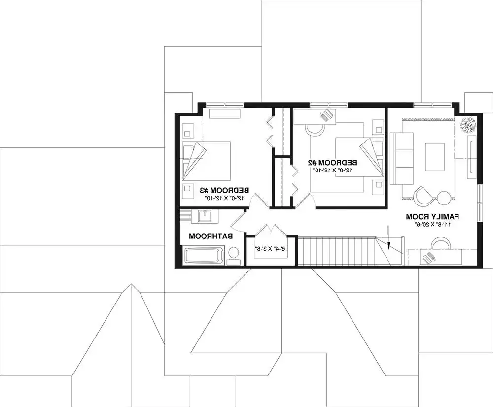
Floor Plans
Click to Zoom In on Floor Plan
 
About House Plan 10702:
Designed with versatility in mind, this 2,089 square foot home blends open living with well-defined private spaces. The main level welcomes you through a gracious foyer with arched openings that lead into the family room and dining area. The kitchen is positioned for easy entertaining and includes an island and walk-in pantry to support daily routines. A split-bedroom layout places the primary suite on the main floor, complete with his and hers closets and a bath featuring a separate tub and shower. An additional guest suite offers comfort and privacy for visitors or multi-generational living. Upstairs, secondary bedrooms provide ample space, while covered porches extend the living area outdoors and create a warm, inviting feel throughout the home.
House Plan Pricing
STEP 1 Select Your Package

PDF Single Build


Digital plans emailed to you in PDF format that allows for printing copies and sharing electronically with contractors, subs, decorators, and more. This package includes a license to build the home one time.

PDF Single Build $2,285
Most recommended package

3 Printed Sets + PDF


Includes 3 physical printed blueprint sets, shipped free via UPS within the U.S. Printed sets ship within 1 business day and are delivered within 3 – 5 business days. A complimentary PDF plan set is also emailed within 1 business day for easy sharing and local printing. These plans may be used to construct one home.

3 Printed Sets + PDF $2,425
3 Printed Sets + PDF

CAD + PDF Single Build


This plan package is created in AutoCAD and delivered in .DWG format. CAD files are intended for use by design professionals, structural engineers, and builders to update plans for local building codes or to make revisions based on specific needs, lot requirements, and budget considerations. A complimentary PDF copy is included with this package for reference. CAD packages are delivered within 1 to 2 business days.
 
This package also comes with a copyright release for making revisions and printing unlimited copies.

For details on the specific CAD program used, please refer to the PLAN DETAILS section located above the floor plan on each plan page.

CAD + PDF Single Build $3,675
2D electronic editable computer files
STEP 2 Need To Reverse This Plan?
STEP 3 CHOOSE YOUR FOUNDATION
STEP 4 OPTIONAL ADD-ONS
Subtotal:
$2285
FREE SHIPPING
Please allow 3-5 business days for delivery of this plan Please check our PDFs NOW collection for plans that can be downloaded and received immediately or live chat us to help you find a similar plan available now.
 
Plan Details
See All Details
Finished Square Footage
2,089 Sq. Ft.
Main Level:
836 Sq. Ft.
Upper Level:
2,925 Sq. Ft.
Total:
Room Details
4
Bedrooms:
3
Full Baths:
1
Half Baths:
General House Information
1.5
Number of Stories:
61' 4"
Width:
44' 2"
Depth:
Multi-Family
Dwelling Number:
Unfinished Square Footage
216 Sq. Ft.
Patio:
GARAGE
0
Garage Size:
Exterior Style
Country
Craftsman
Farmhouse
Modern Farmhouse
Collections
Canada
In-Law Suite
Luxury
Open Floor Plan
Split Bedroom
Foundation
Basement Foundation PDF
Crawlspace
Floating slab (included)
Monolithic slab
Framing Information
Truss
Roof Framing:
2x6
Exterior Wall Framing:
Roof Pitch
5/12
Primary:
10/12
Secondary:
Insulation (R)
House And Ceiling Heights
9
First Floor Ceiling:
8
Second Floor Ceiling:
26' 11"
Maximum House Height:
Key Features
Arches
Covered Rear Porch
Dining Room
Double Vanity Sink
Family Room
Foyer
Front Porch
Guest Suite
His and Hers Primary Closets
In-law Suite
Kitchen Island
Laundry 1st Fl
Primary Bdrm Main Floor
Mud Room
None
Open Floor Plan
Separate Tub and Shower
Split Bedrooms
Suited for corner lot
Suited for view lot
Walk-in Closet
Walk-in Pantry

Our Guarantees

  • Only the highest quality plans
  • Int’l Residential Code Compliant
  • Full structural details on all plans
  • Best plan price guarantee
  • Free modification Estimates
  • Builder-ready construction drawings
  • Expert advice from leading designers
  •  PDFs NOW!™ plans in minutes
  • 100% satisfaction guarantee
  • Free Home Building Organizer