20% off ALL House Plans Sitewide
20% off ALL House Plans Sitewide

House Plan: DFD-10784

See All 5 Photos > (photographs may reflect modified homes)
© copyright by designer
SQ FT
1,550
BEDS
3
BATHS
2
STORIES
1
CARS
2
HOUSE PLANS SALE 
START AT  $996.00
For questions and help, live chat, email or call us at 877-895-5299
Floor Plans
Click to Zoom In on Floor Plan
 
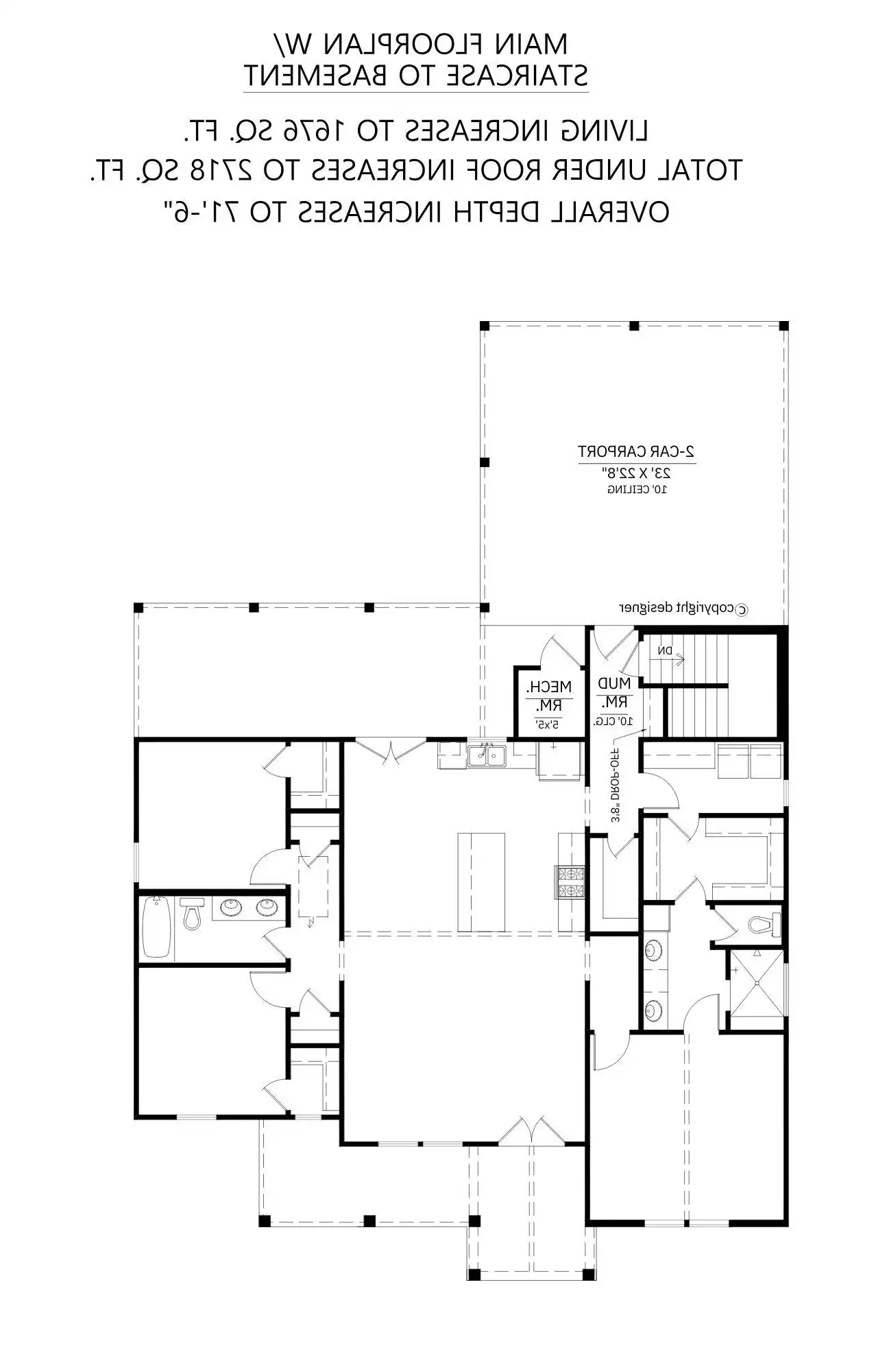
About House Plan 10784:
House Plan 10784 offers 1,550 square feet of thoughtful one-story living with timeless curb appeal. The board and batten exterior with timber accents gives this home a rustic, yet refined look, while a covered front porch sets a welcoming tone. Inside, the open-concept great room connects effortlessly to the kitchen and dining area, complete with a central island, walk-in pantry, and easy access to the rear covered porch. The left side of the home is a private retreat for the primary bedroom, featuring vaulted ceilings, a spa-like ensuite with dual vanity sinks, and a large walk-through closet with direct access to the laundry room. On the right, two secondary bedrooms share a full bath, offering comfort and flexibility for guests, kids, or a home office. A front-load, 2-car garage adds the finishing touch to this well-balanced and functional layout.
House Plan Pricing
STEP 1 Select Your Package

PDF Single Build


Digital plans emailed to you in PDF format that allows for printing copies and sharing electronically with contractors, subs, decorators, and more. This package includes a license to build the home one time.

PDF Single Build $1,245
Most recommended package

5 Printed Sets + PDF


Includes 5 physical printed blueprint sets, shipped free via UPS within the U.S. Printed sets ship within 1 business day and are delivered within 3 – 5 business days. A complimentary PDF plan set is also emailed within 1 business day for easy sharing and local printing. These plans may be used to construct one home.

5 Printed Sets + PDF $1,545
5 Printed Sets + PDF

PDF Unlimited Build


Digital plans with an unlimited build license emailed in PDF format, that allows for printing copies on a home printer or local print shop and sharing with contractors, subs, decorators and more 

PDF Unlimited Build $1,945
Digital plans including unlimited build license

CAD + PDF Unlimited Build


This plan package is created in AutoCAD and delivered in .DWG format. CAD files are intended for use by design professionals, structural engineers, and builders to update plans for local building codes or to make revisions based on specific needs, lot requirements, and budget considerations. A complimentary PDF copy is included with this package for reference. CAD packages are delivered within 1 to 2 business days.
 
This package also comes with a multi-use building license, granting permission to construct the home an unlimited number of times, along with a copyright release for making revisions and printing unlimited copies.
 
For details on the specific CAD program used, please refer to the PLAN DETAILS section located above the floor plan on each plan page.

CAD + PDF Unlimited Build $2,745
2D electronic editable computer files
STEP 2 Need To Reverse This Plan?
STEP 3 CHOOSE YOUR FOUNDATION
STEP 4 OPTIONAL ADD-ONS
Subtotal:
$1245
FREE SHIPPING
 
Plan Details
See All Details
Finished Square Footage
1,550 Sq. Ft.
Main Level:
1,550 Sq. Ft.
Total:
Room Details
3
Bedrooms:
2
Full Baths:
General House Information
1
Number of Stories:
48' 10"
Width:
63' 6"
Depth:
Single
Dwelling Number:
None
Bonus Access:
Unfinished Square Footage
455 Sq. Ft.
Porch:
GARAGE
Rear
Garage Location:
2
Garage Size:
Exterior Style
Farmhouse
Modern Farmhouse
Collections
Affordable
Empty Nester
First Home
Kitchens
Primary Suites
North Carolina
Open Floor Plan
Outdoor Living
Split Bedroom
Foundation
Basement Foundation
Crawl Space
Slab
Framing Information
Stick
Roof Framing:
2x4
Exterior Wall Framing:
Roof Pitch
9/12
Primary:
12/12
Secondary:
Insulation (R)
House And Ceiling Heights
10
First Floor Ceiling:
22' 10"
Maximum House Height:
Key Features
Attached
Carport
Covered Front Porch
Covered Rear Porch
Dining Room
Double Vanity Sink
Great Room
Kitchen Island
Laundry 1st Fl
L-Shaped
Primary Bdrm Main Floor
Mud Room
Open Floor Plan
Peninsula / Eating Bar
Rear-entry
Split Bedrooms
Walk-in Closet

Our Guarantees

  • Only the highest quality plans
  • Int’l Residential Code Compliant
  • Full structural details on all plans
  • Best plan price guarantee
  • Free modification Estimates
  • Builder-ready construction drawings
  • Expert advice from leading designers
  •  PDFs NOW!™ plans in minutes
  • 100% satisfaction guarantee
  • Free Home Building Organizer