20% off ALL House Plans Sitewide
20% off ALL House Plans Sitewide

House Plan: DFD-10971

See All 5 Photos > (photographs may reflect modified homes)
© copyright by designer
SQ FT
3,797
BEDS
8
BATHS
6.5
STORIES
3
CARS
0
HOUSE PLANS SALE 
START AT  $1,680.00
For questions and help, live chat, email or call us at 877-895-5299
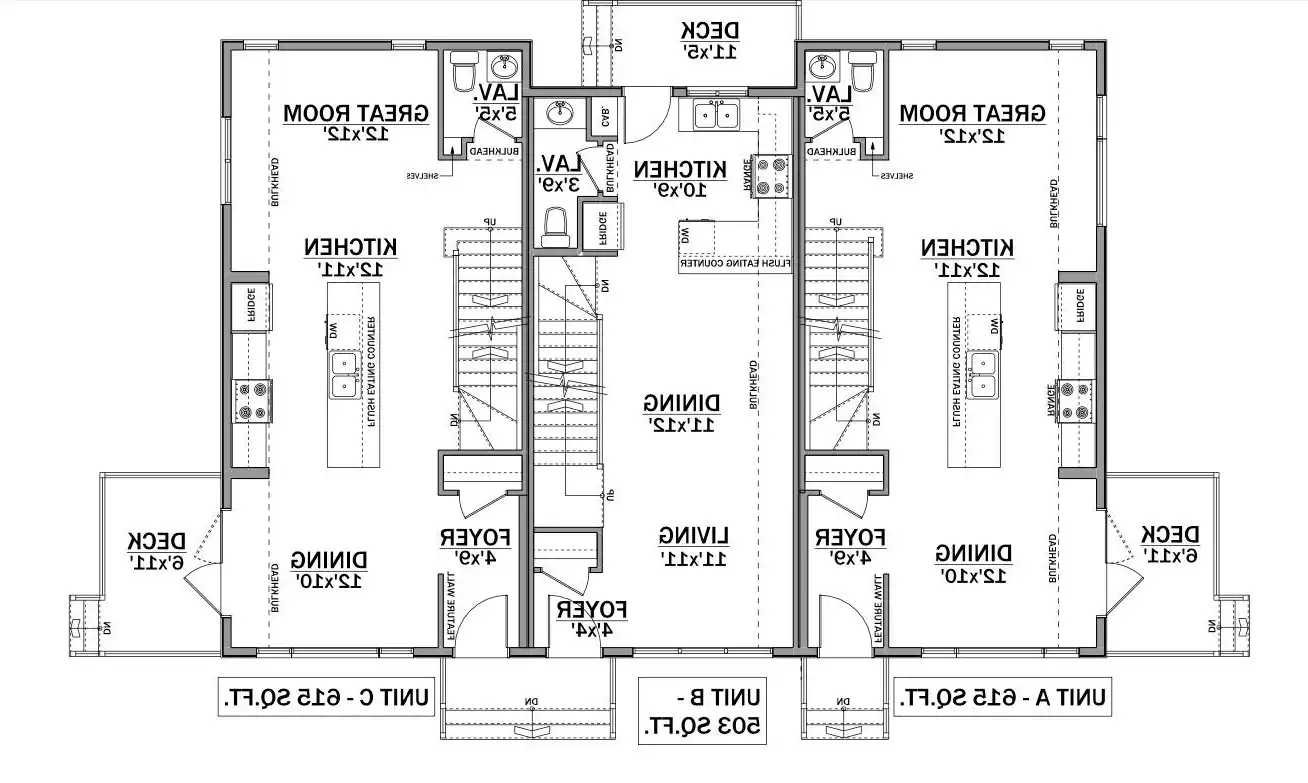
Floor Plans
Click to Zoom In on Floor Plan
 
About House Plan 10971:
If you're looking for a multi-unit home with updated Craftsman style, give House Plan 10971 a try. This triplex offers side-by-side units with 3,797 square feet, 8 bedrooms, 6 full bathrooms, and 3 half bathrooms in total. Units A and C have three bedrooms while Unit B has two bedrooms plus a flex room. With open-concept main levels and grouped bedrooms above, each unit is perfectly suited for a growing family. Make sure to look at the floor plans, because the outer units are mirror images of the same layout while the center unit is arranged differently! 
House Plan Pricing
STEP 1 Select Your Package

PDF Single Build


Digital plans emailed to you in PDF format that allows for printing copies and sharing electronically with contractors, subs, decorators, and more. This package includes a license to build the home one time.

PDF Single Build $2,100
Most recommended package

CAD + PDF Single Build


CAD files are a complete set of construction drawings delivered electronically. They can be used for any type of modification—including major design changes and engineering—and include a release granting permission to modify the plan. Most CAD plan orders are emailed the same or next business day.
 
This package also comes with a PDF set of plans and a copyright release for making modifications and printing unlimited copies.
 
CAD files are provided in .dwg format. For details on the specific CAD program used, please refer to the PLAN DETAILS section located above the floor plan on each plan’s page.

CAD + PDF Single Build $2,800
2D electronic editable computer files

CAD + PDF Unlimited Build


CAD files are a complete set of construction drawings delivered electronically. They can be used for any type of modification—including major design changes and engineering—and include a release granting permission to modify the plan. Most CAD plan orders are emailed the same or next business day.
 
This package also comes with a PDF set of plans and a multi-use building license, granting permission to construct the home an unlimited number of times, along with a copyright release for making modifications and printing unlimited copies.
 
CAD files are provided in .dwg format. For details on the specific CAD program used, please refer to the PLAN DETAILS section located above the floor plan on each plan’s page.

CAD + PDF Unlimited Build $3,300

States N/A: CADUNLIMITEDBUILD
2D electronic editable computer files
STEP 2 Need To Reverse This Plan?
STEP 3 CHOOSE YOUR FOUNDATION
STEP 4 OPTIONAL ADD-ONS
Subtotal:
$2100
FREE SHIPPING
 
Plan Details
See All Details
Finished Square Footage
1,736 Sq. Ft.
Main Level:
1,803 Sq. Ft.
Upper Level:
248 Sq. Ft.
Third Level:
3,797 Sq. Ft.
Total:
Room Details
8
Bedrooms:
6
Full Baths:
3
Half Baths:
General House Information
3
Number of Stories:
48' 0"
Width:
35' 2"
Depth:
Multi-Family
Dwelling Number:
None
Bonus Access:
Unfinished Square Footage
GARAGE
0
Garage Size:
Exterior Style
Beach
Contemporary
Craftsman
Transitional
Collections
Builders
Canada
Kitchens
Open Floor Plan
Foundation
Basement
Framing Information
Truss
Roof Framing:
2x6
Exterior Wall Framing:
Roof Pitch
6.5/12
Primary:
Insulation (R)
House And Ceiling Heights
8
First Floor Ceiling:
8
Second Floor Ceiling:
32' 2"
Maximum House Height:
Key Features
Covered Front Porch
Deck
Family Style
Foyer
Great Room
Kitchen Island
Loft / Balcony
Primary Bdrm Upstairs
None
Open Floor Plan
Peninsula / Eating Bar
Walk-in Closet

Our Guarantees

  • Only the highest quality plans
  • Int’l Residential Code Compliant
  • Full structural details on all plans
  • Best plan price guarantee
  • Free modification Estimates
  • Builder-ready construction drawings
  • Expert advice from leading designers
  •  PDFs NOW!™ plans in minutes
  • 100% satisfaction guarantee
  • Free Home Building Organizer