15% off ALL House Plans Sitewide

House Plan: DFD-11006

See All 12 Photos > (photographs may reflect modified homes)
© copyright by designer
SQ FT
600
BEDS
2
BATHS
1
STORIES
1
CARS
0
HOUSE PLANS SALE 
START AT  $531.25
For questions and help, live chat, email or call us at 877-895-5299
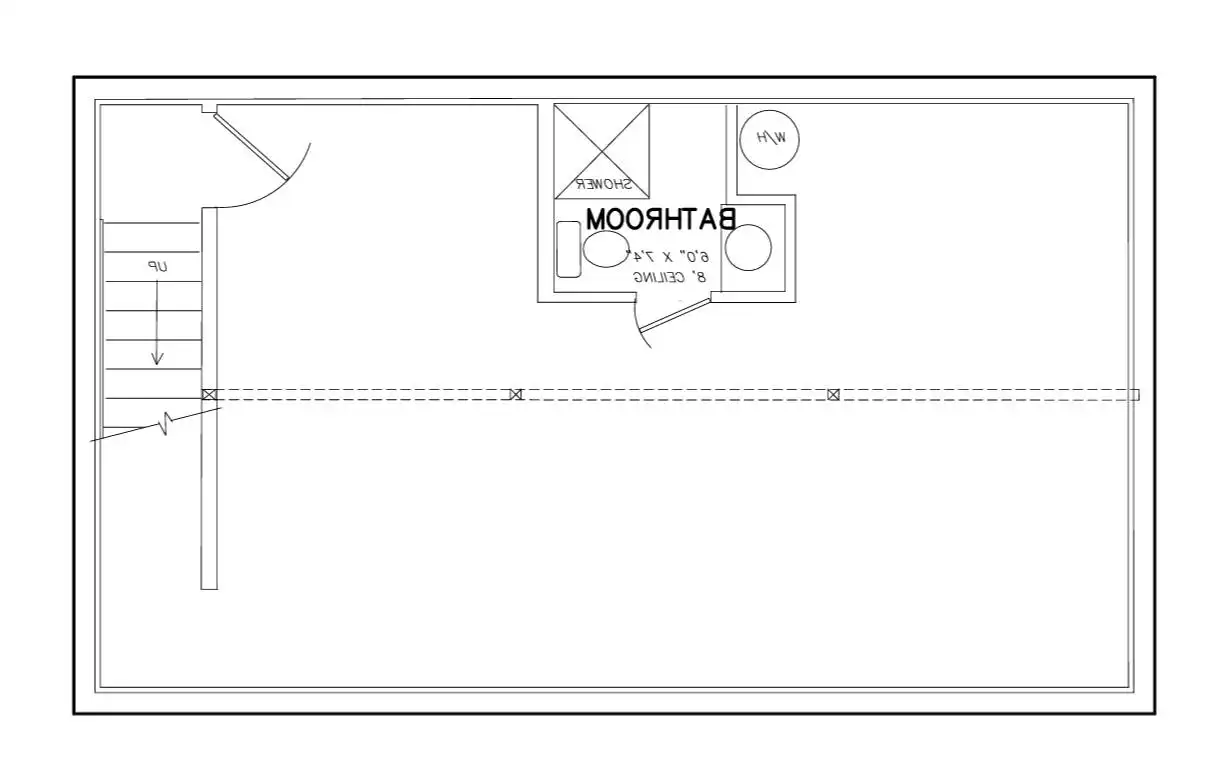
Floor Plans
Click to Zoom In on Floor Plan
 
About House Plan 11006:
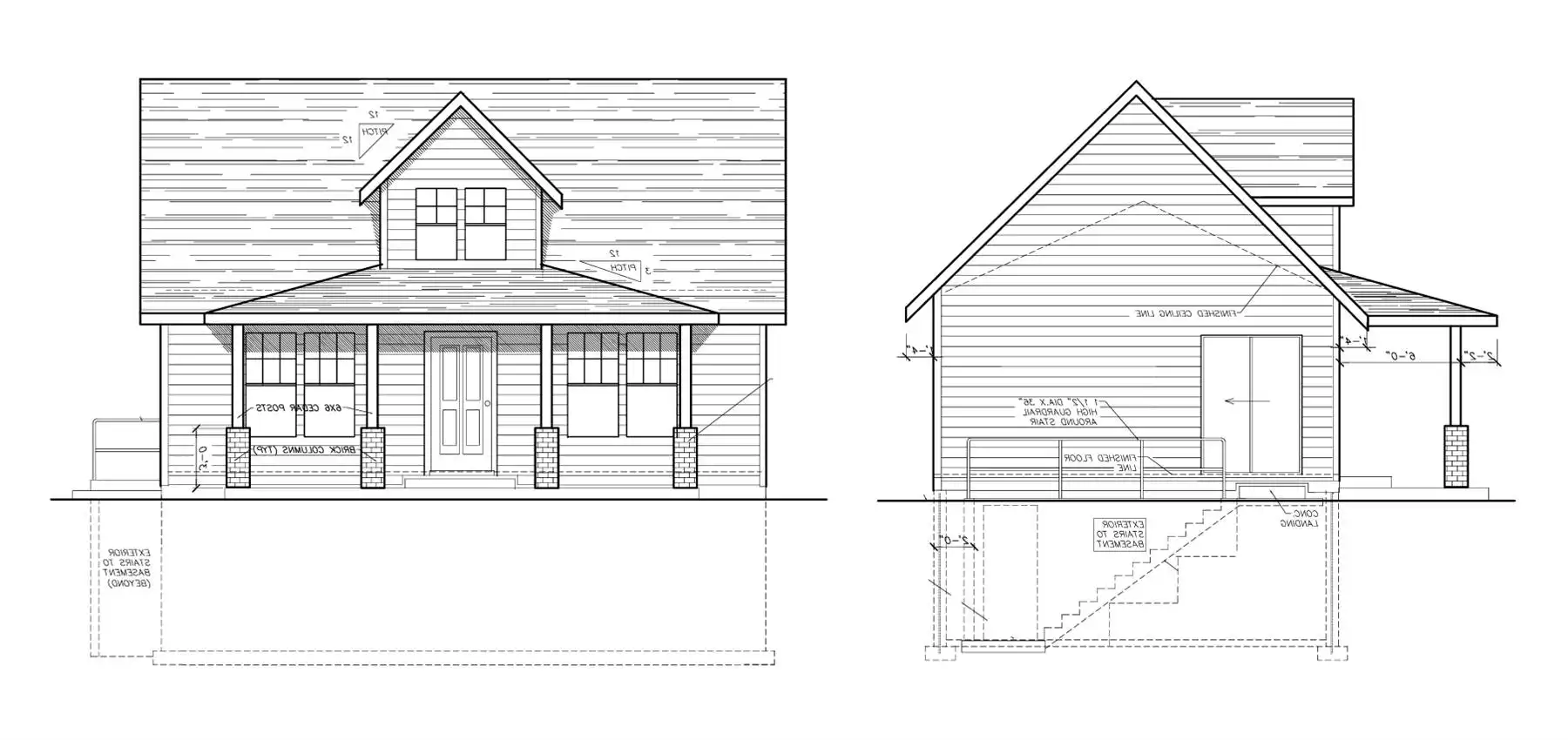
House Plan 11006 is an efficient cottage that offers 600 square feet with two bedrooms and one bathroom in an affordable package. Its simple rectangular footprint and energy-saving design with 2x6 exterior walls, a ductless heat pump, and a tankless water heater all contribute to savings! The layout includes the common areas in front, with a peninsula eat-in kitchen on one side and the living area on the other, while the bedrooms are placed in back along with the hall bathroom and laundry closet. The great room and bedrooms all have vaulted ceilings above! This nifty home would make a lovely ADU or home for first-time owners or downsizers. 

The basement foundation with interior stairs increases the main level to 680 square feet and increases the width to 34', with 2' additional on each side. 
House Plan Pricing
STEP 1 Select Your Package

PDF Bid Set


Home plans stamped "NOT FOR CONSTRUCTION" for cost estimating and bidding purposes only; a minimum 5 set plan package must be purchased within 90 days for a license to build plan set; a credit will be applied towards your house plan upgrade

PDF Bid Set $350
Immediate Delivery!
Digital set of plans for bidding purposes only

PDF Single Build


Digital plans emailed to you in PDF format that allows for printing copies and sharing electronically with contractors, subs, decorators, and more. This package includes a license to build the home one time.

PDF Single Build $625
Immediate Delivery!
Most recommended package

5 Printed Sets + PDF


Includes 5 physical printed blueprint sets, shipped free via UPS within the U.S. Printed sets ship within 1 business day and are delivered within 3 – 5 business days. A complimentary PDF plan set is also emailed within 1 business day for easy sharing and local printing. These plans may be used to construct one home.

5 Printed Sets + PDF $895
5 Printed Sets + PDF

CAD + PDF Single Build


This plan package is created in AutoCAD and delivered in .DWG format. CAD files are intended for use by design professionals, structural engineers, and builders to update plans for local building codes or to make revisions based on specific needs, lot requirements, and budget considerations. A complimentary PDF copy is included with this package for reference. CAD packages are delivered within 1 to 2 business days.
 
This package also comes with a copyright release for making revisions and printing unlimited copies.

For details on the specific CAD program used, please refer to the PLAN DETAILS section located above the floor plan on each plan page.

CAD + PDF Single Build $1,140
2D electronic editable computer files

CAD + PDF Unlimited Build


This plan package is created in AutoCAD and delivered in .DWG format. CAD files are intended for use by design professionals, structural engineers, and builders to update plans for local building codes or to make revisions based on specific needs, lot requirements, and budget considerations. A complimentary PDF copy is included with this package for reference. CAD packages are delivered within 1 to 2 business days.
 
This package also comes with a multi-use building license, granting permission to construct the home an unlimited number of times, along with a copyright release for making revisions and printing unlimited copies.
 
For details on the specific CAD program used, please refer to the PLAN DETAILS section located above the floor plan on each plan page.

CAD + PDF Unlimited Build $1,498

States N/A: CADUNLIMITED+PDF
2D electronic editable computer files
STEP 2 Need To Reverse This Plan?
STEP 3 CHOOSE YOUR FOUNDATION
STEP 4 OPTIONAL ADD-ONS
Subtotal:
$625
FREE SHIPPING
 
Plan Details
See All Details
Finished Square Footage
600 Sq. Ft.
Main Level:
600 Sq. Ft.
Total:
Room Details
2
Bedrooms:
1
Full Baths:
General House Information
1
Number of Stories:
30' 0"
Width:
20' 0"
Depth:
Single
Dwelling Number:
None
Bonus Access:
Unfinished Square Footage
135 Sq. Ft.
Front Porch:
GARAGE
0
Garage Size:
Exterior Style
Cottage
Country
Farmhouse
Lake
Ranch
Collections
ADU
Affordable
Budget
California
Empty Nester
Exclusive
First Home
Open Floor Plan
Tennessee
Vacation
Foundation
Basement with Exterior Staircase
Basement with Interior Staircase
Crawl Space
Slab
Framing Information
Truss
Roof Framing:
2x6
Exterior Wall Framing:
Roof Pitch
12/12
Primary:
3/12
Secondary:
Roof Load
20 PSF
Live:
10 PSF
Dead:
135 PSF / 3 sec. gust
Wind:
Insulation (R)
21
Exterior Wall:
49
Ceiling:
10
Floor:
House And Ceiling Heights
9
First Floor Ceiling:
20' 6"
Maximum House Height:
Key Features
Covered Front Porch
Family Style
Great Room
Laundry 1st Fl
L-Shaped
None
Peninsula / Eating Bar
Suited for corner lot
Suited for narrow lot
Vaulted Ceilings
Vaulted Foyer
Vaulted Great Room/Living
Vaulted Primary
Build Beautiful With Our Trusted Brands

CLICK HERE TO RECEIVE COMPLIMENTARY PRODUCT INFO

Our Guarantees