20% off ALL House Plans Sitewide
20% off ALL House Plans Sitewide

House Plan: DFD-11010

See All 11 Photos > (photographs may reflect modified homes)
© copyright by designer
SQ FT
7,886
BEDS
10
BATHS
8.5
STORIES
2
CARS
0
HOUSE PLANS SALE 
START AT  $1,652.00
For questions and help, live chat, email or call us at 877-895-5299
Floor Plans
Click to Zoom In on Floor Plan
 
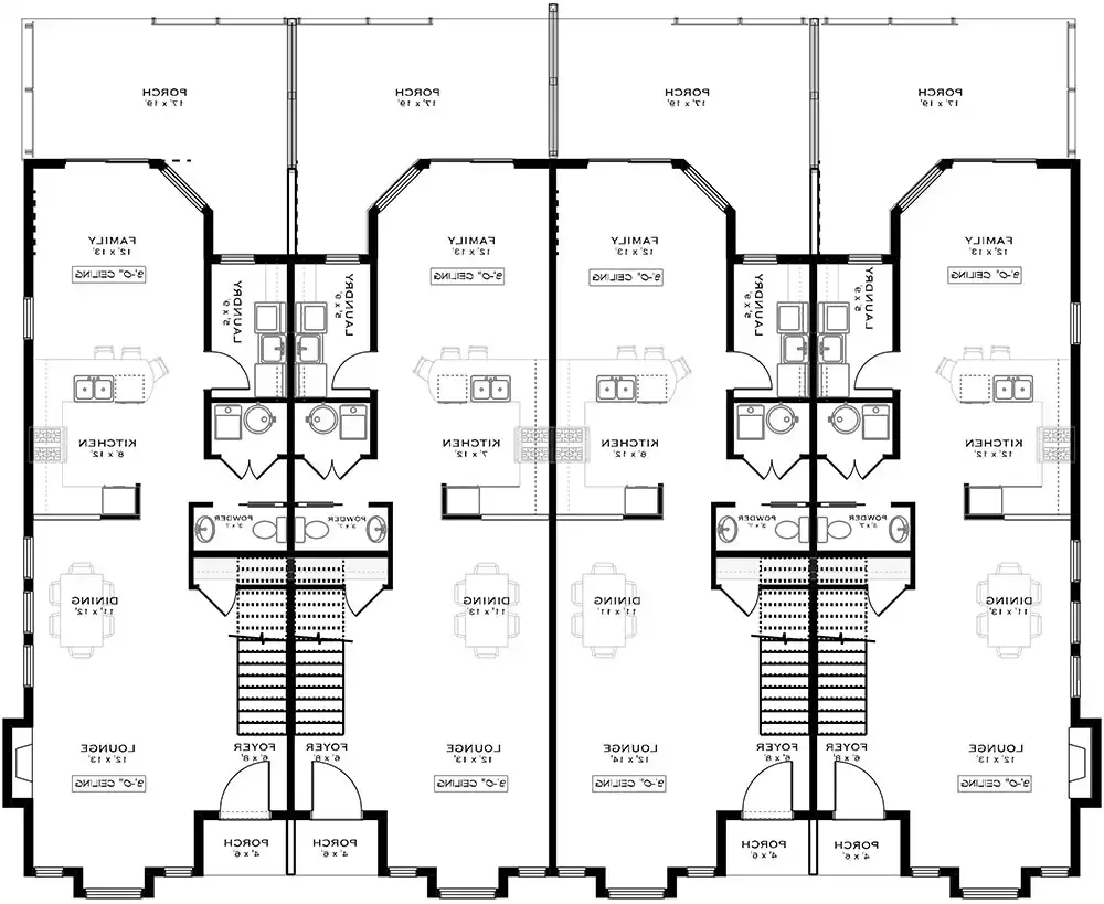
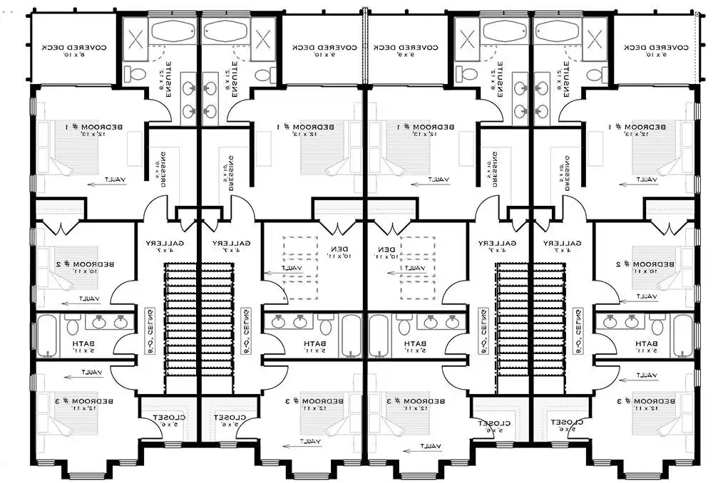
About House Plan 11010:
House Plan 11010 promises to make the most of a building lot with its dramatic contemporary style and four-unit design. It totals 7,886 square feet, ten bedrooms, eight full bathrooms, and four half bathrooms across two levels, and each unit offers about 1,900 square feet, two or three bedrooms, and two-and-a-half baths. The main level hosts the common areas including the lounge, dining space, peninsula kitchen, family room, laundry room, and powder room. Upstairs, there are three bedrooms and two bathrooms in the outer units and two bedrooms, two baths, and a den in the inner units. The primary suite definitely doesn't skimp with its five-piece bath and private rear deck! 
House Plan Pricing
STEP 1 Select Your Package

PDF Single Build


Digital plans emailed to you in PDF format that allows for printing copies and sharing electronically with contractors, subs, decorators, and more. This package includes a license to build the home one time.

PDF Single Build $2,065
Most recommended package

CAD + PDF Single Build


This plan package is created in AutoCAD and delivered in .DWG format. CAD files are intended for use by design professionals, structural engineers, and builders to update plans for local building codes or to make revisions based on specific needs, lot requirements, and budget considerations. A complimentary PDF copy is included with this package for reference. CAD packages are delivered within 1 to 2 business days.
 
This package also comes with a copyright release for making revisions and printing unlimited copies.

For details on the specific CAD program used, please refer to the PLAN DETAILS section located above the floor plan on each plan page.

CAD + PDF Single Build $2,465
2D electronic editable computer files

PDF Unlimited Build


Digital plans with an unlimited build license emailed in PDF format, that allows for printing copies on a home printer or local print shop and sharing with contractors, subs, decorators and more 

PDF Unlimited Build $2,765
Digital plans including unlimited build license

CAD + PDF Unlimited Build


This plan package is created in AutoCAD and delivered in .DWG format. CAD files are intended for use by design professionals, structural engineers, and builders to update plans for local building codes or to make revisions based on specific needs, lot requirements, and budget considerations. A complimentary PDF copy is included with this package for reference. CAD packages are delivered within 1 to 2 business days.
 
This package also comes with a multi-use building license, granting permission to construct the home an unlimited number of times, along with a copyright release for making revisions and printing unlimited copies.
 
For details on the specific CAD program used, please refer to the PLAN DETAILS section located above the floor plan on each plan page.

CAD + PDF Unlimited Build $3,065
2D electronic editable computer files
STEP 2 Need To Reverse This Plan?
STEP 3 CHOOSE YOUR FOUNDATION
STEP 4 OPTIONAL ADD-ONS
Subtotal:
$2065
FREE SHIPPING
 
Plan Details
See All Details
Finished Square Footage
4,434 Sq. Ft.
Main Level:
3,452 Sq. Ft.
Upper Level:
7,886 Sq. Ft.
Total:
Room Details
10
Bedrooms:
8
Full Baths:
4
Half Baths:
General House Information
2
Number of Stories:
77' 5"
Width:
52' 0"
Depth:
Multi-Family
Dwelling Number:
None
Bonus Access:
Unfinished Square Footage
1060 Sq. Ft.
Porch:
96 Sq. Ft.
Front Porch:
964 Sq. Ft.
Rear Porch:
360 Sq. Ft.
Deck:
GARAGE
0
Garage Size:
Exterior Style
Contemporary
Modern
Collections
Architects Choice
Budget
Builders
Primary Suites
Open Floor Plan
Outdoor Living
Foundation
Basement
Crawl Space
Slab
Framing Information
Combination
Roof Framing:
2x6
Exterior Wall Framing:
Roof Pitch
4/12
Primary:
Flat
Secondary:
Insulation (R)
22
Exterior Wall:
40
Ceiling:
32
Floor:
House And Ceiling Heights
9
First Floor Ceiling:
8
Second Floor Ceiling:
27' 4"
Maximum House Height:
Key Features
Covered Front Porch
Covered Rear Porch
Double Vanity Sink
Family Room
Family Style
Fireplace
Foyer
Great Room
Home Office
Laundry 1st Fl
Primary Bdrm Upstairs
None
Open Floor Plan
Peninsula / Eating Bar
Rear Porch
Separate Tub and Shower
U-Shaped
Walk-in Closet

Our Guarantees

  • Only the highest quality plans
  • Int’l Residential Code Compliant
  • Full structural details on all plans
  • Best plan price guarantee
  • Free modification Estimates
  • Builder-ready construction drawings
  • Expert advice from leading designers
  •  PDFs NOW!™ plans in minutes
  • 100% satisfaction guarantee
  • Free Home Building Organizer

See terms opt out anytime