15% off ALL House Plans Sitewide
15% off ALL House Plans Sitewide

House Plan: DFD-11076

See All 2 Photos > (photographs may reflect modified homes)
© copyright by architect
SQ FT
2,308
BEDS
4
BATHS
2
STORIES
1
CARS
2
HOUSE PLANS SALE 
START AT  $1,228.25
For questions and help, live chat, email or call us at 877-895-5299
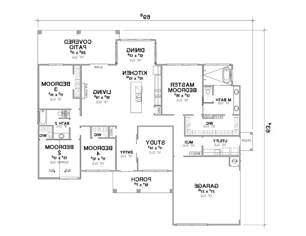
Floor Plans
Click to Zoom In on Floor Plan
 
About House Plan 11076:
Looking for a split-bedroom home with chic style? Check out House Plan 11076! This Scandinavian ranch boasts 2,308 square feet with four bedrooms and two bathrooms. The layout places a study off the foyer while the great room spreads out in back. There's an island kitchen, of course, as well as a sunny dining area and living space with a cozy fireplace. You can also step out to the covered rear patio for fresh air! On one side of this, you'll find the luxe primary suite, the mudroom, the laundry room, and access to the two-car side entry garage. On the other, three bedrooms and a hall bath are grouped together for the kids. What a thoughtful design for today's families! 
House Plan Pricing
STEP 1 Select Your Package

PDF Single Build


Digital plans emailed to you in PDF format that allows for printing copies and sharing electronically with contractors, subs, decorators, and more. This package includes a license to build the home one time.

PDF Single Build $1,445
Most recommended package

CAD + PDF Single Build


This plan package is created in AutoCAD and delivered in .DWG format. CAD files are intended for use by design professionals, structural engineers, and builders to update plans for local building codes or to make revisions based on specific needs, lot requirements, and budget considerations. A complimentary PDF copy is included with this package for reference. CAD packages are delivered within 1 to 2 business days.
 
This package also comes with a copyright release for making revisions and printing unlimited copies.

For details on the specific CAD program used, please refer to the PLAN DETAILS section located above the floor plan on each plan page.

CAD + PDF Single Build $2,445

States N/A: TX,NM,LA,AR
2D electronic editable computer files
STEP 2 Need To Reverse This Plan?
STEP 3 CHOOSE YOUR FOUNDATION
STEP 4 OPTIONAL ADD-ONS
Subtotal:
$1445
FREE SHIPPING
IMPORTANT NOTE: Due to state regulations, the CAD version may not be sold to residents of AL, TN, TX, NM and LA. If residing in any of the aforementioned states, the PDF version does not come with a release to make plan modifications. Modifications can be provided by the original architect. Please contact us for more information.
 
Plan Details
See All Details
Finished Square Footage
2,308 Sq. Ft.
Main Level:
2,308 Sq. Ft.
Total:
Room Details
4
Bedrooms:
2
Full Baths:
General House Information
1
Number of Stories:
69' 8"
Width:
63' 4"
Depth:
Single
Dwelling Number:
None
Bonus Access:
Unfinished Square Footage
486 Sq. Ft.
Garage:
135 Sq. Ft.
Front Porch:
282 Sq. Ft.
Rear Porch:
GARAGE
Front
Garage Location:
2
Garage Size:
Exterior Style
Contemporary
Modern
Ranch
Scandinavian
Collections
First Home
Primary Suites
Open Floor Plan
Outdoor Living
Split Bedroom
Foundation
Basement
Crawl Space
Slab
Framing Information
Stick
Roof Framing:
2x4
Exterior Wall Framing:
Roof Pitch
10/12
Primary:
4/12
Porch:
Roof Load
20
Live:
Insulation (R)
Per IRC Climate Zones
House And Ceiling Heights
10
First Floor Ceiling:
25' 1"
Maximum House Height:
Key Features
Attached
Covered Front Porch
Covered Rear Porch
Dining Room
Double Vanity Sink
Foyer
Great Room
Home Office
Kitchen Island
Laundry 1st Fl
Primary Bdrm Main Floor
Mud Room
Nook / Breakfast Area
Open Floor Plan
Outdoor Living Space
Pantry
Separate Tub and Shower
Side-entry
Split Bedrooms
Walk-in Closet

Our Guarantees

  • Only the highest quality plans
  • Int’l Residential Code Compliant
  • Full structural details on all plans
  • Best plan price guarantee
  • Free modification Estimates
  • Builder-ready construction drawings
  • Expert advice from leading designers
  •  PDFs NOW!™ plans in minutes
  • 100% satisfaction guarantee
  • Free Home Building Organizer