20% Off House Plans Sitewide Ends 11/23
20% Off House Plans Sitewide Ends 11/23

House Plan: DFD-11275

See All 3 Photos > (photographs may reflect modified homes)
© copyright by designer
SQ FT
1,675
BEDS
3
BATHS
2
STORIES
1
CARS
2
HOUSE PLANS SALE 
START AT  $1,076.00
For questions and help, live chat, email or call us at 877-895-5299
Floor Plans
Click to Zoom In on Floor Plan
 
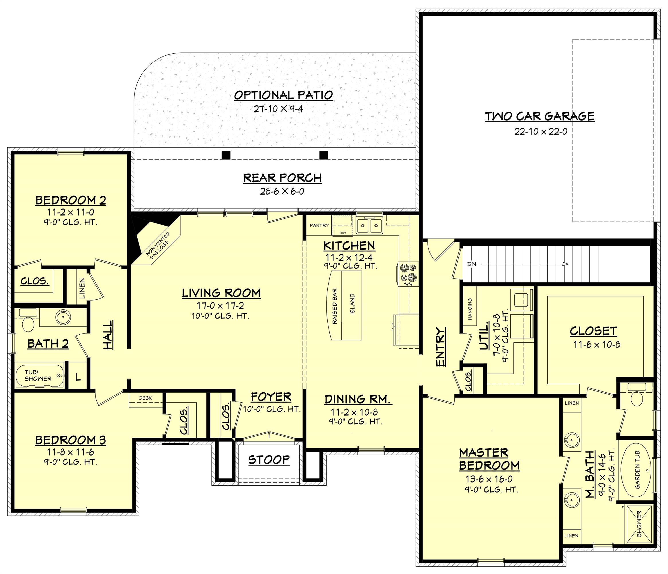
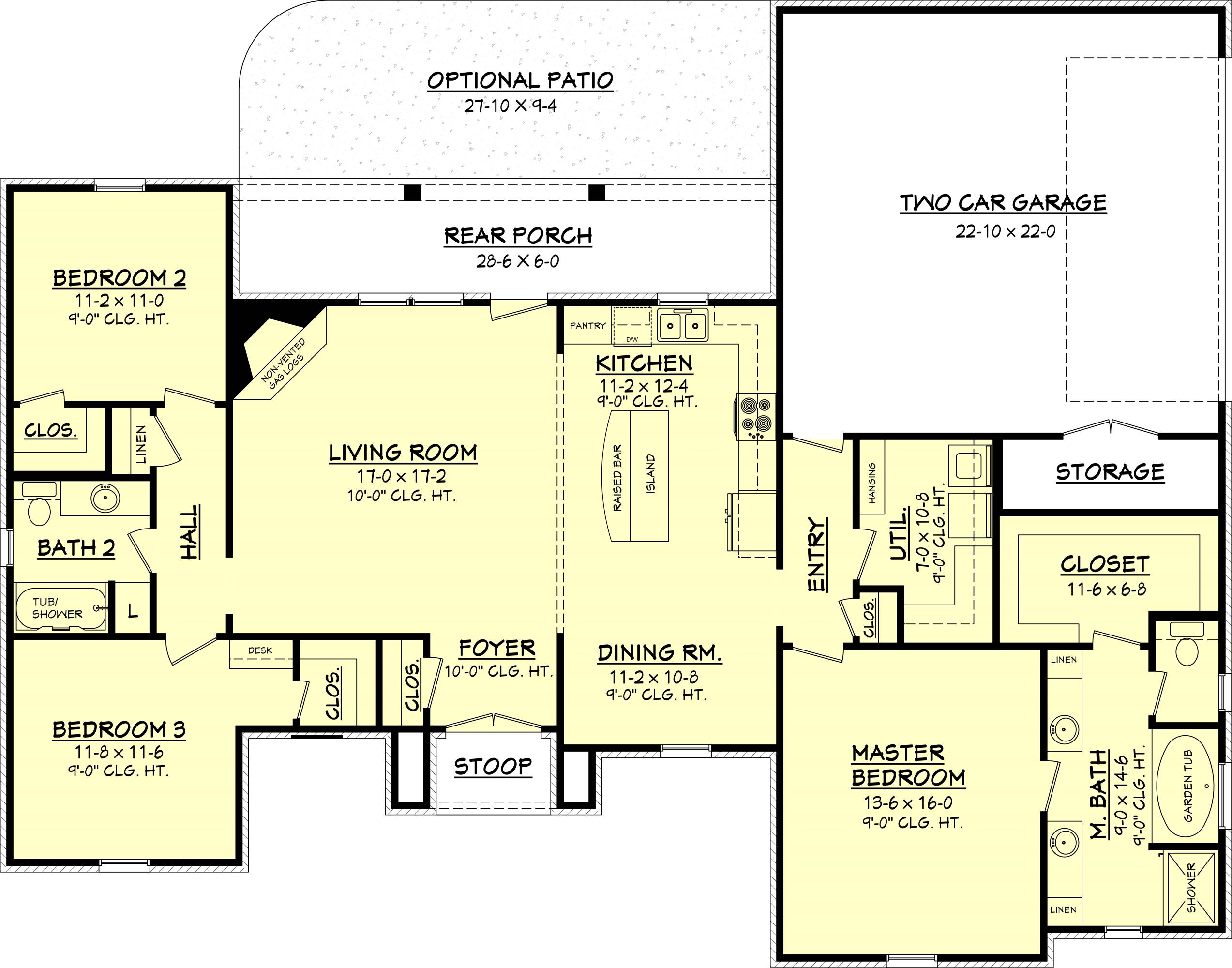
About House Plan 11275:
Designed with both style and practicality, this home features 3 bedrooms and 2 bathrooms with an open-concept layout. The living room, anchored by a fireplace, flows naturally into the dining and kitchen spaces, enhancing the sense of openness. The kitchen is equipped with functional storage and counter space, suitable for daily use or entertaining. The primary suite includes a walk-in closet, dual sinks, a jet tub, and a separate shower, providing a private retreat. Secondary bedrooms are flexible for family, guests, or work-from-home needs. The 2-car garage offers extra storage, keeping household items organized. Combining functional spaces with comfortable design, this home welcomes families to enjoy both everyday living and special gatherings.
House Plan Pricing
STEP 1 Select Your Package

PDF Single Build


Digital plans emailed to you in PDF format that allows for printing copies and sharing electronically with contractors, subs, decorators, and more. This package includes a license to build the home one time.

PDF Single Build $1,345
Most recommended package

5 Printed Sets + PDF


Digital plan emailed to you in PDF format that allows for printing copies on a home printer or local print shop and sharing with contractors, subs, decorators, and more. PLUS five printed sets shipped and delivered 3-5 business days.

5 Printed Sets + PDF $1,595
Digital plans plus 5 printed sets

PDF Unlimited Build


Digital plans with an unlimited build license emailed in PDF format, that allows for printing copies on a home printer or local print shop and sharing with contractors, subs, decorators and more 

PDF Unlimited Build $2,045
Digital plans including unlimited build license

CAD + PDF Unlimited Build


CAD files are a complete set of construction drawings delivered electronically. They can be used for any type of modification—including major design changes and engineering—and include a release granting permission to modify the plan. Most CAD plan orders are emailed the same or next business day.
 
This package also comes with a PDF set of plans and a multi-use building license, granting permission to construct the home an unlimited number of times, along with a copyright release for making modifications and printing unlimited copies.
 
CAD files are provided in .dwg format. For details on the specific CAD program used, please refer to the PLAN DETAILS section located above the floor plan on each plan’s page.

CAD + PDF Unlimited Build $2,445
2D electronic editable computer files
STEP 2 Need To Reverse This Plan?
STEP 3 CHOOSE YOUR FOUNDATION
STEP 4 OPTIONAL ADD-ONS
Subtotal:
$1345
FREE SHIPPING
 
Plan Details
See All Details
Finished Square Footage
1,675 Sq. Ft.
Main Level:
1,675 Sq. Ft.
Total:
Room Details
3
Bedrooms:
2
Full Baths:
General House Information
1
Number of Stories:
63' 10"
Width:
50' 0"
Depth:
Single
Dwelling Number:
Unfinished Square Footage
523 Sq. Ft.
Garage:
47 Sq. Ft.
Storage:
212 Sq. Ft.
Porch:
GARAGE
Rear
Garage Location:
2
Garage Size:
Exterior Style
European
French Country
Ranch
Traditional
Collections
Affordable
First Home
Open Floor Plan
Split Bedroom
Foundation
Crawl Space
Slab
Framing Information
Stick
Roof Framing:
2x4
Exterior Wall Framing:
Roof Pitch
8/12
Primary:
14/12
Secondary:
Insulation (R)
House And Ceiling Heights
9
First Floor Ceiling:
22' 3"
Maximum House Height:
Key Features
Attached
Country Kitchen
Covered Rear Porch
Dining Room
Double Vanity Sink
Fireplace
Foyer
Home Office
Kitchen Island
Laundry 1st Fl
L-Shaped
Primary Bdrm Main Floor
Open Floor Plan
Pantry
Peninsula / Eating Bar
Separate Tub and Shower
Side-entry
Split Bedrooms
Storage Space
Suited for corner lot
Walk-in Closet

Our Guarantees

  • Only the highest quality plans
  • Int’l Residential Code Compliant
  • Full structural details on all plans
  • Best plan price guarantee
  • Free modification Estimates
  • Builder-ready construction drawings
  • Expert advice from leading designers
  •  PDFs NOW!™ plans in minutes
  • 100% satisfaction guarantee
  • Free Home Building Organizer