20% off ALL House Plans Sitewide
20% off ALL House Plans Sitewide

House Plan: DFD-11286

See All 2 Photos > (photographs may reflect modified homes)
© copyright by designer
SQ FT
2,822
BEDS
3
BATHS
3.5
STORIES
1
CARS
3
HOUSE PLANS SALE 
START AT  $1,560.00
For questions and help, live chat, email or call us at 877-895-5299
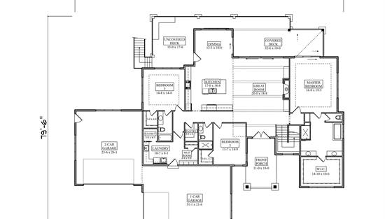
Floor Plans
Click to Zoom In on Floor Plan
 
About House Plan 11286:
House Plan 11286 blends contemporary styling with a spacious ranch layout designed for comfort and flexibility. The vaulted great room is the heart of the home, connecting effortlessly to the gourmet kitchen, dining area, and covered outdoor living spaces. The primary suite enjoys impressive privacy with a large walk-in closet and a well-appointed bath, while two secondary bedrooms share the opposite wing of the home. A mudroom, oversized pantry, front-entry foyer, and large laundry room support a highly functional flow. Outdoor living is elevated with a covered rear porch, uncovered deck, and a built-in outdoor kitchen. The optional walkout basement level provides exceptional bonus space including a rec room, bar, home theater, office, and two guest bedrooms. A spacious 3-car garage completes this luxurious and versatile home design
House Plan Pricing
STEP 1 Select Your Package

PDF Single Build


Digital plans emailed to you in PDF format that allows for printing copies and sharing electronically with contractors, subs, decorators, and more. This package includes a license to build the home one time.

PDF Single Build $1,950
Most recommended package

PDF Unlimited Build


Digital plans with an unlimited build license emailed in PDF format, that allows for printing copies on a home printer or local print shop and sharing with contractors, subs, decorators and more 

PDF Unlimited Build $2,775
Digital plans including unlimited build license

CAD + PDF Single Build


CAD files are a complete set of construction drawings delivered electronically. They can be used for any type of modification—including major design changes and engineering—and include a release granting permission to modify the plan. Most CAD plan orders are emailed the same or next business day.
 
This package also comes with a PDF set of plans and a copyright release for making modifications and printing unlimited copies.
 
CAD files are provided in .dwg format. For details on the specific CAD program used, please refer to the PLAN DETAILS section located above the floor plan on each plan’s page.

CAD + PDF Single Build $3,450
2D electronic editable computer files

CAD Unlimited Build


CAD files are a complete set of construction drawings delivered electronically. They can be used for any type of modification—including major design changes and engineering—and include a release granting permission to modify the plan. Most CAD plan orders are emailed the same or next business day. CAD files are provided in .dwg format. For details on the specific CAD program used, please refer to the PLAN DETAILS section located above the floor plan on each plan’s page.
CAD Unlimited Build $5,025
2D electronic editable computer files
STEP 2 CHOOSE YOUR FOUNDATION
STEP 3 OPTIONAL ADD-ONS
Subtotal:
$1950
FREE SHIPPING
 
Plan Details
See All Details
Finished Square Footage
2,822 Sq. Ft.
Main Level:
2,325 Sq. Ft.
Lower Level:
2,822 Sq. Ft.
Total:
Room Details
3
Bedrooms:
3
Full Baths:
1
Half Baths:
General House Information
1
Number of Stories:
96' 0"
Width:
79' 6"
Depth:
Single
Dwelling Number:
None
Bonus Access:
Unfinished Square Footage
1432 Sq. Ft.
Garage:
1242 Sq. Ft.
Porch:
GARAGE
Front
Garage Location:
3
Garage Size:
Exterior Style
Contemporary
Modern
Modern Farmhouse
Ranch
Collections
Kitchens
Primary Suites
Mountain
Open Floor Plan
Split Bedroom
Foundation
Basement
Crawl Space
Slab
Walkout Basement
Framing Information
Truss
Roof Framing:
2x6
Exterior Wall Framing:
Insulation (R)
Key Features
Attached
Courtyard/Motorcourt Entry
Covered Front Porch
Covered Rear Porch
Deck
Dining Room
Double Vanity Sink
Fireplace
Foyer
Great Room
Kitchen Island
Laundry 1st Fl
L-Shaped
Primary Bdrm Main Floor
Mud Room
Open Floor Plan
Outdoor Kitchen
Peninsula / Eating Bar
Split Bedrooms
Vaulted Ceilings
Walk-in Closet

Our Guarantees

  • Only the highest quality plans
  • Int’l Residential Code Compliant
  • Full structural details on all plans
  • Best plan price guarantee
  • Free modification Estimates
  • Builder-ready construction drawings
  • Expert advice from leading designers
  •  PDFs NOW!™ plans in minutes
  • 100% satisfaction guarantee
  • Free Home Building Organizer