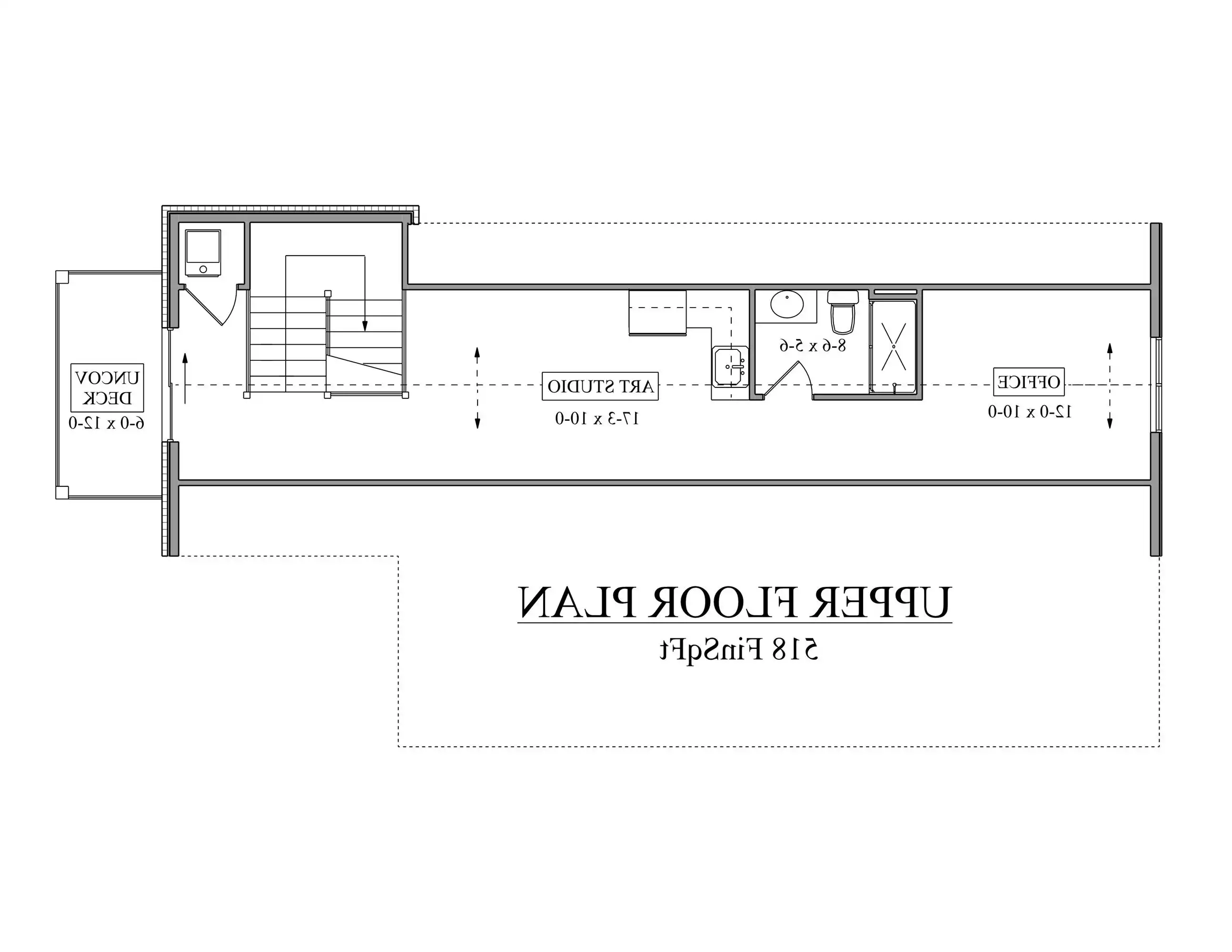
House Plan 11291 is a two-story detached garage plan that pairs practical parking with flexible finished space above. The main level features a three car garage, a finished vestibule, and a covered front porch that adds convenience and curb appeal. Upstairs, the layout includes a dedicated home office, a full bathroom, and a large art studio that can flex into a workshop, hobby room, or creative retreat. An upper-level deck expands the plan’s outdoor living potential and is especially appealing for scenic settings. This design includes 743 square feet of heated living space plus 1,090 square feet of unheated garage area, making it a strong option for homeowners who need storage and a separate work zone. Whether you’re planning for a lake property, a view lot, or simply want a garage that multitasks, this plan delivers smart space in a compact footprint.