20% off ALL House Plans Sitewide
20% off ALL House Plans Sitewide

House Plan: DFD-11391

See All 2 Photos > (photographs may reflect modified homes)
© copyright by designer
SQ FT
2,251
BEDS
3
BATHS
2.5
STORIES
1.5
CARS
2
HOUSE PLANS SALE 
START AT  $1,120.00
For questions and help, live chat, email or call us at 877-895-5299
Floor Plans
Click to Zoom In on Floor Plan
 
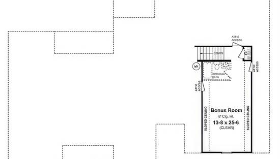
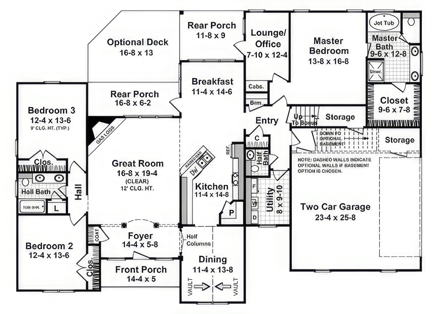
About House Plan 11391:
House Plan 11391 delivers a thoughtful blend of classic style and everyday comfort in a spacious 3-bedroom, 2.5-bath layout. A welcoming front porch and vaulted foyer lead into a refined dining room and open great room with 12-foot ceilings, a fireplace, and clear sightlines to the kitchen and breakfast nook. The kitchen is designed for both function and beauty, featuring a raised bar island, walk-in pantry, and access to a rear porch perfect for entertaining. The main-level master suite includes a luxurious bath with a soaking tub, walk-in shower, and generous walk-in closet. Two secondary bedrooms share a well-appointed hall bath, while a flexible office/lounge and upstairs bonus room add versatility. With a two-car garage, dedicated laundry, and optional rear deck, this home blends family-friendly design with timeless elegance
House Plan Pricing
STEP 1 Select Your Package

Study Set - Printed


One printed set of house plans stamped NOT FOR CONSTRUCTION". This set is intended for review purposes and are mailed to you. To build from the plans, you need to upgrade to a licensed set.
Study Set - Printed $1,250
One Printed Set - Not for Construction

PDF Single Build


Digital plans emailed to you in PDF format that allows for printing copies and sharing electronically with contractors, subs, decorators, and more. This package includes a license to build the home one time.

PDF Single Build $1,400
Most recommended package

5 Printed Sets


Five Printed Sets of Residential Construction Drawings are typically 24” x 36” documents and come with a license to construct a single residence shipped to a physical address. Keep in mind PDF Plan Packages are our most popular choice which allows you to print as many copies as you need and to electronically send files to your builder, subcontractors, etc.

5 Printed Sets $1,500
Five printed sets of house plans

5 Printed Sets + PDF


Digital plan emailed to you in PDF format that allows for printing copies on a home printer or local print shop and sharing with contractors, subs, decorators, and more. PLUS five printed sets shipped and delivered 3-5 business days.

5 Printed Sets + PDF $1,700
Digital plans plus 5 printed sets

CAD + PDF Single Build


CAD files are a complete set of construction drawings delivered electronically. They can be used for any type of modification—including major design changes and engineering—and include a release granting permission to modify the plan. Most CAD plan orders are emailed the same or next business day.
 
This package also comes with a PDF set of plans and a copyright release for making modifications and printing unlimited copies.
 
CAD files are provided in .dwg format. For details on the specific CAD program used, please refer to the PLAN DETAILS section located above the floor plan on each plan’s page.

CAD + PDF Single Build $2,100
2D electronic editable computer files
STEP 2 Need To Reverse This Plan?
STEP 3 CHOOSE YOUR FOUNDATION
STEP 4 OPTIONAL ADD-ONS
Subtotal:
$1400
FREE SHIPPING
 
Plan Details
See All Details
Finished Square Footage
2,251 Sq. Ft.
Main Level:
2,251 Sq. Ft.
Lower Level:
2,251 Sq. Ft.
Total:
Room Details
3
Bedrooms:
2
Full Baths:
1
Half Baths:
General House Information
1.5
Number of Stories:
73' 8"
Width:
53' 2"
Depth:
Single
Dwelling Number:
1st Floor
Bonus Access:
Unfinished Square Footage
654 Sq. Ft.
Garage:
72 Sq. Ft.
Front Porch:
208 Sq. Ft.
Rear Porch:
455 Sq. Ft.
Bonus Room:
GARAGE
Side
Garage Location:
2
Garage Size:
Exterior Style
Country
Craftsman
Farmhouse
French Country
Modern Farmhouse
Ranch
Collections
Affordable
Builders
First Home
Split Bedroom
Foundation
Basement
Crawl Space
Slab
Framing Information
Stick
Roof Framing:
2x4
Exterior Wall Framing:
Roof Pitch
8 in 12
Primary:
10 in 12
Secondary:
Roof Load
30
Live:
10
Dead:
40
Wind:
Insulation (R)
15
Exterior Wall:
38
Interior Wall:
19
Ceiling:
19
Floor:
House And Ceiling Heights
9
First Floor Ceiling:
22' 3"
Maximum House Height:
Key Features
Attached
Bonus Room
Covered Front Porch
Covered Rear Porch
Deck
Dining Room
Double Vanity Sink
Fireplace
Formal LR
Foyer
Great Room
Home Office
Laundry 1st Fl
Library/Media Rm
Primary Bdrm Main Floor
Nook / Breakfast Area
Oversized
Pantry
Rear Porch
Separate Tub and Shower
Split Bedrooms
Storage Space
Unfinished Space
Vaulted Ceilings
Walk-in Closet
Walk-in Pantry

Our Guarantees

  • Only the highest quality plans
  • Int’l Residential Code Compliant
  • Full structural details on all plans
  • Best plan price guarantee
  • Free modification Estimates
  • Builder-ready construction drawings
  • Expert advice from leading designers
  •  PDFs NOW!™ plans in minutes
  • 100% satisfaction guarantee
  • Free Home Building Organizer