15% off ALL House Plans Sitewide
15% off ALL House Plans Sitewide

House Plan: DFD-11395

See All 7 Photos > (photographs may reflect modified homes)
© copyright by designer
SQ FT
2,185
BEDS
3
BATHS
2.5
STORIES
2
CARS
2
HOUSE PLANS SALE 
START AT  $1,228.25
For questions and help, live chat, email or call us at 877-895-5299
Floor Plans
Click to Zoom In on Floor Plan
 
About House Plan 11395:
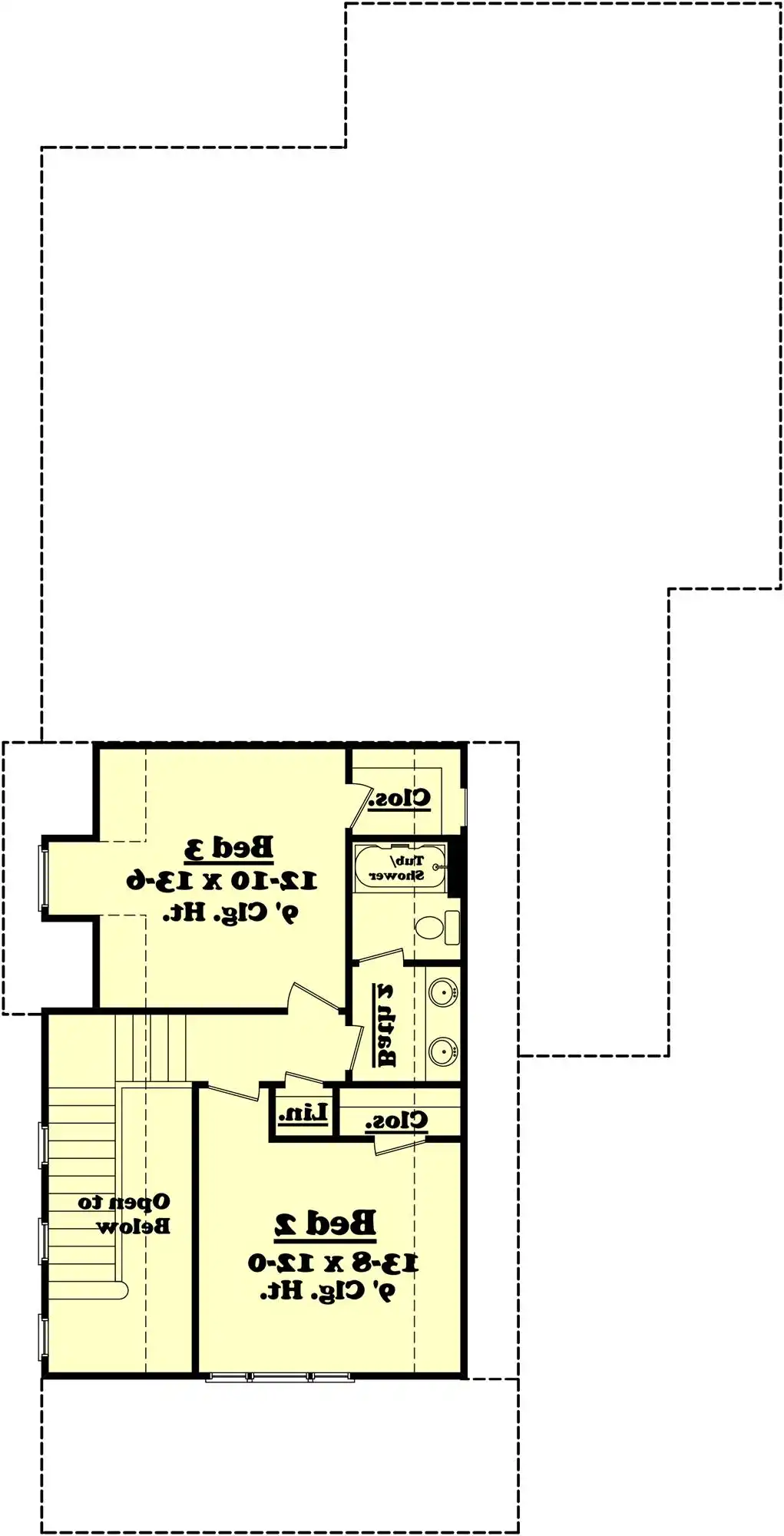
At 2,185 square feet, House Plan 11395 is a beautiful home that blends traditional charm with practical features for today’s families. The open great room offers a cozy double-sided fireplace, creating a warm gathering space that it shares with the dining area on the other side. A large kitchen with ample cabinetry and walk-in pantry provides everything needed for family meals or entertaining. The home includes three bedrooms, two and a half baths, a private office, and a formal dining room for added versatility. The main-level primary suite features a luxurious bathroom with dual sinks, a soaking tub, and a separate shower, along with two spacious walk-in closets. The other bedrooms are placed upstairs. Outdoor spaces include a wide front porch and a screened side porch perfect for quiet evenings. Designed with comfort and style in mind, this home is ideal for growing families.
House Plan Pricing
STEP 1 Select Your Package

PDF Single Build


Digital plans emailed to you in PDF format that allows for printing copies and sharing electronically with contractors, subs, decorators, and more. This package includes a license to build the home one time.

PDF Single Build $1,445
Most recommended package

5 Printed Sets + PDF


Includes 5 physical printed blueprint sets, shipped free via UPS within the U.S. Printed sets ship within 1 business day and are delivered within 3 – 5 business days. A complimentary PDF plan set is also emailed within 1 business day for easy sharing and local printing. These plans may be used to construct one home.

5 Printed Sets + PDF $1,695
5 Printed Sets + PDF

PDF Unlimited Build


Digital plans with an unlimited build license emailed in PDF format, that allows for printing copies on a home printer or local print shop and sharing with contractors, subs, decorators and more 

PDF Unlimited Build $2,145
Digital plans including unlimited build license

CAD + PDF Unlimited Build


This plan package is created in AutoCAD and delivered in .DWG format. CAD files are intended for use by design professionals, structural engineers, and builders to update plans for local building codes or to make revisions based on specific needs, lot requirements, and budget considerations. A complimentary PDF copy is included with this package for reference. CAD packages are delivered within 1 to 2 business days.
 
This package also comes with a multi-use building license, granting permission to construct the home an unlimited number of times, along with a copyright release for making revisions and printing unlimited copies.
 
For details on the specific CAD program used, please refer to the PLAN DETAILS section located above the floor plan on each plan page.

CAD + PDF Unlimited Build $2,545
2D electronic editable computer files
STEP 2 Need To Reverse This Plan?
STEP 3 CHOOSE YOUR FOUNDATION
STEP 4 OPTIONAL ADD-ONS
Subtotal:
$1445
FREE SHIPPING
 
Plan Details
See All Details
Finished Square Footage
1,623 Sq. Ft.
Main Level:
562 Sq. Ft.
Upper Level:
2,185 Sq. Ft.
Total:
Room Details
3
Bedrooms:
2
Full Baths:
1
Half Baths:
General House Information
2
Number of Stories:
40' 6"
Width:
79' 8"
Depth:
Single
Dwelling Number:
None
Bonus Access:
Unfinished Square Footage
501 Sq. Ft.
Garage:
48 Sq. Ft.
Storage:
324 Sq. Ft.
Porch:
198 Sq. Ft.
Front Porch:
126 Sq. Ft.
Rear Porch:
GARAGE
Rear
Garage Location:
2
Garage Size:
Exterior Style
Cottage
Country
Farmhouse
Traditional
Collections
Affordable
Budget
First Home
Kitchens
Split Bedroom
Foundation
Basement
Crawl Space
Slab
Framing Information
Stick
Roof Framing:
2x4
Exterior Wall Framing:
Roof Pitch
10/12
Primary:
4/12
Secondary:
2/12
Teritary:
Insulation (R)
House And Ceiling Heights
10
First Floor Ceiling:
9
Second Floor Ceiling:
26' 10"
Maximum House Height:
Key Features
Attached
Country Kitchen
Covered Front Porch
Dining Room
Double Vanity Sink
Fireplace
Foyer
Great Room
His and Hers Primary Closets
Home Office
Kitchen Island
Laundry 1st Fl
Primary Bdrm Main Floor
Mud Room
Rear-entry
Screened Porch/Sunroom
Separate Tub and Shower
Split Bedrooms
Storage Space
Suited for corner lot
Suited for narrow lot
U-Shaped
Walk-in Closet
Walk-in Pantry

Our Guarantees

  • Only the highest quality plans
  • Int’l Residential Code Compliant
  • Full structural details on all plans
  • Best plan price guarantee
  • Free modification Estimates
  • Builder-ready construction drawings
  • Expert advice from leading designers
  •  PDFs NOW!™ plans in minutes
  • 100% satisfaction guarantee
  • Free Home Building Organizer