15% off ALL House Plans Sitewide
15% off ALL House Plans Sitewide

House Plan: DFD-11413

See All 25 Photos > (photographs may reflect modified homes)
© copyright by designer
SQ FT
2,394
BEDS
3
BATHS
3.5
STORIES
1.5
CARS
2
PLANS FROM $1,445
For questions and help, live chat, email or call us at 877-895-5299
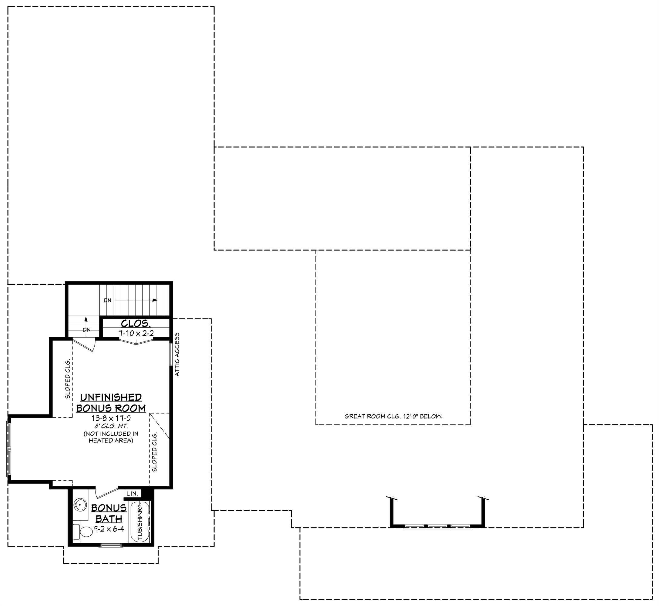
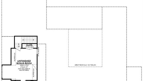
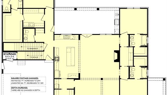
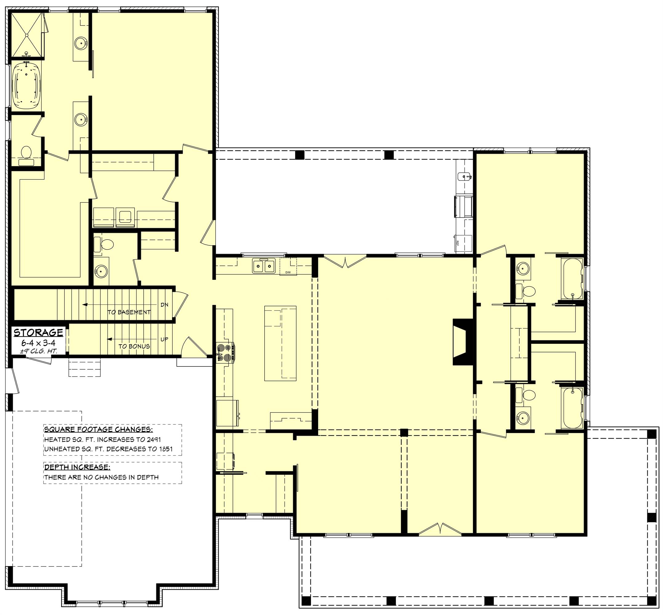
Floor Plans
Click to Zoom In on Floor Plan
 
About House Plan 11413:
This beautiful 2,394 square foot design offers 3 bedrooms, 3.5 baths, and timeless farmhouse charm with modern conveniences. The open living spaces include a grand great room with beams, flowing naturally into the dining and kitchen areas. A well-appointed kitchen with oversized island, walk-in pantry, and seamless serving access makes family meals and entertaining effortless. The private primary suite offers a spa-like bath with an oversized shower and a large closet. Guest bedrooms each enjoy walk-in closets and private baths, creating comfort and privacy for family or visitors. A large laundry, extra half bath, and dedicated office ensure functionality and convenience throughout the home. The bonus room provides added space for hobbies, guests, or recreation. With welcoming porches and outdoor living areas, this home is ideal for gathering and making lasting memories.
House Plan Pricing
STEP 1 Select Your Package

5 Printed Sets + PDF


Includes 5 physical printed blueprint sets, shipped free via UPS within the Continental U.S. Printed sets ship within 1 business day and are delivered within 3 – 5 business days. A complimentary PDF plan set is also emailed within 1 business day for easy sharing and local printing. These plans may be used to construct one home.

5 Printed Sets + PDF $1,695
5 Printed Sets + PDF

PDF Single Build


Digital plans emailed to you in PDF format that allows for printing copies and sharing electronically with contractors, subs, decorators, and more. This package includes a license to build the home one time.

PDF Single Build $1,445
Most recommended package

PDF Unlimited Build


Digital plans with an unlimited build license emailed in PDF format, that allows for printing copies on a home printer or local print shop and sharing with contractors, subs, decorators and more 

PDF Unlimited Build $2,145
Digital plans including unlimited build license

CAD + PDF Unlimited Build


This plan package is created in AutoCAD and delivered in .DWG format. CAD files are intended for use by design professionals, structural engineers, and builders to update plans for local building codes or to make revisions based on specific needs, lot requirements, and budget considerations. A complimentary PDF copy is included with this package for reference. CAD packages are delivered within 1 to 2 business days.
 
This package also comes with a multi-use building license, granting permission to construct the home an unlimited number of times, along with a copyright release for making revisions and printing unlimited copies.
 
For details on the specific CAD program used, please refer to the PLAN DETAILS section located above the floor plan on each plan page.

CAD + PDF Unlimited Build $2,545
2D electronic editable computer files
STEP 2 Need To Reverse This Plan?
STEP 3 CHOOSE YOUR FOUNDATION
STEP 4 OPTIONAL ADD-ONS
Subtotal:
$1695
FREE SHIPPING
 
Plan Details
See All Details
Finished Square Footage
2,394 Sq. Ft.
Main Level:
2,394 Sq. Ft.
Total:
Room Details
3
Bedrooms:
3
Full Baths:
1
Half Baths:
General House Information
1.5
Number of Stories:
75' 0"
Width:
69' 0"
Depth:
Single
Dwelling Number:
2nd Floor
Bonus Access:
Unfinished Square Footage
651 Sq. Ft.
Garage:
27 Sq. Ft.
Storage:
785 Sq. Ft.
Porch:
427 Sq. Ft.
Front Porch:
358 Sq. Ft.
Rear Porch:
390 Sq. Ft.
Bonus Room:
GARAGE
Front
Garage Location:
2
Garage Size:
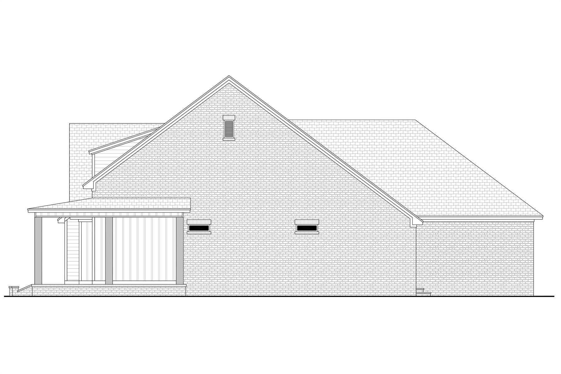
Exterior Style
Country
Farmhouse
Modern Farmhouse
Traditional
Collections
Affordable
First Home
North Carolina
Open Floor Plan
Split Bedroom
Foundation
Basement
Crawl Space
Slab
Walkout Basement
Framing Information
Stick
Roof Framing:
2x4
Exterior Wall Framing:
Roof Pitch
9/12
Primary:
12/12
Secondary:
Insulation (R)
House And Ceiling Heights
10
First Floor Ceiling:
8
Second Floor Ceiling:
29' 0"
Maximum House Height:
Key Features
Attached
Bonus Room
Butler's Pantry
Country Kitchen
Covered Front Porch
Covered Rear Porch
Dining Room
Double Vanity Sink
Fireplace
Foyer
Great Room
Home Office
Kitchen Island
Laundry 1st Fl
L-Shaped
Primary Bdrm Main Floor
Mud Room
Open Floor Plan
Outdoor Kitchen
Peninsula / Eating Bar
Separate Tub and Shower
Side-entry
Split Bedrooms
Storage Space
Suited for corner lot
Walk-in Closet
Wraparound Porch

Our Guarantees

  • Only the highest quality plans
  • Int’l Residential Code Compliant
  • Full structural details on all plans
  • Best plan price guarantee
  • Free modification Estimates
  • Builder-ready construction drawings
  • Expert advice from leading designers
  •  PDFs NOW!™ plans in minutes
  • 100% satisfaction guarantee
  • Free Home Building Organizer