20% off ALL House Plans Sitewide
20% off ALL House Plans Sitewide

House Plan: DFD-11419

See All 25 Photos > (photographs may reflect modified homes)
© copyright by designer
SQ FT
5,351
BEDS
4
BATHS
4.5
STORIES
1
CARS
4
HOUSE PLANS SALE 
START AT  $1,760.00
For questions and help, live chat, email or call us at 877-895-5299
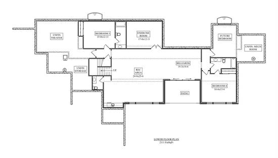
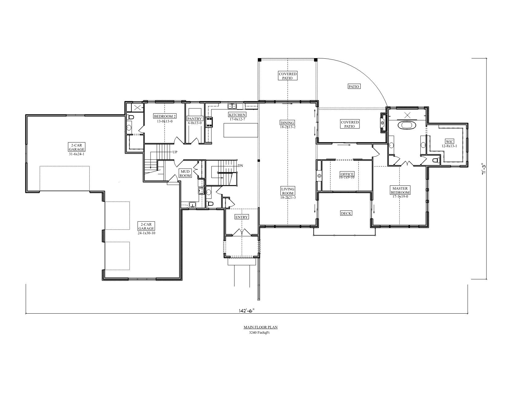
Floor Plans
Click to Zoom In on Floor Plan
 
About House Plan 11419:
This 5,351 square foot layout with 4 bedrooms blends generous spaces with an open floor plan suited for busy households. The main-floor primary suite offers a peaceful retreat with its spacious bath, double vanities, and walk-in closet. A separate guest suite supports extended stays or multigenerational living, while split bedrooms keep everything feeling private and quiet. The vaulted great room brings natural light and a sense of airiness to the heart of the home, connecting seamlessly with the kitchen’s island and breakfast nook. The exercise room, home office, rec room, and unfinished space add even more flexibility for hobbies, storage, and future expansion. Covered porches expand everyday living outdoors with ease. With its family-centered flow and warm, inviting features, this plan offers a comfortable and adaptable place to call home.
House Plan Pricing
STEP 1 Select Your Package

PDF Single Build


Digital plans emailed to you in PDF format that allows for printing copies and sharing electronically with contractors, subs, decorators, and more. This package includes a license to build the home one time.

PDF Single Build $2,200
Most recommended package

5 Printed Sets + PDF


Includes 5 physical printed blueprint sets, shipped free via UPS within the U.S. Printed sets ship within 1 business day and are delivered within 3 – 5 business days. A complimentary PDF plan set is also emailed within 1 business day for easy sharing and local printing. These plans may be used to construct one home.

5 Printed Sets + PDF $2,550
5 Printed Sets + PDF

PDF Unlimited Build


Digital plans with an unlimited build license emailed in PDF format, that allows for printing copies on a home printer or local print shop and sharing with contractors, subs, decorators and more 

PDF Unlimited Build $3,150
Digital plans including unlimited build license

CAD + PDF Single Build


This plan package is created in AutoCAD and delivered in .DWG format. CAD files are intended for use by design professionals, structural engineers, and builders to update plans for local building codes or to make revisions based on specific needs, lot requirements, and budget considerations. A complimentary PDF copy is included with this package for reference. CAD packages are delivered within 1 to 2 business days.
 
This package also comes with a copyright release for making revisions and printing unlimited copies.

For details on the specific CAD program used, please refer to the PLAN DETAILS section located above the floor plan on each plan page.

CAD + PDF Single Build $3,700
2D electronic editable computer files

CAD Unlimited Build


CAD files are a complete set of construction drawings delivered electronically. They can be used for any type of modification—including major design changes and engineering—and include a release granting permission to modify the plan. Most CAD plan orders are emailed the same or next business day. CAD files are provided in .dwg format. For details on the specific CAD program used, please refer to the PLAN DETAILS section located above the floor plan on each plan’s page.
CAD Unlimited Build $4,590
2D electronic editable computer files
STEP 2 Need To Reverse This Plan?
STEP 3 CHOOSE YOUR FOUNDATION
STEP 4 OPTIONAL ADD-ONS
Subtotal:
$2200
FREE SHIPPING
 
Plan Details
See All Details
Finished Square Footage
3,240 Sq. Ft.
Main Level:
2,111 Sq. Ft.
Lower Level:
5,351 Sq. Ft.
Total:
Room Details
4
Bedrooms:
4
Full Baths:
3
Half Baths:
General House Information
1
Number of Stories:
142' 6"
Width:
71' 3"
Depth:
Single
Dwelling Number:
2nd Floor
Bonus Access:
Unfinished Square Footage
1607 Sq. Ft.
Garage:
1337 Sq. Ft.
Porch:
405 Sq. Ft.
Bonus Room:
GARAGE
Front
Garage Location:
4
Garage Size:
Exterior Style
Contemporary
French Country
Ranch
Transitional
Collections
Architects Choice
Kitchens
Luxury
Primary Suites
Mountain
Open Floor Plan
Outdoor Living
Split Bedroom
Foundation
Basement
Crawl Space
Slab
Walkout Basement
Framing Information
Truss
Roof Framing:
2x6
Exterior Wall Framing:
Roof Pitch
12/12
Primary:
Insulation (R)
House And Ceiling Heights
10
First Floor Ceiling:
25' 6"
Maximum House Height:
Key Features
Attached
Bonus Room
Covered Front Porch
Covered Rear Porch
Dining Room
Double Vanity Sink
Exercise Room
Fireplace
Formal LR
Foyer
Front-entry
Great Room
Guest Suite
Home Office
Kitchen Island
Laundry 1st Fl
L-Shaped
Primary Bdrm Main Floor
Mud Room
Nook / Breakfast Area
Open Floor Plan
Pantry
Rec Room
Separate Tub and Shower
Side-entry
Split Bedrooms
Storage Space
Unfinished Space
Vaulted Great Room/Living
Walk-in Closet

Our Guarantees

  • Only the highest quality plans
  • Int’l Residential Code Compliant
  • Full structural details on all plans
  • Best plan price guarantee
  • Free modification Estimates
  • Builder-ready construction drawings
  • Expert advice from leading designers
  •  PDFs NOW!™ plans in minutes
  • 100% satisfaction guarantee
  • Free Home Building Organizer