22% Off House Plans Sitewide Ends 12/03
22% Off House Plans Sitewide Ends 12/03

House Plan: DFD-11428

See All 5 Photos > (photographs may reflect modified homes)
© copyright by designer
SQ FT
1,287
BEDS
3
BATHS
2
STORIES
1
CARS
0
HOUSE PLANS SALE 
START AT  $893.10
For questions and help, live chat, email or call us at 877-895-5299
Floor Plans
Click to Zoom In on Floor Plan
 
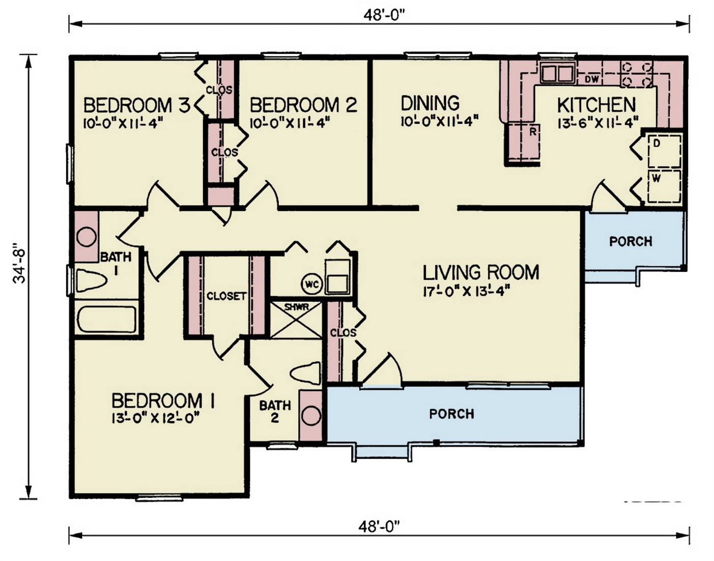
About House Plan 11428:
Need an affordable home? Give House Plan 11428 a try. This charming ranch plan offers 1,287 square feet of smartly designed living space with three bedrooms and two bathrooms on one level. The traditional layout places the living room in front and the dining area and kitchen in back, creating a warm and welcoming atmosphere for daily living and entertaining. The laundry is also conveniently located in the kitchen. All the bedrooms are in a hallway on the other side of the house. A thoughtful primary suite includes a walk-in closet and a private bath. A covered front porch extends the living space outdoors while enhancing the home’s curb appeal. With its timeless design and efficient layout, this plan balances style and function in a way that feels just right. Perfect for families or downsizers, it’s a home that welcomes you in and makes you want to stay.
House Plan Pricing
STEP 1 Select Your Package

PDF Single Build


Digital plans emailed to you in PDF format that allows for printing copies and sharing electronically with contractors, subs, decorators, and more. This package includes a license to build the home one time.

PDF Single Build $1,145
Most recommended package

5 Printed Sets


Five Printed Sets of Residential Construction Drawings are typically 24” x 36” documents and come with a license to construct a single residence shipped to a physical address. Keep in mind PDF Plan Packages are our most popular choice which allows you to print as many copies as you need and to electronically send files to your builder, subcontractors, etc.

5 Printed Sets $1,395
Five printed sets of house plans

5 Printed Sets + PDF


Digital plan emailed to you in PDF format that allows for printing copies on a home printer or local print shop and sharing with contractors, subs, decorators, and more. PLUS five printed sets shipped and delivered 3-5 business days.

5 Printed Sets + PDF $1,495
Digital plans plus 5 printed sets

CAD + PDF Single Build


CAD files are a complete set of construction drawings delivered electronically. They can be used for any type of modification—including major design changes and engineering—and include a release granting permission to modify the plan. Most CAD plan orders are emailed the same or next business day.
 
This package also comes with a PDF set of plans and a copyright release for making modifications and printing unlimited copies.
 
CAD files are provided in .dwg format. For details on the specific CAD program used, please refer to the PLAN DETAILS section located above the floor plan on each plan’s page.

CAD + PDF Single Build $1,995
2D electronic editable computer files

CAD + PDF Unlimited Build


CAD files are a complete set of construction drawings delivered electronically. They can be used for any type of modification—including major design changes and engineering—and include a release granting permission to modify the plan. Most CAD plan orders are emailed the same or next business day.
 
This package also comes with a PDF set of plans and a multi-use building license, granting permission to construct the home an unlimited number of times, along with a copyright release for making modifications and printing unlimited copies.
 
CAD files are provided in .dwg format. For details on the specific CAD program used, please refer to the PLAN DETAILS section located above the floor plan on each plan’s page.

CAD + PDF Unlimited Build $2,795
2D electronic editable computer files
STEP 2 Need To Reverse This Plan?
STEP 3 CHOOSE YOUR FOUNDATION
STEP 4 OPTIONAL ADD-ONS
Subtotal:
$1145
FREE SHIPPING
 
Plan Details
See All Details
Finished Square Footage
1,287 Sq. Ft.
Main Level:
1,287 Sq. Ft.
Total:
Room Details
3
Bedrooms:
2
Full Baths:
General House Information
1
Number of Stories:
48' 0"
Width:
34' 8"
Depth:
Single
Dwelling Number:
None
Bonus Access:
Unfinished Square Footage
131 Sq. Ft.
Porch:
131 Sq. Ft.
Front Porch:
GARAGE
0
Garage Size:
Exterior Style
Cottage
Country
Ranch
Traditional
Collections
Affordable
Budget
First Home
Foundation
Crawlspace
Slab
Framing Information
Truss
Roof Framing:
2x4
Exterior Wall Framing:
Roof Pitch
7.5/12
Primary:
Insulation (R)
House And Ceiling Heights
8
First Floor Ceiling:
18' 10"
Maximum House Height:
Key Features
Country Kitchen
Covered Front Porch
Dining Room
Family Style
Formal LR
Laundry 1st Fl
L-Shaped
Primary Bdrm Main Floor
None
Nook / Breakfast Area
Peninsula / Eating Bar
Storage Space
Suited for corner lot
Walk-in Closet

Our Guarantees

  • Only the highest quality plans
  • Int’l Residential Code Compliant
  • Full structural details on all plans
  • Best plan price guarantee
  • Free modification Estimates
  • Builder-ready construction drawings
  • Expert advice from leading designers
  •  PDFs NOW!™ plans in minutes
  • 100% satisfaction guarantee
  • Free Home Building Organizer