House Plan: DFD-11438

See All 5 Photos > (photographs may reflect modified homes)
© copyright by designer
SQ FT
2,533
BEDS
4
BATHS
3
STORIES
2
CARS
2
PLANS FROM $1,495
For questions and help, live chat, email or call us at 877-895-5299
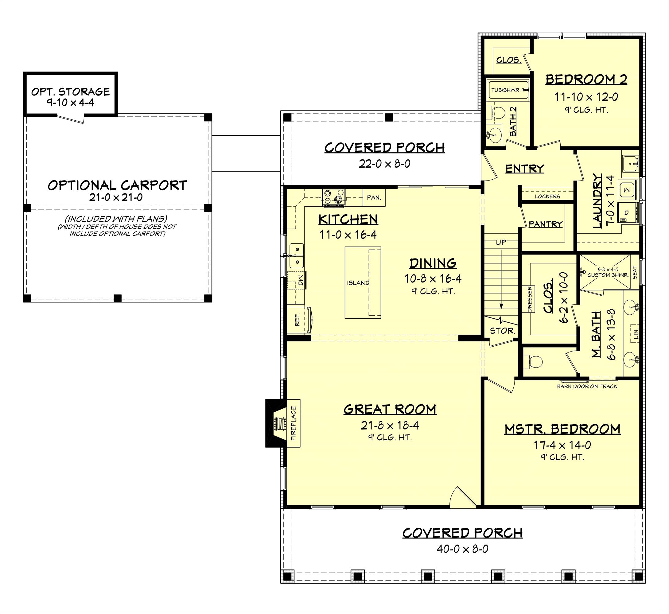
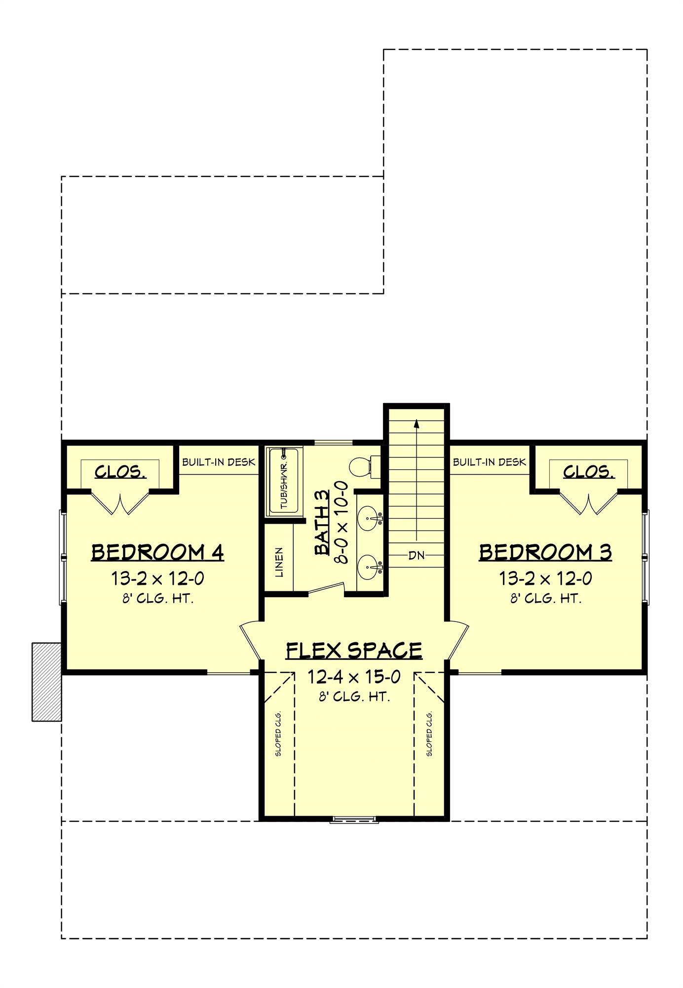
Floor Plans
Click to Zoom In on Floor Plan
 
About House Plan 11438:
House Plan 11438 is a 4-bedroom, 3-bathroom modern farmhouse that combines rustic appeal with modern comfort. The open layout centers around a large great room with a cozy fireplace and easy flow to the kitchen and dining area. The primary suite on the main level includes a spacious bath and dual closets, while the upper floor provides two bedrooms, a shared bath, and a flexible bonus space perfect for studying or relaxing. Outdoor living is encouraged with covered front and rear porches, offering peaceful views year-round. This design also includes an optional detached carport and storage area for added practicality. With charming curb appeal and a smart layout, this home delivers comfort and flexibility for modern families.
House Plan Pricing
STEP 1 Select Your Package

PDF Single Build


Digital plans emailed to you in PDF format that allows for printing copies and sharing electronically with contractors, subs, decorators, and more. This package includes a license to build the home one time.

PDF Single Build $1,495
Most recommended package

5 Printed Sets + PDF


Includes 5 physical printed blueprint sets, shipped free via UPS within the U.S. Printed sets ship within 1 business day and are delivered within 3 – 5 business days. A complimentary PDF plan set is also emailed within 1 business day for easy sharing and local printing. These plans may be used to construct one home.

5 Printed Sets + PDF $1,745
5 Printed Sets + PDF

PDF Unlimited Build


Digital plans with an unlimited build license emailed in PDF format, that allows for printing copies on a home printer or local print shop and sharing with contractors, subs, decorators and more 

PDF Unlimited Build $2,155
Digital plans including unlimited build license

CAD + PDF Unlimited Build


This plan package is created in AutoCAD and delivered in .DWG format. CAD files are intended for use by design professionals, structural engineers, and builders to update plans for local building codes or to make revisions based on specific needs, lot requirements, and budget considerations. A complimentary PDF copy is included with this package for reference. CAD packages are delivered within 1 to 2 business days.
 
This package also comes with a multi-use building license, granting permission to construct the home an unlimited number of times, along with a copyright release for making revisions and printing unlimited copies.
 
For details on the specific CAD program used, please refer to the PLAN DETAILS section located above the floor plan on each plan page.

CAD + PDF Unlimited Build $2,595
2D electronic editable computer files
STEP 2 Need To Reverse This Plan?
STEP 3 CHOOSE YOUR FOUNDATION
STEP 4 OPTIONAL ADD-ONS
Subtotal:
$1495
FREE SHIPPING
 
Plan Details
See All Details
Finished Square Footage
1,751 Sq. Ft.
Main Level:
782 Sq. Ft.
Upper Level:
2,533 Sq. Ft.
Total:
Room Details
4
Bedrooms:
3
Full Baths:
General House Information
2
Number of Stories:
42' 0"
Width:
60' 8"
Depth:
Single
Dwelling Number:
None
Bonus Access:
Unfinished Square Footage
496 Sq. Ft.
Porch:
GARAGE
Side
Garage Location:
2
Garage Size:
Exterior Style
Farmhouse
Modern Farmhouse
Collections
Affordable
Budget
Kitchens
Primary Suites
Open Floor Plan
Foundation
Basement
Crawl Space
Slab
Walkout Basement
Framing Information
Stick
Roof Framing:
2x4
Exterior Wall Framing:
Roof Pitch
10/12
Primary:
4/12
Secondary:
Insulation (R)
House And Ceiling Heights
9
First Floor Ceiling:
8
Second Floor Ceiling:
26' 0"
Maximum House Height:
Key Features
Carport
Covered Front Porch
Covered Rear Porch
Detached
Dining Room
Double Vanity Sink
Fireplace
Great Room
Kitchen Island
Laundry 1st Fl
Loft / Balcony
L-Shaped
Primary Bdrm Main Floor
Mud Room
Open Floor Plan
Pantry
Peninsula / Eating Bar
Suited for view lot
Walk-in Closet

Our Guarantees

  • Only the highest quality plans
  • Int’l Residential Code Compliant
  • Full structural details on all plans
  • Best plan price guarantee
  • Free modification Estimates
  • Builder-ready construction drawings
  • Expert advice from leading designers
  •  PDFs NOW!™ plans in minutes
  • 100% satisfaction guarantee
  • Free Home Building Organizer