20% Off House Plans Sitewide Ends Tuesday
20% Off House Plans Sitewide Ends Tuesday

House Plan: DFD-11439

See All 19 Photos > (photographs may reflect modified homes)
© copyright by designer
SQ FT
2,871
BEDS
2
BATHS
2.5
STORIES
1
CARS
4
HOUSE PLANS SALE 
START AT  $1,560.00
For questions and help, live chat, email or call us at 877-895-5299
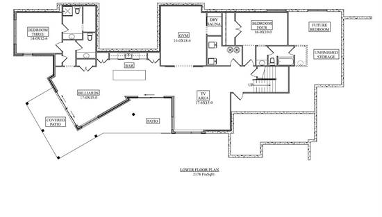
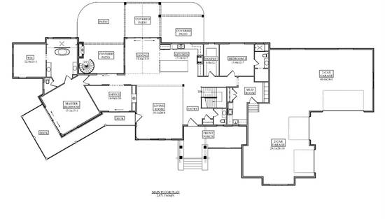
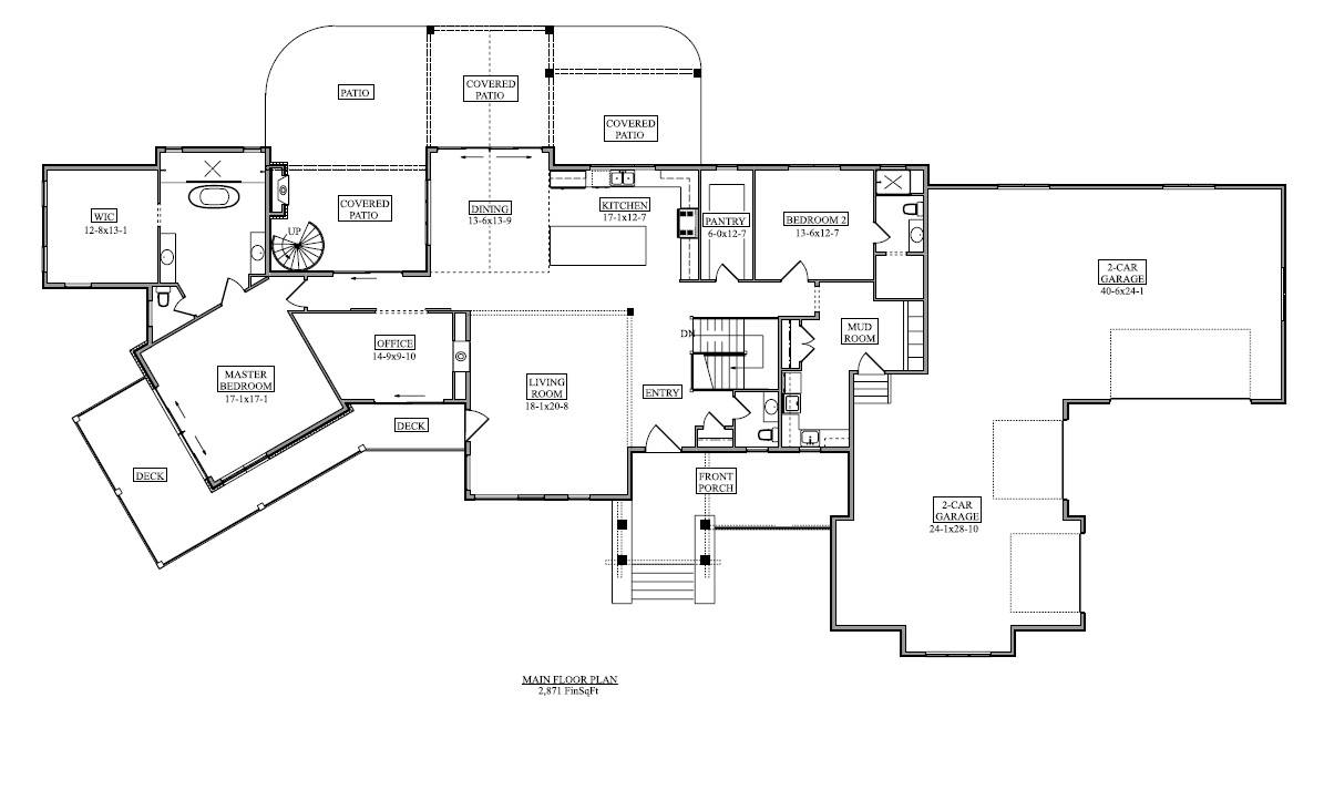
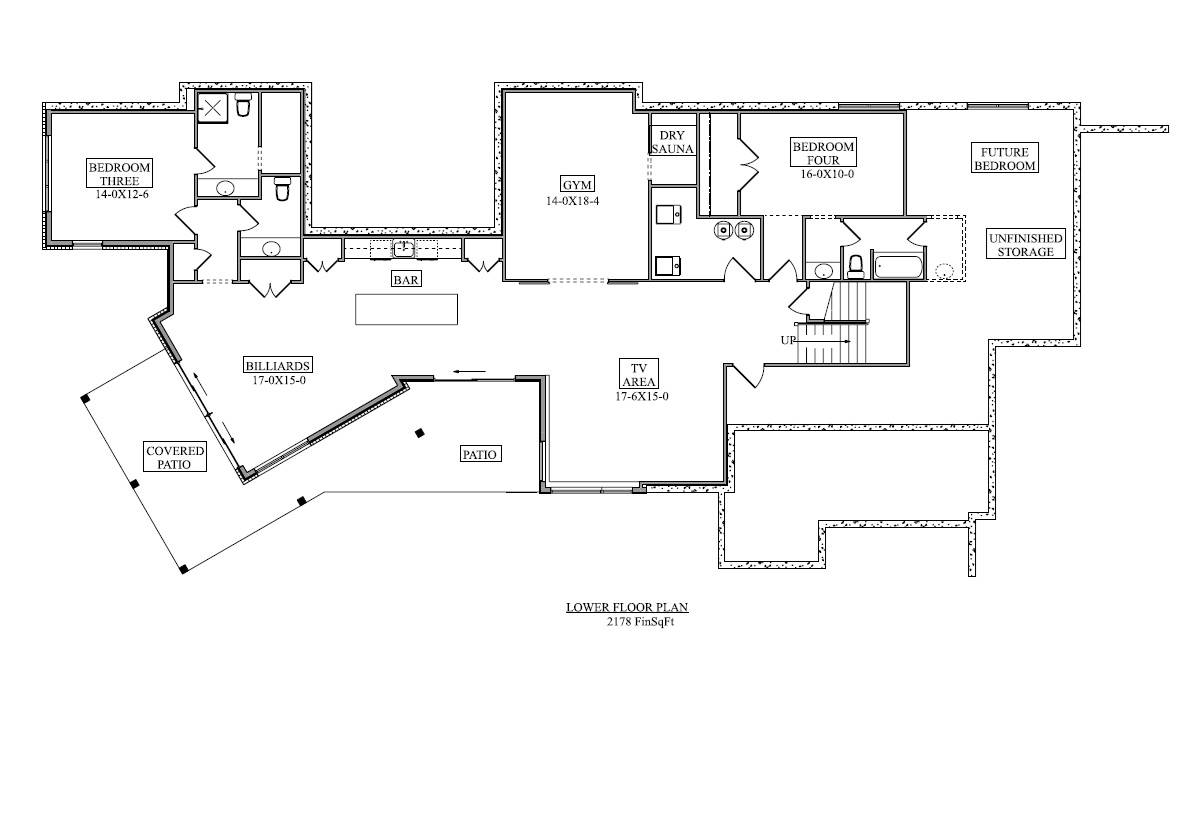
Floor Plans
Click to Zoom In on Floor Plan
 
About House Plan 11439:
This charming modern home offers 2,871 square feet of thoughtfully designed living space, with flexibility for two to four bedrooms. The exterior pairs natural materials and bold rooflines, creating a timeless mountain retreat feel. Inside, the open-concept design flows seamlessly between the kitchen, dining, and living areas, making it ideal for entertaining. The gourmet kitchen features a large prep island and nearby pantry, while the dining space opens to an expansive patio with an outdoor fireplace. The angled primary suite includes a wrap-around deck, spa bath, and walk-in closet for a true private escape. An optional walk-out lower level expands the home with a recreation room, wet bar, home gym, sauna, and additional bedrooms. Blending rustic warmth with contemporary style, this design offers the perfect balance of function and beauty.
House Plan Pricing
STEP 1 Select Your Package

PDF Single Build


Digital plans emailed to you in PDF format that allows for printing copies and sharing electronically with contractors, subs, decorators, and more. This package includes a license to build the home one time.

PDF Single Build $1,950
Most recommended package

PDF Unlimited Build


Digital plans with an unlimited build license emailed in PDF format, that allows for printing copies on a home printer or local print shop and sharing with contractors, subs, decorators and more 

PDF Unlimited Build $2,775
Digital plans including unlimited build license

CAD + PDF Single Build


CAD files are a complete set of construction drawings delivered electronically. They can be used for any type of modification—including major design changes and engineering—and include a release granting permission to modify the plan. Most CAD plan orders are emailed the same or next business day.
 
This package also comes with a PDF set of plans and a copyright release for making modifications and printing unlimited copies.
 
CAD files are provided in .dwg format. For details on the specific CAD program used, please refer to the PLAN DETAILS section located above the floor plan on each plan’s page.

CAD + PDF Single Build $3,450
2D electronic editable computer files

CAD + PDF Unlimited Build


CAD files are a complete set of construction drawings delivered electronically. They can be used for any type of modification—including major design changes and engineering—and include a release granting permission to modify the plan. Most CAD plan orders are emailed the same or next business day.
 
This package also comes with a PDF set of plans and a multi-use building license, granting permission to construct the home an unlimited number of times, along with a copyright release for making modifications and printing unlimited copies.
 
CAD files are provided in .dwg format. For details on the specific CAD program used, please refer to the PLAN DETAILS section located above the floor plan on each plan’s page.

CAD + PDF Unlimited Build $5,025
2D electronic editable computer files
STEP 2 Need To Reverse This Plan?
STEP 3 CHOOSE YOUR FOUNDATION
STEP 4 OPTIONAL ADD-ONS
Subtotal:
$1950
FREE SHIPPING
 
Plan Details
See All Details
Finished Square Footage
2,871 Sq. Ft.
Main Level:
2,178 Sq. Ft.
Lower Level:
2,871 Sq. Ft.
Total:
Room Details
2
Bedrooms:
2
Full Baths:
1
Half Baths:
General House Information
1
Number of Stories:
142' 6"
Width:
69' 3"
Depth:
Single
Dwelling Number:
Unfinished Square Footage
1753 Sq. Ft.
Garage:
GARAGE
Front
Garage Location:
4
Garage Size:
Exterior Style
Contemporary
Mid-Century Modern
Modern
Ranch
Collections
Affordable
First Home
Kitchens
Split Bedroom
Foundation
Basement
Crawl Space
Slab
Framing Information
Truss
Roof Framing:
2x6
Exterior Wall Framing:
Roof Pitch
8/12
Primary:
Insulation (R)
House And Ceiling Heights
10
First Floor Ceiling:
23' 10"
Maximum House Height:
Key Features
Attached
Butler's Pantry
Covered Front Porch
Covered Rear Porch
Dining Room
Double Vanity Sink
Exercise Room
Fireplace
Front-entry
Great Room
Home Office
Kitchen Island
Laundry 1st Fl
L-Shaped
Primary Bdrm Main Floor
Mud Room
Open Floor Plan
Oversized
Rec Room
Separate Tub and Shower
Side-entry
Split Bedrooms
Storage Space
Suited for corner lot
Unfinished Space
Walk-in Closet
Workshop

Our Guarantees

  • Only the highest quality plans
  • Int’l Residential Code Compliant
  • Full structural details on all plans
  • Best plan price guarantee
  • Free modification Estimates
  • Builder-ready construction drawings
  • Expert advice from leading designers
  •  PDFs NOW!™ plans in minutes
  • 100% satisfaction guarantee
  • Free Home Building Organizer