20% Off House Plans Sitewide Ends Sunday
20% Off House Plans Sitewide Ends Sunday

House Plan: DFD-11454

See All 2 Photos > (photographs may reflect modified homes)
© copyright by designer
SQ FT
2,627
BEDS
2
BATHS
2.5
STORIES
1
CARS
3
HOUSE PLANS SALE 
START AT  $1,400.00
For questions and help, live chat, email or call us at 877-895-5299
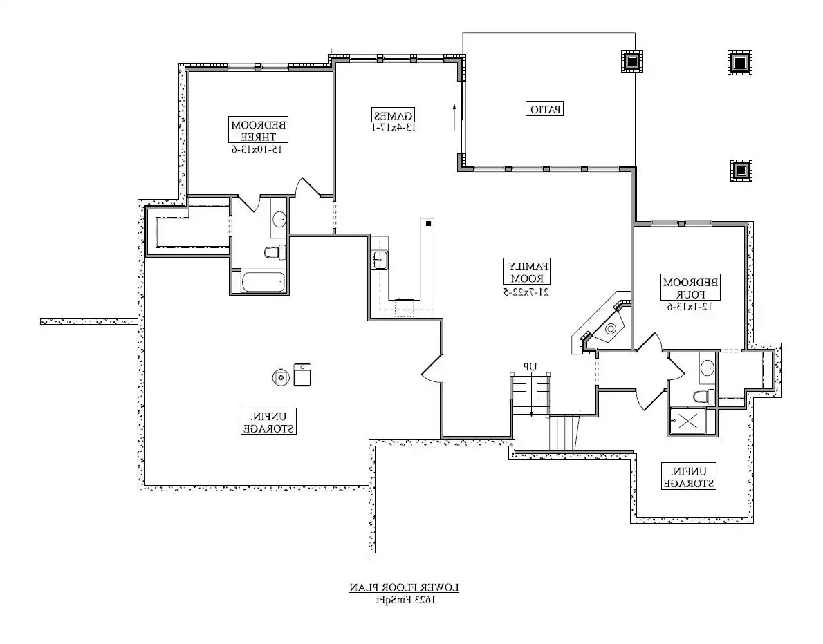
Floor Plans
Click to Zoom In on Floor Plan
 
About House Plan 11454:
This charming Craftsman plan offers 2,627 square feet of living space with 2 to 4 bedrooms and 2.5 to 4.5 baths. Timber-framed gables, stone, and shakes create stunning curb appeal, while a welcoming front courtyard leads to the home’s inviting interior. The open family room is filled with natural light from expansive windows and flows seamlessly into the kitchen, where a generous island and walk-in pantry provide both style and function. A private primary suite includes a bayed sitting area, a spa-like bath, and a walk-in closet for added comfort. On the opposite side of the home, a second bedroom suite and quiet den offer flexible living options. A large covered rear deck expands entertaining outdoors, and the optional finished lower level adds even more gathering space with a fireplace, two additional bedroom suites, and a wet bar. With its thoughtful design and timeless Craftsman details, this home is perfect for everyday family living as well as entertaining.
House Plan Pricing
STEP 1 Select Your Package

PDF Single Build


Digital plans emailed to you in PDF format that allows for printing copies and sharing electronically with contractors, subs, decorators, and more. This package includes a license to build the home one time.

PDF Single Build $1,750
Most recommended package

CAD + PDF Single Build


CAD files are a complete set of construction drawings delivered electronically. They can be used for any type of modification—including major design changes and engineering—and include a release granting permission to modify the plan. Most CAD plan orders are emailed the same or next business day.
 
This package also comes with a PDF set of plans and a copyright release for making modifications and printing unlimited copies.
 
CAD files are provided in .dwg format. For details on the specific CAD program used, please refer to the PLAN DETAILS section located above the floor plan on each plan’s page.

CAD + PDF Single Build $3,050
2D electronic editable computer files
STEP 2 Need To Reverse This Plan?
STEP 3 CHOOSE YOUR FOUNDATION
STEP 4 OPTIONAL ADD-ONS
Subtotal:
$1750
FREE SHIPPING
 
Plan Details
See All Details
Finished Square Footage
2,627 Sq. Ft.
Main Level:
1,623 Sq. Ft.
Lower Level:
2,627 Sq. Ft.
Total:
Room Details
2
Bedrooms:
2
Full Baths:
1
Half Baths:
General House Information
1
Number of Stories:
90' 3"
Width:
82' 6"
Depth:
Single
Dwelling Number:
Unfinished Square Footage
1354 Sq. Ft.
Garage:
958 Sq. Ft.
Porch:
GARAGE
Front
Garage Location:
3
Garage Size:
Exterior Style
Craftsman
Mid-Century Modern
Modern
Ranch
Collections
Affordable
First Home
Luxury
Mountain
Open Floor Plan
Split Bedroom
Foundation
Basement
Crawl Space
Slab
Walkout Basement
Framing Information
2x6
Exterior Wall Framing:
Roof Pitch
10/12
Primary:
Insulation (R)
House And Ceiling Heights
10
First Floor Ceiling:
24' 9"
Maximum House Height:
Key Features
Covered Front Porch
Covered Rear Porch
Dining Room
Double Vanity Sink
Family Room
Fireplace
Front-entry
Home Office
Kitchen Island
Laundry 1st Fl
L-Shaped
Primary Bdrm Main Floor
Mud Room
Open Floor Plan
Peninsula / Eating Bar
Rec Room
Separate Tub and Shower
Side-entry
Split Bedrooms
Storage Space
Suited for corner lot
Unfinished Space
Walk-in Closet
Walk-in Pantry

Our Guarantees

  • Only the highest quality plans
  • Int’l Residential Code Compliant
  • Full structural details on all plans
  • Best plan price guarantee
  • Free modification Estimates
  • Builder-ready construction drawings
  • Expert advice from leading designers
  •  PDFs NOW!™ plans in minutes
  • 100% satisfaction guarantee
  • Free Home Building Organizer