20% Off House Plans Sitewide Ends Sunday
20% Off House Plans Sitewide Ends Sunday

House Plan: DFD-11457

See All 11 Photos > (photographs may reflect modified homes)
© copyright by designer
SQ FT
2,350
BEDS
3
BATHS
2.5
STORIES
1
CARS
3
HOUSE PLANS SALE 
START AT  $1,240.00
For questions and help, live chat, email or call us at 877-895-5299
Floor Plans
Click to Zoom In on Floor Plan
 
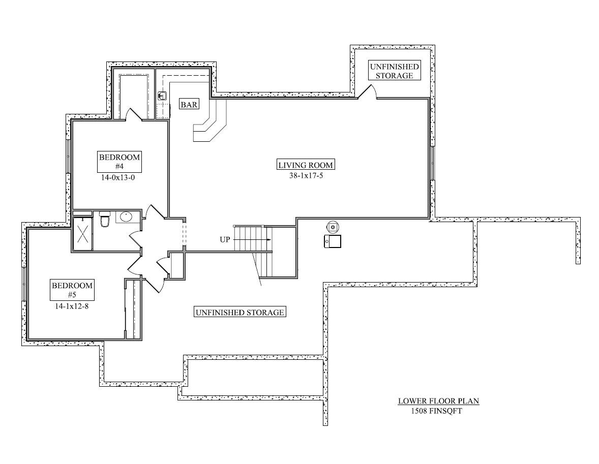
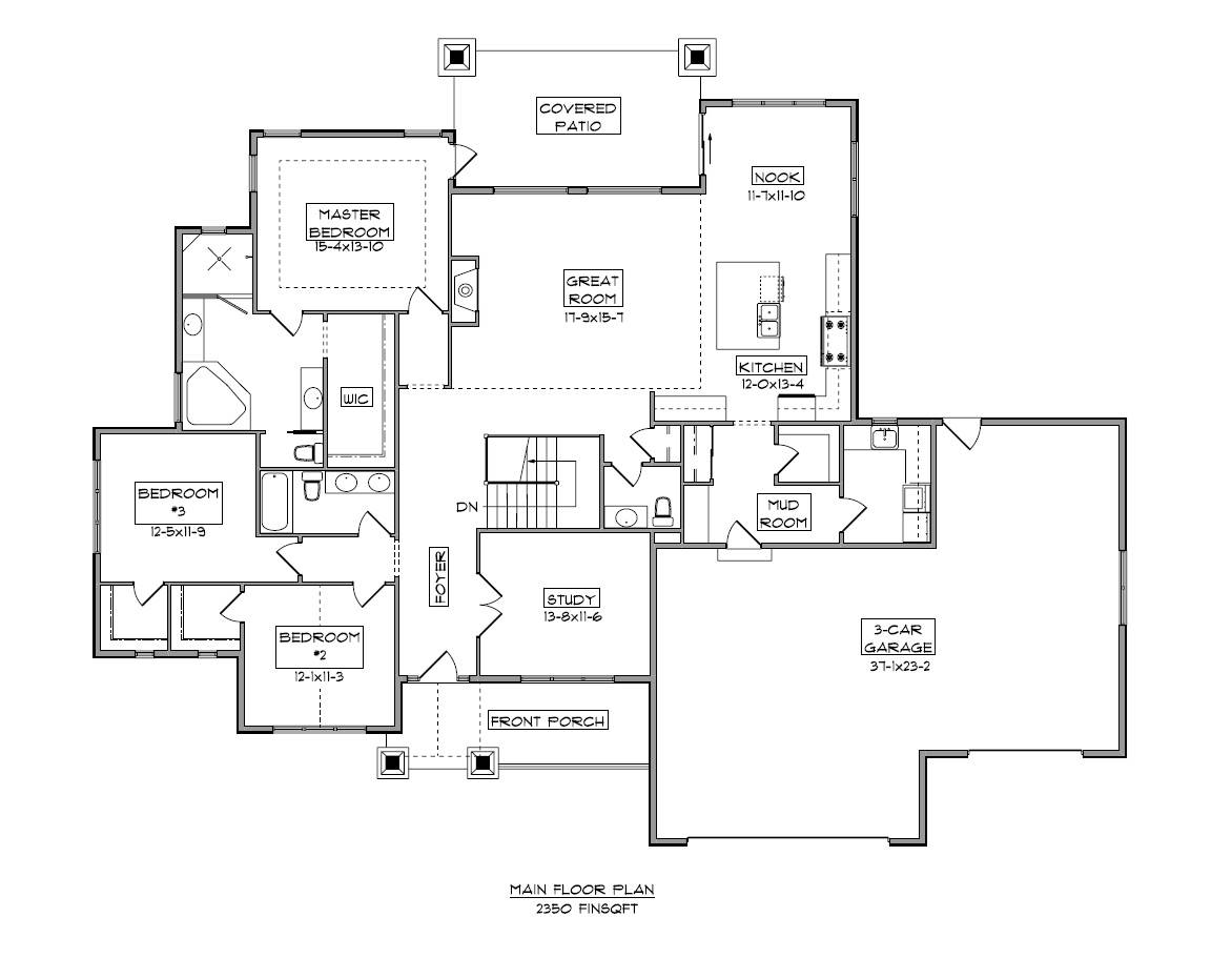
About House Plan 11457:
Blending charm with modern comfort, this 2,350 square foot Craftsman Ranch is perfect for both everyday living and entertaining. The inviting facade features stone accents, stucco details, and a gabled porch supported by classic tapered columns. A front study adds flexibility for a home office, while the open-concept great room and kitchen create the heart of the home. The primary suite includes patio access, a deluxe bathroom with private commode, and a roomy walk-in closet. Secondary bedrooms are grouped together, offering convenience for children or guests. Functional touches include a mudroom with storage, a laundry room with utility sink, and direct garage entry. The optional lower level adds 1,500 square feet with a spacious living area, wet bar, and two bedrooms. With its thoughtful layout and Craftsman styling, this home offers comfort and versatility for years to come.
House Plan Pricing
STEP 1 Select Your Package

PDF Single Build


Digital plans emailed to you in PDF format that allows for printing copies and sharing electronically with contractors, subs, decorators, and more. This package includes a license to build the home one time.

PDF Single Build $1,550
Most recommended package

PDF Unlimited Build


Digital plans with an unlimited build license emailed in PDF format, that allows for printing copies on a home printer or local print shop and sharing with contractors, subs, decorators and more 

PDF Unlimited Build $2,175
Digital plans including unlimited build license

CAD + PDF Single Build


CAD files are a complete set of construction drawings delivered electronically. They can be used for any type of modification—including major design changes and engineering—and include a release granting permission to modify the plan. Most CAD plan orders are emailed the same or next business day.
 
This package also comes with a PDF set of plans and a copyright release for making modifications and printing unlimited copies.
 
CAD files are provided in .dwg format. For details on the specific CAD program used, please refer to the PLAN DETAILS section located above the floor plan on each plan’s page.

CAD + PDF Single Build $2,850
2D electronic editable computer files

CAD Unlimited Build


CAD files are a complete set of construction drawings delivered electronically. They can be used for any type of modification—including major design changes and engineering—and include a release granting permission to modify the plan. Most CAD plan orders are emailed the same or next business day. CAD files are provided in .dwg format. For details on the specific CAD program used, please refer to the PLAN DETAILS section located above the floor plan on each plan’s page.
CAD Unlimited Build $4,125
2D electronic editable computer files
STEP 2 Need To Reverse This Plan?
STEP 3 CHOOSE YOUR FOUNDATION
STEP 4 OPTIONAL ADD-ONS
Subtotal:
$1550
FREE SHIPPING
 
Plan Details
See All Details
Finished Square Footage
2,350 Sq. Ft.
Main Level:
1,508 Sq. Ft.
Lower Level:
2,350 Sq. Ft.
Total:
Room Details
3
Bedrooms:
2
Full Baths:
1
Half Baths:
General House Information
1
Number of Stories:
82' 6"
Width:
63' 6"
Depth:
Single
Dwelling Number:
Unfinished Square Footage
938 Sq. Ft.
Garage:
396 Sq. Ft.
Porch:
GARAGE
Front
Garage Location:
3
Garage Size:
Exterior Style
Craftsman
Ranch
Traditional
Collections
Affordable
First Home
Open Floor Plan
Foundation
Basement
Crawl Space
Slab
Framing Information
2x6
Exterior Wall Framing:
Roof Pitch
9/12
Primary:
6/12
Secondary:
Insulation (R)
House And Ceiling Heights
10
First Floor Ceiling:
24' 0"
Maximum House Height:
Key Features
Attached
Butler's Pantry
Covered Front Porch
Covered Rear Porch
Double Vanity Sink
Family Style
Fireplace
Foyer
Front-entry
Great Room
Kitchen Island
Laundry 1st Fl
Library/Media Rm
L-Shaped
Primary Bdrm Main Floor
Mud Room
Nook / Breakfast Area
Open Floor Plan
Peninsula / Eating Bar
Separate Tub and Shower
Storage Space
Suited for corner lot
Unfinished Space
Walk-in Closet

Our Guarantees

  • Only the highest quality plans
  • Int’l Residential Code Compliant
  • Full structural details on all plans
  • Best plan price guarantee
  • Free modification Estimates
  • Builder-ready construction drawings
  • Expert advice from leading designers
  •  PDFs NOW!™ plans in minutes
  • 100% satisfaction guarantee
  • Free Home Building Organizer