House Plan: DFD-11469

See All 6 Photos > (photographs may reflect modified homes)
© copyright by designer
SQ FT
2,763
BEDS
5
BATHS
4.5
STORIES
1
CARS
3
PLANS FROM $1,495
For questions and help, live chat, email or call us at 877-895-5299
Floor Plans
Click to Zoom In on Floor Plan
 
About House Plan 11469:
House Plan 11469 combines the timeless appeal of farmhouse design with modern sophistication and family-friendly function. The open layout features a grand kitchen, dining space, and great room with volume ceilings, creating an airy and inviting environment perfect for entertaining. A walk-in pantry and separate keeping room add practicality and comfort, while four spacious bedrooms—including a private guest suite—offer plenty of room for family and visitors. The master suite exudes luxury, complete with a spa-like bath and an oversized closet that conveniently connects to the laundry room. Expansive porches on both the front and back of the home provide outdoor spaces for gatherings and relaxation. A three-car garage with a large bonus room above offers versatile space for hobbies, storage, or a future expansion. Beautifully designed for modern life, this farmhouse plan balances style, efficiency, and charm in every detail.
House Plan Pricing
STEP 1 Select Your Package

PDF Single Build


Digital plans emailed to you in PDF format that allows for printing copies and sharing electronically with contractors, subs, decorators, and more. This package includes a license to build the home one time.

PDF Single Build $1,495
Most recommended package

5 Printed Sets + PDF


Includes 5 physical printed blueprint sets, shipped free via UPS within the U.S. Printed sets ship within 1 business day and are delivered within 3 – 5 business days. A complimentary PDF plan set is also emailed within 1 business day for easy sharing and local printing. These plans may be used to construct one home.

5 Printed Sets + PDF $1,745
5 Printed Sets + PDF

PDF Unlimited Build


Digital plans with an unlimited build license emailed in PDF format, that allows for printing copies on a home printer or local print shop and sharing with contractors, subs, decorators and more 

PDF Unlimited Build $2,155
Digital plans including unlimited build license

CAD + PDF Unlimited Build


This plan package is created in AutoCAD and delivered in .DWG format. CAD files are intended for use by design professionals, structural engineers, and builders to update plans for local building codes or to make revisions based on specific needs, lot requirements, and budget considerations. A complimentary PDF copy is included with this package for reference. CAD packages are delivered within 1 to 2 business days.
 
This package also comes with a multi-use building license, granting permission to construct the home an unlimited number of times, along with a copyright release for making revisions and printing unlimited copies.
 
For details on the specific CAD program used, please refer to the PLAN DETAILS section located above the floor plan on each plan page.

CAD + PDF Unlimited Build $2,595
2D electronic editable computer files
STEP 2 Need To Reverse This Plan?
STEP 3 CHOOSE YOUR FOUNDATION
STEP 4 OPTIONAL ADD-ONS
Subtotal:
$1495
FREE SHIPPING
 
Plan Details
See All Details
Finished Square Footage
2,763 Sq. Ft.
Main Level:
2,763 Sq. Ft.
Total:
Room Details
5
Bedrooms:
4
Full Baths:
1
Half Baths:
General House Information
1
Number of Stories:
89' 8"
Width:
68' 8"
Depth:
Single
Dwelling Number:
2nd Floor
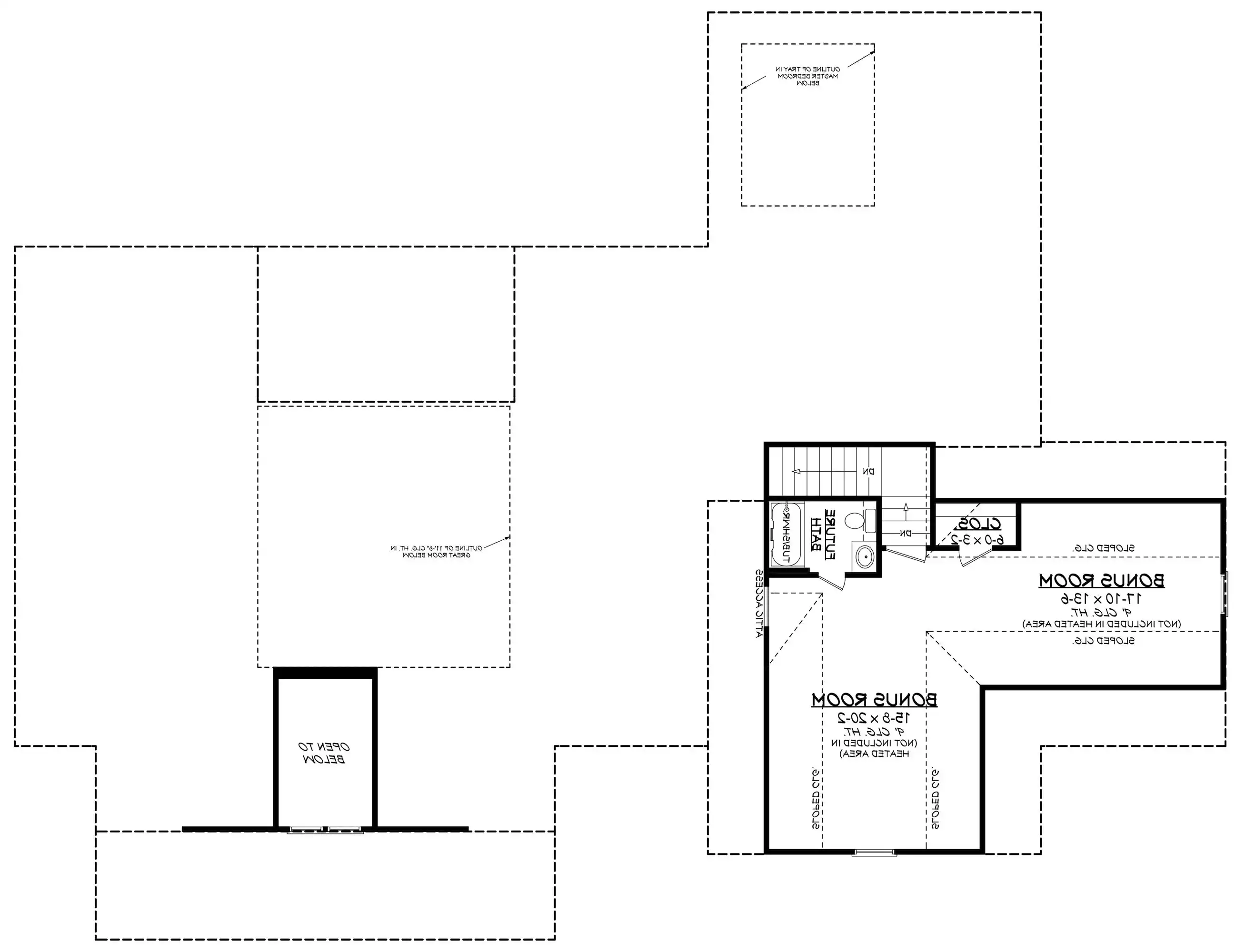
Bonus Access:
Unfinished Square Footage
947 Sq. Ft.
Garage:
272 Sq. Ft.
Front Porch:
219 Sq. Ft.
Rear Porch:
685 Sq. Ft.
Bonus Room:
GARAGE
Front
Garage Location:
3
Garage Size:
Exterior Style
Farmhouse
Modern Farmhouse
Ranch
Southern
Collections
Affordable
Architects Choice
Kitchens
Primary Suites
Old House Classics
Open Floor Plan
Outdoor Living
Split Bedroom
Foundation
Basement
Crawl Space
Slab
Walkout Basement
Framing Information
Stick
Roof Framing:
2x4
Exterior Wall Framing:
Roof Pitch
9/12
Primary:
Insulation (R)
House And Ceiling Heights
10
First Floor Ceiling:
9
Second Floor Ceiling:
27' 0"
Maximum House Height:
Key Features
Attached
Bonus Room
Covered Front Porch
Dining Room
Double Vanity Sink
Fireplace
Foyer
Front Porch
Front-entry
Great Room
Guest Suite
Kitchen Island
Laundry 1st Fl
L-Shaped
Primary Bdrm Main Floor
Mud Room
Nook / Breakfast Area
Open Floor Plan
Outdoor Kitchen
Peninsula / Eating Bar
Separate Tub and Shower
Split Bedrooms
Storage Space
Walk-in Closet
Walk-in Pantry

Our Guarantees

  • Only the highest quality plans
  • Int’l Residential Code Compliant
  • Full structural details on all plans
  • Best plan price guarantee
  • Free modification Estimates
  • Builder-ready construction drawings
  • Expert advice from leading designers
  •  PDFs NOW!™ plans in minutes
  • 100% satisfaction guarantee
  • Free Home Building Organizer