15% off ALL House Plans Sitewide
15% off ALL House Plans Sitewide

House Plan: DFD-11471

See All 7 Photos > (photographs may reflect modified homes)
© copyright by designer
SQ FT
2,900
BEDS
4
BATHS
2.5
STORIES
1.5
CARS
2
HOUSE PLANS SALE 
START AT  $1,270.75
For questions and help, live chat, email or call us at 877-895-5299
Floor Plans
Click to Zoom In on Floor Plan
 
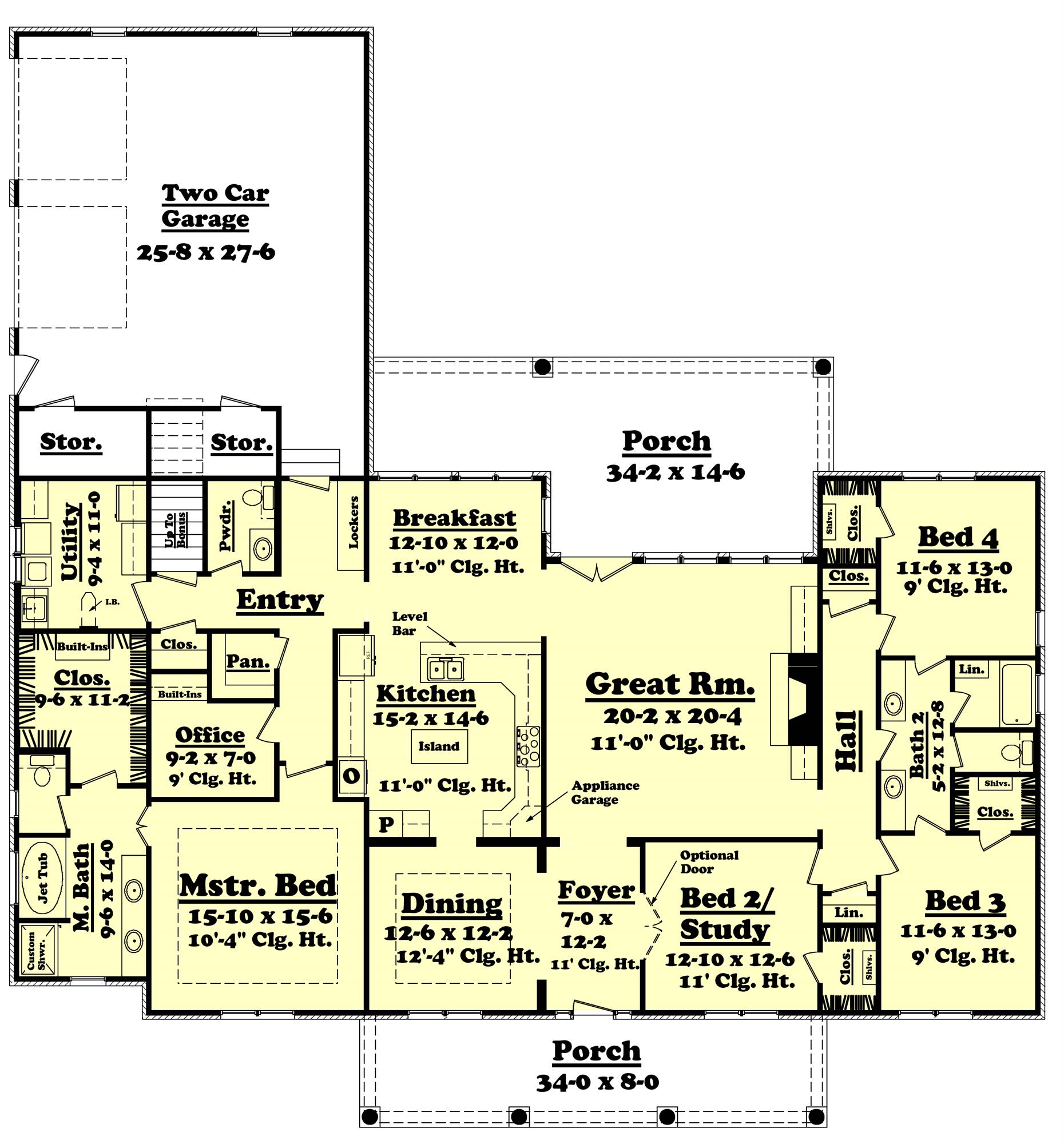
About House Plan 11471:
This 2,900 square feet home offers four bedrooms arranged in a thoughtful layout that balances shared living with plenty of personal space. The U-shaped kitchen includes a walk-in pantry, island, and breakfast nook, giving you a bright and functional center for meals and gatherings. The great room opens beautifully to the dining area and foyer, enhanced by tall ceilings that make the entire space feel airy and warm. The primary suite sits on the main floor and includes a double vanity, a separate tub and shower, and a roomy walk-in closet. A rear-entry garage connects to a mud room and main-level laundry, keeping everyday routines simple and organized. Covered front and rear porches provide comfortable outdoor spaces, while the large bonus room upstairs offers flexibility for future needs. With its inviting layout and well-planned features, this home brings together comfort, convenience, and welcoming family living.
House Plan Pricing
STEP 1 Select Your Package

PDF Single Build


Digital plans emailed to you in PDF format that allows for printing copies and sharing electronically with contractors, subs, decorators, and more. This package includes a license to build the home one time.

PDF Single Build $1,495
Most recommended package

5 Printed Sets + PDF


Includes 5 physical printed blueprint sets, shipped free via UPS within the Continental U.S. Printed sets ship within 1 business day and are delivered within 3 – 5 business days. A complimentary PDF plan set is also emailed within 1 business day for easy sharing and local printing. These plans may be used to construct one home.

5 Printed Sets + PDF $1,745
5 Printed Sets + PDF

PDF Unlimited Build


Digital plans with an unlimited build license emailed in PDF format, that allows for printing copies on a home printer or local print shop and sharing with contractors, subs, decorators and more 

PDF Unlimited Build $2,155
Digital plans including unlimited build license

CAD + PDF Unlimited Build


This plan package is created in AutoCAD and delivered in .DWG format. CAD files are intended for use by design professionals, structural engineers, and builders to update plans for local building codes or to make revisions based on specific needs, lot requirements, and budget considerations. A complimentary PDF copy is included with this package for reference. CAD packages are delivered within 1 to 2 business days.
 
This package also comes with a multi-use building license, granting permission to construct the home an unlimited number of times, along with a copyright release for making revisions and printing unlimited copies.
 
For details on the specific CAD program used, please refer to the PLAN DETAILS section located above the floor plan on each plan page.

CAD + PDF Unlimited Build $2,595
2D electronic editable computer files
STEP 2 Need To Reverse This Plan?
STEP 3 CHOOSE YOUR FOUNDATION
STEP 4 OPTIONAL ADD-ONS
Subtotal:
$1495
FREE SHIPPING
 
Plan Details
See All Details
Finished Square Footage
2,900 Sq. Ft.
Main Level:
2,900 Sq. Ft.
Total:
Room Details
4
Bedrooms:
2
Full Baths:
1
Half Baths:
General House Information
1.5
Number of Stories:
76' 2"
Width:
81' 0"
Depth:
Single
Dwelling Number:
2nd Floor
Bonus Access:
Unfinished Square Footage
767 Sq. Ft.
Garage:
102 Sq. Ft.
Storage:
272 Sq. Ft.
Front Porch:
413 Sq. Ft.
Rear Porch:
472 Sq. Ft.
Bonus Room:
GARAGE
Rear
Garage Location:
2
Garage Size:
Exterior Style
Ranch
Southern
Traditional
Collections
Kitchens
Primary Suites
Old House Classics
Split Bedroom
Foundation
Basement
Crawl Space
Slab
Framing Information
Stick
Roof Framing:
2x4
Exterior Wall Framing:
Roof Pitch
10/12
Primary:
4/12
Secondary:
Insulation (R)
House And Ceiling Heights
9
First Floor Ceiling:
8
Second Floor Ceiling:
26' 10"
Maximum House Height:
Key Features
Attached
Bonus Room
Country Kitchen
Covered Front Porch
Covered Rear Porch
Dining Room
Double Vanity Sink
Fireplace
Foyer
Great Room
Home Office
Kitchen Island
Laundry 1st Fl
Primary Bdrm Main Floor
Mud Room
Nook / Breakfast Area
Pantry
Separate Tub and Shower
Side-entry
Split Bedrooms
Storage Space
Suited for corner lot
U-Shaped
Walk-in Closet
Walk-in Pantry

Our Guarantees

  • Only the highest quality plans
  • Int’l Residential Code Compliant
  • Full structural details on all plans
  • Best plan price guarantee
  • Free modification Estimates
  • Builder-ready construction drawings
  • Expert advice from leading designers
  •  PDFs NOW!™ plans in minutes
  • 100% satisfaction guarantee
  • Free Home Building Organizer