20% Off House Plans Sitewide Ends Sunday
20% Off House Plans Sitewide Ends Sunday

House Plan: DFD-11473

See All 3 Photos > (photographs may reflect modified homes)
© copyright by designer
SQ FT
2,299
BEDS
1
BATHS
1.5
STORIES
1
CARS
3
HOUSE PLANS SALE 
START AT  $1,240.00
For questions and help, live chat, email or call us at 877-895-5299
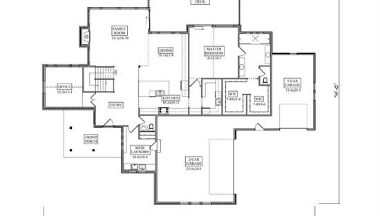
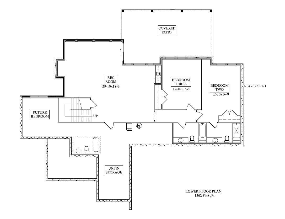
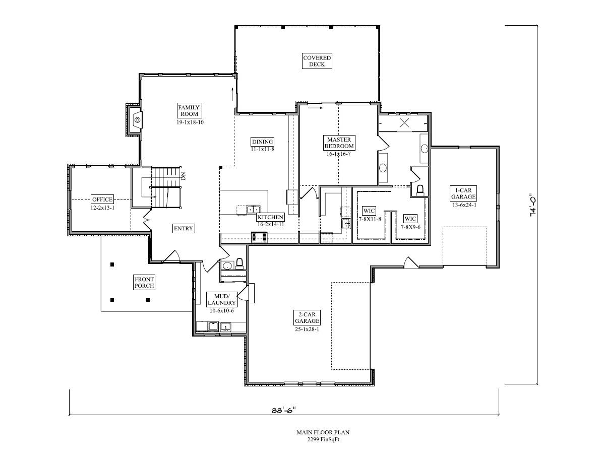
Floor Plans
Click to Zoom In on Floor Plan
 
About House Plan 11473:
Offering 2,299 square feet, House Plan 11473 home combines modern efficiency with timeless ranch details. The open floor plan encourages connection between the voluminous great room, dining, and kitchen areas, while a fireplace adds cozy character. The kitchen boasts both an island and a convenient butler’s pantry. The primary suite is located on the main level and features dual walk-in closets and a private bath with double vanities. A mudroom, laundry on the first floor, and abundant storage enhance everyday living. If you choose the walkout basement, a recreation room provides space for fun and relaxation downstairs along with two more beds and baths. There are also unfinished areas offering future flexibility. Designed for comfort and versatility, this home welcomes family living and easy entertaining.
House Plan Pricing
STEP 1 Select Your Package

PDF Single Build


Digital plans emailed to you in PDF format that allows for printing copies and sharing electronically with contractors, subs, decorators, and more. This package includes a license to build the home one time.

PDF Single Build $1,550
Most recommended package

PDF Unlimited Build


Digital plans with an unlimited build license emailed in PDF format, that allows for printing copies on a home printer or local print shop and sharing with contractors, subs, decorators and more 

PDF Unlimited Build $2,175
Digital plans including unlimited build license

CAD + PDF Single Build


CAD files are a complete set of construction drawings delivered electronically. They can be used for any type of modification—including major design changes and engineering—and include a release granting permission to modify the plan. Most CAD plan orders are emailed the same or next business day.
 
This package also comes with a PDF set of plans and a copyright release for making modifications and printing unlimited copies.
 
CAD files are provided in .dwg format. For details on the specific CAD program used, please refer to the PLAN DETAILS section located above the floor plan on each plan’s page.

CAD + PDF Single Build $2,850
2D electronic editable computer files

CAD Unlimited Build


CAD files are a complete set of construction drawings delivered electronically. They can be used for any type of modification—including major design changes and engineering—and include a release granting permission to modify the plan. Most CAD plan orders are emailed the same or next business day. CAD files are provided in .dwg format. For details on the specific CAD program used, please refer to the PLAN DETAILS section located above the floor plan on each plan’s page.
CAD Unlimited Build $4,125
2D electronic editable computer files
STEP 2 Need To Reverse This Plan?
STEP 3 CHOOSE YOUR FOUNDATION
STEP 4 OPTIONAL ADD-ONS
Subtotal:
$1550
FREE SHIPPING
 
Plan Details
See All Details
Finished Square Footage
2,299 Sq. Ft.
Main Level:
1,502 Sq. Ft.
Lower Level:
2,299 Sq. Ft.
Total:
Room Details
1
Bedrooms:
1
Full Baths:
1
Half Baths:
General House Information
1
Number of Stories:
88' 6"
Width:
74' 0"
Depth:
Single
Dwelling Number:
None
Bonus Access:
Unfinished Square Footage
1142 Sq. Ft.
Garage:
1210 Sq. Ft.
Porch:
GARAGE
Front
Garage Location:
3
Garage Size:
Exterior Style
Country
Lake
Ranch
Southwest
Collections
Kitchens
Primary Suites
Open Floor Plan
Outdoor Living
Split Bedroom
Foundation
Basement
Crawl Space
Slab
Walkout Basement
Framing Information
Truss
Roof Framing:
2x6
Exterior Wall Framing:
Roof Pitch
7/12
Primary:
2/12
Secondary:
Insulation (R)
House And Ceiling Heights
10
First Floor Ceiling:
23' 2"
Maximum House Height:
Key Features
Attached
Covered Front Porch
Covered Rear Porch
Dining Room
Double Vanity Sink
Family Room
Fireplace
Front-entry
Great Room
His and Hers Primary Closets
Home Office
Inverted Living
Kitchen Island
Laundry 1st Fl
L-Shaped
Primary Bdrm Main Floor
Mud Room
Open Floor Plan
Rec Room
Side-entry
Split Bedrooms
Storage Space
Suited for corner lot
Suited for sloping lot
Unfinished Space
Vaulted Ceilings
Walk-in Closet
Walk-in Pantry

Our Guarantees

  • Only the highest quality plans
  • Int’l Residential Code Compliant
  • Full structural details on all plans
  • Best plan price guarantee
  • Free modification Estimates
  • Builder-ready construction drawings
  • Expert advice from leading designers
  •  PDFs NOW!™ plans in minutes
  • 100% satisfaction guarantee
  • Free Home Building Organizer