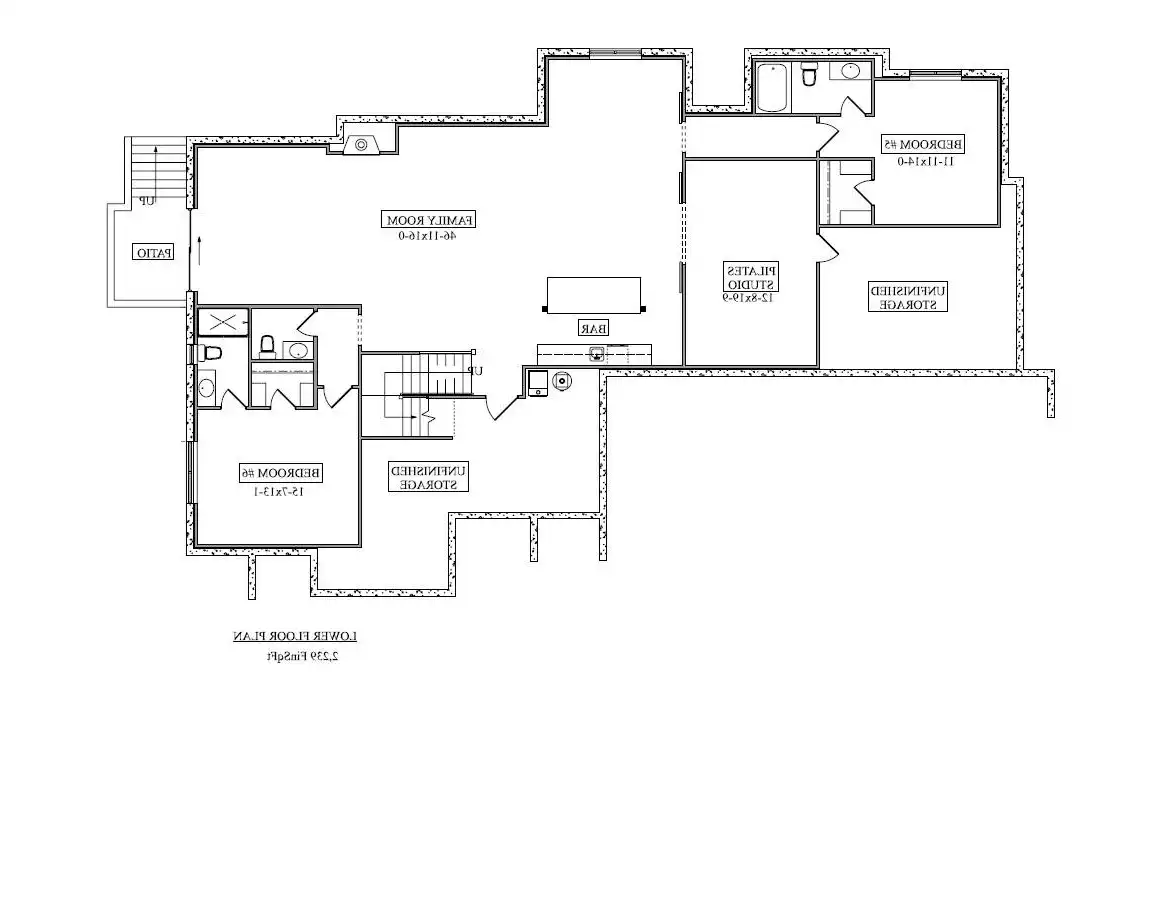
Offering 3,359 square feet, this thoughtfully designed home provides four bedrooms and three and a half baths across two stories. The open floor plan connects the great room, kitchen, and dining areas, enhanced by a fireplace and abundant natural light. The kitchen includes both an island and peninsula, plus a butler’s pantry to keep everything organized. The main-level primary suite features dual vanities, a soaking tub, and a walk-in closet, while a guest suite adds versatility for visitors or multi-generational living. Upstairs, additional bedrooms and a recreation room expand the options for relaxation and entertaining. A mudroom, home office, and plenty of storage simplify everyday routines. With Craftsman, modern, and farmhouse influences, this plan offers comfort, charm, and lasting appeal.