House Plan: DFD-11477

See All 6 Photos > (photographs may reflect modified homes)
© copyright by designer
SQ FT
2,567
BEDS
2
BATHS
2.5
STORIES
1
CARS
3
PLANS FROM $1,750
For questions and help, live chat, email or call us at 877-895-5299
Floor Plans
Click to Zoom In on Floor Plan
 
About House Plan 11477:
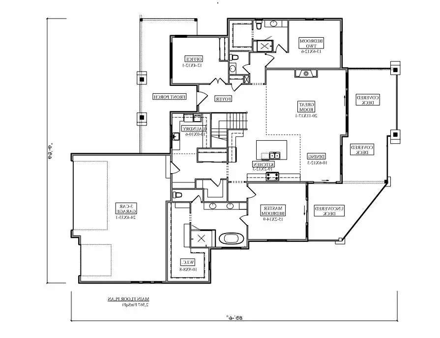
This charming 2,567 square foot ranch home combines Craftsman charm with modern features ideal for today’s lifestyle. The open floor plan highlights a bright great room with fireplace, connecting seamlessly to the dining area and kitchen with island and butler’s pantry. The primary suite on the main floor offers a luxurious bath with double sinks, a separate tub and shower, and a roomy walk-in closet. Two additional bedrooms share a split layout, giving privacy and space for family or guests. A home office, mud room, and library/media room provide practical and versatile areas for daily living. Downstairs, a rec room and unfinished spaces add plenty of room for hobbies or future expansion. Covered porches in front and back invite outdoor living, making this home both comfortable and welcoming. Families will love the balance of style, warmth, and functionality in this design.
House Plan Pricing
STEP 1 Select Your Package

PDF Single Build


Digital plans emailed to you in PDF format that allows for printing copies and sharing electronically with contractors, subs, decorators, and more. This package includes a license to build the home one time.

PDF Single Build $1,750
Most recommended package

CAD + PDF Single Build


CAD files are a complete set of construction drawings delivered electronically. They can be used for any type of modification—including major design changes and engineering—and include a release granting permission to modify the plan. Most CAD plan orders are emailed the same or next business day.
 
This package also comes with a PDF set of plans and a copyright release for making modifications and printing unlimited copies.
 
CAD files are provided in .dwg format. For details on the specific CAD program used, please refer to the PLAN DETAILS section located above the floor plan on each plan’s page.

CAD + PDF Single Build $3,050
2D electronic editable computer files
STEP 2 Need To Reverse This Plan?
STEP 3 CHOOSE YOUR FOUNDATION
STEP 4 OPTIONAL ADD-ONS
Subtotal:
$1750
FREE SHIPPING
 
Plan Details
See All Details
Finished Square Footage
2,567 Sq. Ft.
Main Level:
1,940 Sq. Ft.
Lower Level:
2,567 Sq. Ft.
Total:
Room Details
2
Bedrooms:
2
Full Baths:
1
Half Baths:
General House Information
1
Number of Stories:
69' 6"
Width:
85' 6"
Depth:
Single
Dwelling Number:
Unfinished Square Footage
834 Sq. Ft.
Garage:
973 Sq. Ft.
Porch:
GARAGE
3
Garage Size:
Exterior Style
Contemporary
Contemporary
Craftsman
Craftsman
Modern
Modern
Ranch
Ranch
Collections
Affordable
Affordable
First Home
First Home
Mountain
Mountain
Open Floor Plan
Open Floor Plan
Split Bedroom
Split Bedroom
Foundation
Basement
Crawl Space
Daylight Basement
Slab
Framing Information
2x6
Exterior Wall Framing:
Roof Pitch
6/12
Primary:
9/12
Secondary:
Insulation (R)
House And Ceiling Heights
10
First Floor Ceiling:
21' 4"
Maximum House Height:
Key Features
Attached
Butler's Pantry
Covered Front Porch
Covered Rear Porch
Dining Room
Double Vanity Sink
Fireplace
Foyer
Front-entry
Great Room
Home Office
Kitchen Island
Laundry 1st Fl
Library/Media Rm
L-Shaped
Primary Bdrm Main Floor
Mud Room
Open Floor Plan
Peninsula / Eating Bar
Rec Room
Separate Tub and Shower
Split Bedrooms
Storage Space
Suited for corner lot
Unfinished Space
Walk-in Closet

Our Guarantees

  • Only the highest quality plans
  • Int’l Residential Code Compliant
  • Full structural details on all plans
  • Best plan price guarantee
  • Free modification Estimates
  • Builder-ready construction drawings
  • Expert advice from leading designers
  •  PDFs NOW!™ plans in minutes
  • 100% satisfaction guarantee
  • Free Home Building Organizer