20% off ALL House Plans Sitewide

House Plan: DFD-11486

See All 5 Photos > (photographs may reflect modified homes)
© copyright by designer
SQ FT
3,064
BEDS
4
BATHS
3.5
STORIES
1
CARS
3
HOUSE PLANS SALE 
START AT  $1,160.00
For questions and help, live chat, email or call us at 877-895-5299
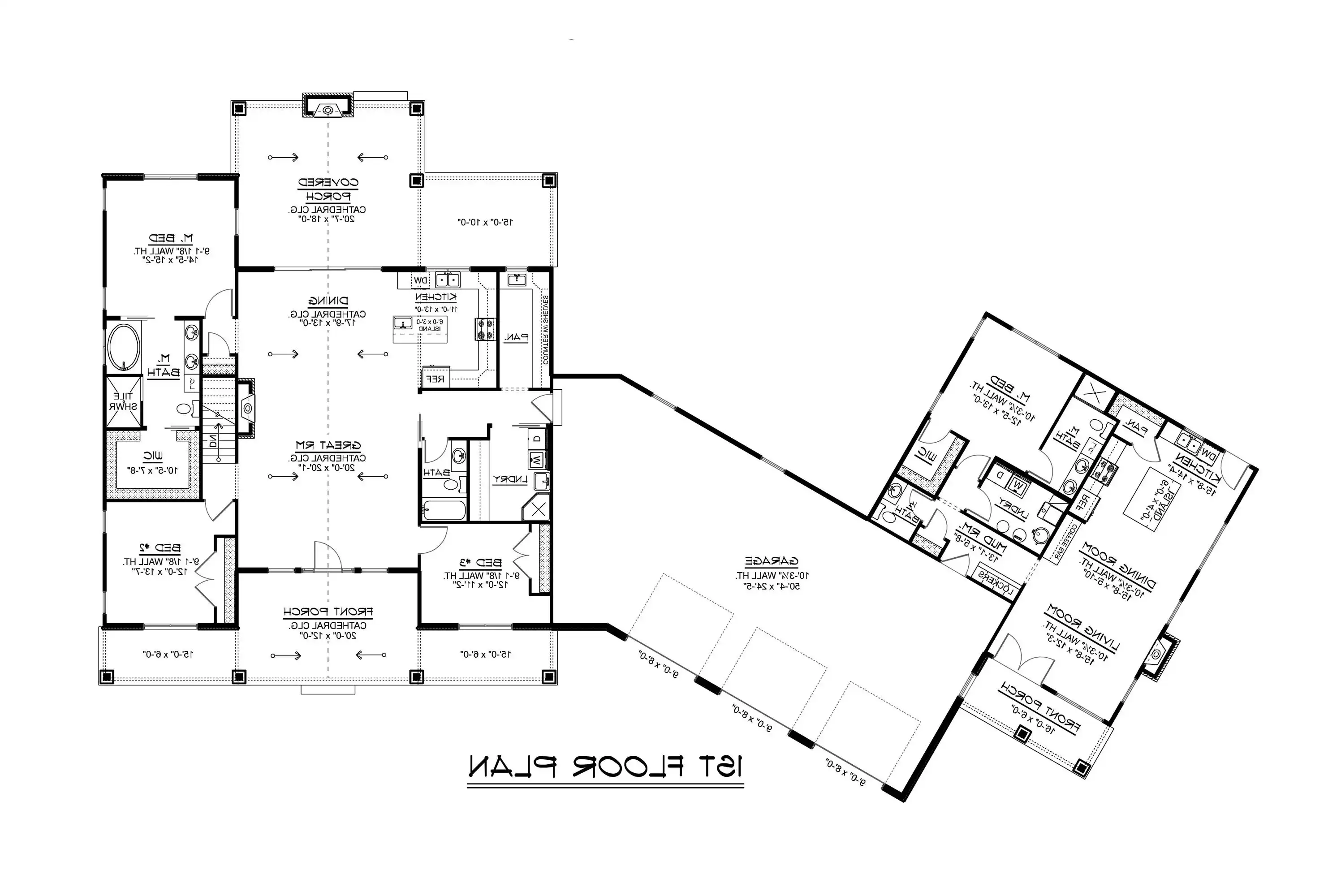
Floor Plans
Click to Zoom In on Floor Plan
 
About House Plan 11486:
Check out House Plan 11486 if you're looking for a great multigenerational solution in a striking ranch layout! This design boasts 3,064 square feet with four bedrooms and three-and-a-half bathrooms across the main house and the apartment attached on the other side of the three-car garage. The main house has a grand great room with a cathedral ceiling running from front to back while three bedrooms--the five-piece primary suite and two that share a hall bath--and the U-shaped island kitchen are placed in the corners. Don't miss the spacious walk-in pantry and laundry room off the mudroom or the outdoor living area with a fireplace! The apartment also offers exceptional accommodations with an L-shaped island kitchen beside the great room, a four-piece bedroom suite, a powder room, a laundry room, and its own mudroom. What a great house for the whole family! 
House Plan Pricing
STEP 1 Select Your Package

PDF Single Build


Digital plans emailed to you in PDF format that allows for printing copies and sharing electronically with contractors, subs, decorators, and more. This package includes a license to build the home one time.

PDF Single Build $1,450
Most recommended package

5 Printed Sets + PDF


Includes 5 physical printed blueprint sets, shipped free via UPS within the U.S. Printed sets ship within 1 business day and are delivered within 3 – 5 business days. A complimentary PDF plan set is also emailed within 1 business day for easy sharing and local printing. These plans may be used to construct one home.

5 Printed Sets + PDF $1,800
5 Printed Sets + PDF

PDF Unlimited Build


Digital plans with an unlimited build license emailed in PDF format, that allows for printing copies on a home printer or local print shop and sharing with contractors, subs, decorators and more 

PDF Unlimited Build $2,050
Digital plans including unlimited build license

CAD + PDF Single Build


This plan package is created in AutoCAD and delivered in .DWG format. CAD files are intended for use by design professionals, structural engineers, and builders to update plans for local building codes or to make revisions based on specific needs, lot requirements, and budget considerations. A complimentary PDF copy is included with this package for reference. CAD packages are delivered within 1 to 2 business days.
 
This package also comes with a copyright release for making revisions and printing unlimited copies.

For details on the specific CAD program used, please refer to the PLAN DETAILS section located above the floor plan on each plan page.

CAD + PDF Single Build $2,700
2D electronic editable computer files

CAD + PDF Unlimited Build


This plan package is created in AutoCAD and delivered in .DWG format. CAD files are intended for use by design professionals, structural engineers, and builders to update plans for local building codes or to make revisions based on specific needs, lot requirements, and budget considerations. A complimentary PDF copy is included with this package for reference. CAD packages are delivered within 1 to 2 business days.
 
This package also comes with a multi-use building license, granting permission to construct the home an unlimited number of times, along with a copyright release for making revisions and printing unlimited copies.
 
For details on the specific CAD program used, please refer to the PLAN DETAILS section located above the floor plan on each plan page.

CAD + PDF Unlimited Build $3,250
2D electronic editable computer files
STEP 2 Need To Reverse This Plan?
STEP 3 CHOOSE YOUR FOUNDATION
STEP 4 OPTIONAL ADD-ONS
Subtotal:
$1450
FREE SHIPPING
 
Plan Details
See All Details
Finished Square Footage
3,064 Sq. Ft.
Main Level:
2,030 Sq. Ft.
Lower Level:
3,064 Sq. Ft.
Total:
Room Details
4
Bedrooms:
3
Full Baths:
1
Half Baths:
General House Information
1
Number of Stories:
128' 5"
Width:
77' 0"
Depth:
Single
Dwelling Number:
None
Bonus Access:
Unfinished Square Footage
1298 Sq. Ft.
Garage:
1040 Sq. Ft.
Porch:
GARAGE
Side
Garage Location:
3
Garage Size:
Exterior Style
Country
Lake
Ranch
Transitional
Collections
In-Law Suite
Kitchens
Primary Suites
Open Floor Plan
Outdoor Living
Split Bedroom
Foundation
Basement
Crawl Space
Slab
Framing Information
Truss
Roof Framing:
2x4
Exterior Wall Framing:
Roof Pitch
4/12
Primary:
8/12
Secondary:
Insulation (R)
13
Exterior Wall:
40
Ceiling:
House And Ceiling Heights
9
First Floor Ceiling:
19' 1"
Maximum House Height:
Key Features
2 Primary Suites
Attached
Covered Front Porch
Covered Rear Porch
Double Vanity Sink
Fireplace
Front-entry
Great Room
In-law Suite
Kitchen Island
Laundry 1st Fl
Primary Bdrm Main Floor
Mud Room
Open Floor Plan
Outdoor Living Space
Oversized
Separate Tub and Shower
Split Bedrooms
Suited for view lot
U-Shaped
Vaulted Ceilings
Walk-in Closet
Walk-in Pantry

Our Guarantees

  • Only the highest quality plans
  • Int’l Residential Code Compliant
  • Full structural details on all plans
  • Best plan price guarantee
  • Free modification Estimates
  • Builder-ready construction drawings
  • Expert advice from leading designers
  •  PDFs NOW!™ plans in minutes
  • 100% satisfaction guarantee
  • Free Home Building Organizer