20% off ALL House Plans Sitewide
20% off ALL House Plans Sitewide

House Plan: DFD-11516

See All 2 Photos > (photographs may reflect modified homes)
© copyright by designer
SQ FT
2,516
BEDS
4
BATHS
3
STORIES
1.5
CARS
2
HOUSE PLANS SALE 
START AT  $1,240.00
For questions and help, live chat, email or call us at 877-895-5299
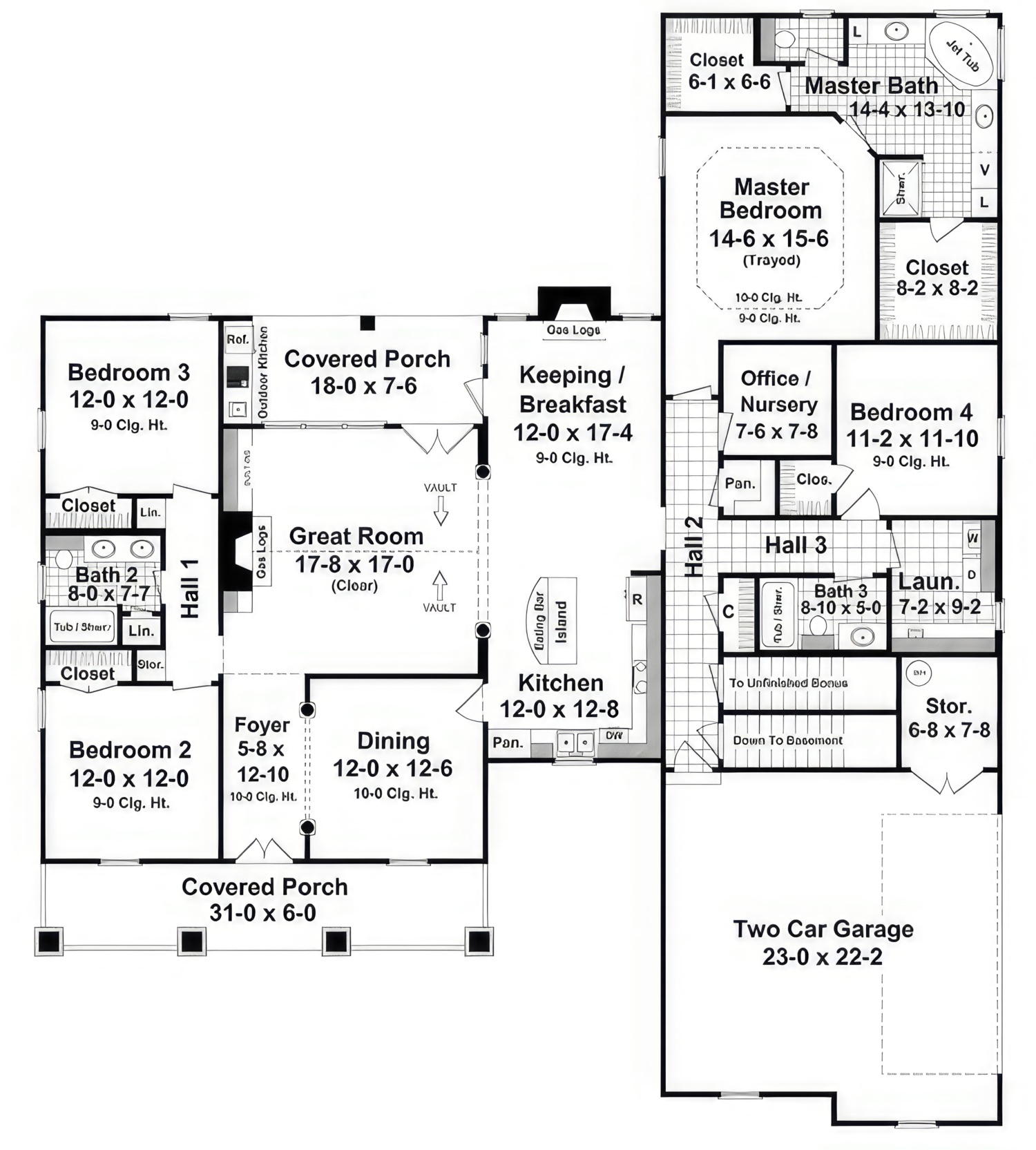
Floor Plans
Click to Zoom In on Floor Plan
 
About House Plan 11516:
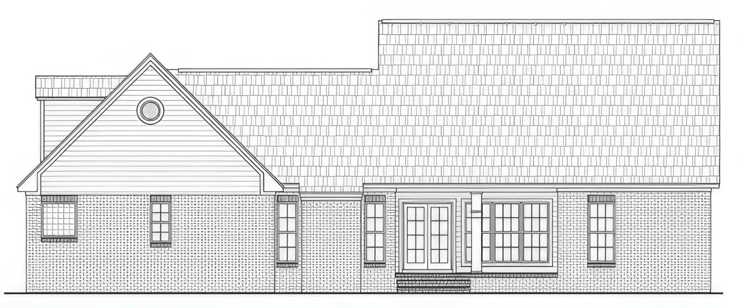
This charming 4-bedroom design offers timeless curb appeal and an interior made for everyday comfort. The front porch delivers a warm Southern welcome, while a covered rear porch provides the ideal setting for outdoor dining or relaxing. Inside, the vaulted great room with fireplace forms the heart of the home and flows easily into the kitchen and breakfast nook. A large center island, walk-in pantry, and generous cabinet space support both family routines and hosting. The split-bedroom layout places the master suite in its own private corner, featuring dual walk-in closets and a spa-inspired bath with a jet tub, separate shower, and double vanities. A nearby office or nursery adds convenience for work or family needs. Upstairs, the optional bonus room allows for future expansion, and the walk-in laundry room and two-car garage help keep the home organized and functional.
House Plan Pricing
STEP 1 Select Your Package

Study Set - Printed


One printed set of house plans stamped NOT FOR CONSTRUCTION". This set is intended for review purposes and are mailed to you. To build from the plans, you need to upgrade to a licensed set.
Study Set - Printed $1,400
One Printed Set - Not for Construction

PDF Single Build


Digital plans emailed to you in PDF format that allows for printing copies and sharing electronically with contractors, subs, decorators, and more. This package includes a license to build the home one time.

PDF Single Build $1,550
Most recommended package

5 Printed Sets


Five Printed Sets of Residential Construction Drawings are typically 24” x 36” documents and come with a license to construct a single residence shipped to a physical address. Keep in mind PDF Plan Packages are our most popular choice which allows you to print as many copies as you need and to electronically send files to your builder, subcontractors, etc.

5 Printed Sets $1,650
Five printed sets of house plans

5 Printed Sets + PDF


Digital plan emailed to you in PDF format that allows for printing copies on a home printer or local print shop and sharing with contractors, subs, decorators, and more. PLUS five printed sets shipped and delivered 3-5 business days.

5 Printed Sets + PDF $1,900
Digital plans plus 5 printed sets

CAD + PDF Single Build


CAD files are a complete set of construction drawings delivered electronically. They can be used for any type of modification—including major design changes and engineering—and include a release granting permission to modify the plan. Most CAD plan orders are emailed the same or next business day.
 
This package also comes with a PDF set of plans and a copyright release for making modifications and printing unlimited copies.
 
CAD files are provided in .dwg format. For details on the specific CAD program used, please refer to the PLAN DETAILS section located above the floor plan on each plan’s page.

CAD + PDF Single Build $2,400
2D electronic editable computer files
STEP 2 Need To Reverse This Plan?
STEP 3 CHOOSE YOUR FOUNDATION
STEP 4 OPTIONAL ADD-ONS
Subtotal:
$1550
FREE SHIPPING
 
Plan Details
See All Details
Finished Square Footage
3,548 Sq. Ft.
Main Level:
2,516 Sq. Ft.
Total:
Room Details
4
Bedrooms:
3
Full Baths:
General House Information
1.5
Number of Stories:
66' 8"
Width:
77' 2"
Depth:
Single
Dwelling Number:
1st Floor
Bonus Access:
Unfinished Square Footage
711 Sq. Ft.
Garage:
186 Sq. Ft.
Front Porch:
135 Sq. Ft.
Rear Porch:
365 Sq. Ft.
Bonus Room:
GARAGE
Side
Garage Location:
2
Garage Size:
Exterior Style
Country
European
Modern Farmhouse
Traditional
Collections
Builders
Open Floor Plan
Split Bedroom
Foundation
Basement
Crawl Space
Slab
Framing Information
Stick
Roof Framing:
2x4
Exterior Wall Framing:
Roof Pitch
8 in 12
Primary:
12 in 12
Secondary:
Roof Load
30
Live:
10
Dead:
40
Wind:
Insulation (R)
15
Exterior Wall:
38
Interior Wall:
19
Ceiling:
19
Floor:
House And Ceiling Heights
9
First Floor Ceiling:
24' 7"
Maximum House Height:
Key Features
Attached
Bonus Room
Covered Front Porch
Covered Rear Porch
Dining Room
Double Vanity Sink
Exercise Room
Fireplace
Formal LR
Foyer
Great Room
His and Hers Primary Closets
Home Office
Kitchen Island
Laundry 1st Fl
L-Shaped
Primary Bdrm Main Floor
Nook / Breakfast Area
Nursery Room
Open Floor Plan
Outdoor Kitchen
Oversized
Pantry
Peninsula / Eating Bar
Separate Tub and Shower
Split Bedrooms
Storage Space
Suited for corner lot
Unfinished Space
Vaulted Ceilings
Vaulted Great Room/Living
Walk-in Closet
Walk-in Pantry

Our Guarantees

  • Only the highest quality plans
  • Int’l Residential Code Compliant
  • Full structural details on all plans
  • Best plan price guarantee
  • Free modification Estimates
  • Builder-ready construction drawings
  • Expert advice from leading designers
  •  PDFs NOW!™ plans in minutes
  • 100% satisfaction guarantee
  • Free Home Building Organizer