20% off ALL House Plans Sitewide
20% off ALL House Plans Sitewide

House Plan: DFD-11527

See All 2 Photos > (photographs may reflect modified homes)
© copyright by designer
SQ FT
2,290
BEDS
3
BATHS
2
STORIES
1
CARS
2
HOUSE PLANS SALE 
START AT  $1,240.00
For questions and help, live chat, email or call us at 877-895-5299
Floor Plans
Click to Zoom In on Floor Plan
 
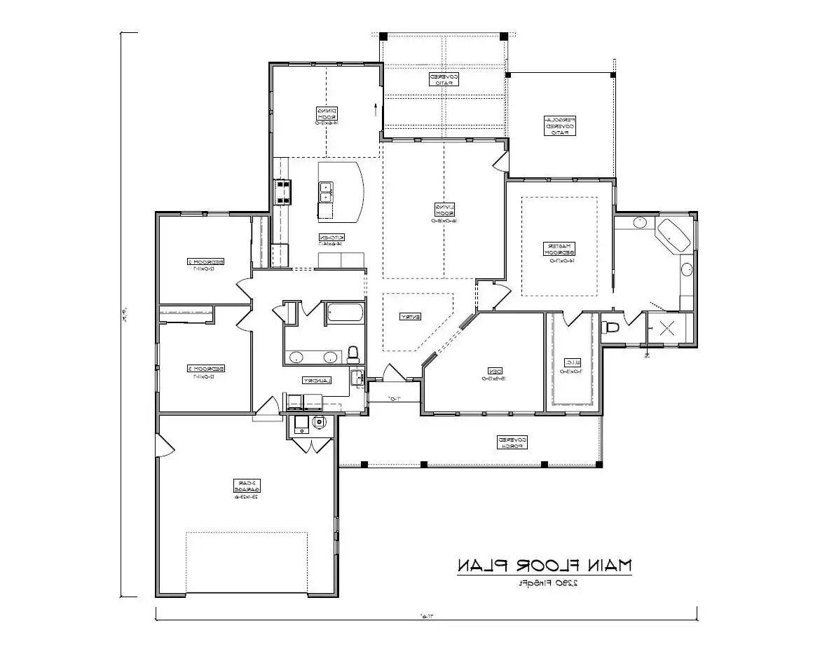
About House Plan 11527:
This inviting 3-bedroom, 2-bath Modern Farmhouse offers 2,290 square feet of open, functional living space. The L-shaped kitchen includes a large island, eating bar, and pantry, ideal for family gatherings or entertaining friends. A cozy great room and dining area open to covered porches that encourage easy indoor-outdoor flow. The primary suite on the main floor features dual vanities, a soaking tub, and a walk-in closet for everyday luxury. Split bedrooms provide added privacy and flexibility for guests or children. With a front-entry garage, mudroom, and home office, daily life stays organized and comfortable. This thoughtfully designed plan welcomes you home to easy living with a touch of country charm.
House Plan Pricing
STEP 1 Select Your Package

PDF Single Build


Digital plans emailed to you in PDF format that allows for printing copies and sharing electronically with contractors, subs, decorators, and more. This package includes a license to build the home one time.

PDF Single Build $1,550
Most recommended package

5 Printed Sets + PDF


Includes 5 physical printed blueprint sets, shipped free via UPS within the U.S. Printed sets ship within 1 business day and are delivered within 3 – 5 business days. A complimentary PDF plan set is also emailed within 1 business day for easy sharing and local printing. These plans may be used to construct one home.

5 Printed Sets + PDF $1,900
5 Printed Sets + PDF

CAD + PDF Single Build


This plan package is created in AutoCAD and delivered in .DWG format. CAD files are intended for use by design professionals, structural engineers, and builders to update plans for local building codes or to make revisions based on specific needs, lot requirements, and budget considerations. A complimentary PDF copy is included with this package for reference. CAD packages are delivered within 1 to 2 business days.
 
This package also comes with a copyright release for making revisions and printing unlimited copies.

For details on the specific CAD program used, please refer to the PLAN DETAILS section located above the floor plan on each plan page.

CAD + PDF Single Build $2,850
2D electronic editable computer files
STEP 2 Need To Reverse This Plan?
STEP 3 CHOOSE YOUR FOUNDATION
STEP 4 OPTIONAL ADD-ONS
Subtotal:
$1550
FREE SHIPPING
 
Plan Details
See All Details
Finished Square Footage
2,290 Sq. Ft.
Main Level:
2,290 Sq. Ft.
Total:
Room Details
3
Bedrooms:
2
Full Baths:
General House Information
1
Number of Stories:
71' 6"
Width:
74' 6"
Depth:
Single
Dwelling Number:
Unfinished Square Footage
576 Sq. Ft.
Garage:
GARAGE
Front
Garage Location:
2
Garage Size:
Exterior Style
Country
Craftsman
Farmhouse
Modern Farmhouse
Ranch
Collections
Affordable
First Home
Mountain
Open Floor Plan
Split Bedroom
Foundation
Basement
Crawl Space
Slab
Framing Information
Truss
Roof Framing:
2x6
Exterior Wall Framing:
Roof Pitch
10/12
Primary:
8/12
Secondary:
Insulation (R)
House And Ceiling Heights
10
First Floor Ceiling:
25' 8"
Maximum House Height:
Key Features
Attached
Covered Front Porch
Covered Rear Porch
Dining Room
Double Vanity Sink
Front-entry
Home Office
Kitchen Island
Laundry 1st Fl
L-Shaped
Primary Bdrm Main Floor
Mud Room
Open Floor Plan
Pantry
Peninsula / Eating Bar
Rec Room
Separate Tub and Shower
Split Bedrooms
Suited for corner lot
Walk-in Closet

Our Guarantees

  • Only the highest quality plans
  • Int’l Residential Code Compliant
  • Full structural details on all plans
  • Best plan price guarantee
  • Free modification Estimates
  • Builder-ready construction drawings
  • Expert advice from leading designers
  •  PDFs NOW!™ plans in minutes
  • 100% satisfaction guarantee
  • Free Home Building Organizer