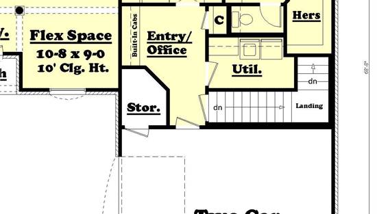
Designed with comfort and practicality in mind, this home features 1,600 square feet of well-planned heated living space. The open great room flows seamlessly into the dining area and kitchen, making entertaining feel natural and effortless. The kitchen is equipped with an island, peninsula eating bar, breakfast nook, and pantry to support both casual meals and gatherings. The main-floor primary bedroom offers a relaxing retreat with his and hers closets, a double vanity, and a separate tub and shower. Secondary bedrooms are placed in a split arrangement, offering flexibility for family or guests. A front-entry attached garage with courtyard-style access, along with a mud room and first-floor laundry, enhances daily functionality. With covered porches at both the front and rear, this home delivers a comfortable layout that feels welcoming and well-balanced.