15% off ALL House Plans Sitewide
15% off ALL House Plans Sitewide

House Plan: DFD-11555

See All 13 Photos > (photographs may reflect modified homes)
© copyright by designer
SQ FT
3,500
BEDS
5
BATHS
3.5
STORIES
1
CARS
3
HOUSE PLANS SALE 
START AT  $1,695.75
For questions and help, live chat, email or call us at 877-895-5299
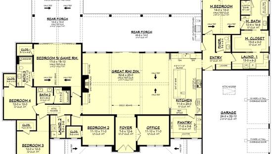
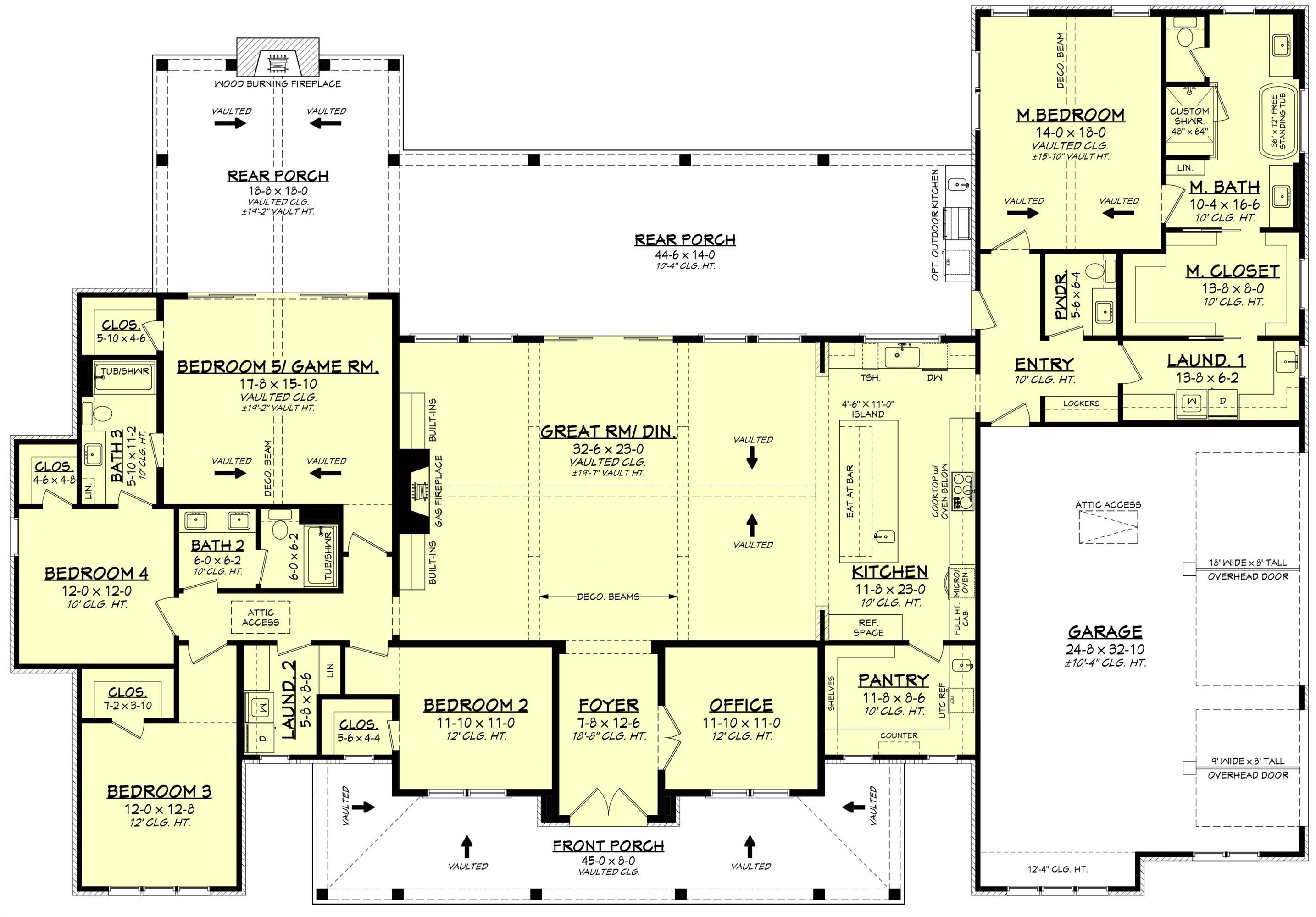
Floor Plans
Click to Zoom In on Floor Plan
 
About House Plan 11555:
This stunning modern farmhouse design captures the perfect mix of charm and sophistication. The painted brick and board-and-batten exterior create a timeless curb appeal, complemented by tall gables and a welcoming front porch. Inside, soaring vaulted ceilings enhance the great room, where natural light fills the open living space. The gourmet kitchen with its large island connects effortlessly to the dining area and rear porch, making entertaining easy and enjoyable. The main-level primary suite offers comfort and privacy, complete with a spa-inspired bath and dual walk-in closets. Upstairs or across the hall, flexible bedrooms and a bonus game room provide room for family fun or quiet relaxation. Combining rustic touches with a modern edge, this farmhouse is designed for gracious living and everyday connection.
House Plan Pricing
STEP 1 Select Your Package

5 Printed Sets + PDF


Includes 5 physical printed blueprint sets, shipped free via UPS within the Continental U.S. Printed sets ship within 1 business day and are delivered within 3 – 5 business days. A complimentary PDF plan set is also emailed within 1 business day for easy sharing and local printing. These plans may be used to construct one home.

5 Printed Sets + PDF $2,245
5 Printed Sets + PDF

PDF Single Build


Digital plans emailed to you in PDF format that allows for printing copies and sharing electronically with contractors, subs, decorators, and more. This package includes a license to build the home one time.

PDF Single Build $1,995
Most recommended package

PDF Unlimited Build


Digital plans with an unlimited build license emailed in PDF format, that allows for printing copies on a home printer or local print shop and sharing with contractors, subs, decorators and more 

PDF Unlimited Build $2,695
Digital plans including unlimited build license

CAD + PDF Unlimited Build


This plan package is created in AutoCAD and delivered in .DWG format. CAD files are intended for use by design professionals, structural engineers, and builders to update plans for local building codes or to make revisions based on specific needs, lot requirements, and budget considerations. A complimentary PDF copy is included with this package for reference. CAD packages are delivered within 1 to 2 business days.
 
This package also comes with a multi-use building license, granting permission to construct the home an unlimited number of times, along with a copyright release for making revisions and printing unlimited copies.
 
For details on the specific CAD program used, please refer to the PLAN DETAILS section located above the floor plan on each plan page.

CAD + PDF Unlimited Build $3,095
2D electronic editable computer files
STEP 2 Need To Reverse This Plan?
STEP 3 CHOOSE YOUR FOUNDATION
STEP 4 OPTIONAL ADD-ONS
Subtotal:
$2245
FREE SHIPPING
 
Plan Details
See All Details
Finished Square Footage
3,500 Sq. Ft.
Main Level:
3,500 Sq. Ft.
Total:
Room Details
5
Bedrooms:
3
Full Baths:
1
Half Baths:
General House Information
1
Number of Stories:
99' 6"
Width:
68' 8"
Depth:
Single
Dwelling Number:
Unfinished Square Footage
865 Sq. Ft.
Garage:
1339 Sq. Ft.
Porch:
372 Sq. Ft.
Front Porch:
967 Sq. Ft.
Rear Porch:
GARAGE
Front
Garage Location:
3
Garage Size:
Exterior Style
Farmhouse
Modern Farmhouse
Traditional
Transitional
Collections
Affordable
First Home
Luxury
Open Floor Plan
Split Bedroom
Foundation
Basement
Crawl Space
Slab
Walkout Basement
Framing Information
Stick
Roof Framing:
2x4
Exterior Wall Framing:
Roof Pitch
10/12
Primary:
12/12
Secondary:
14/12
Teritary:
Insulation (R)
House And Ceiling Heights
10
First Floor Ceiling:
30' 0"
Maximum House Height:
Key Features
Attached
Butler's Pantry
Covered Front Porch
Covered Rear Porch
Dining Room
Double Vanity Sink
Fireplace
Foyer
Great Room
Home Office
Kitchen Island
Laundry 1st Fl
Library/Media Rm
L-Shaped
Primary Bdrm Main Floor
Mud Room
Open Floor Plan
Outdoor Kitchen
Outdoor Living Space
Peninsula / Eating Bar
Rec Room
Separate Tub and Shower
Side-entry
Split Bedrooms
Suited for corner lot
Vaulted Great Room/Living
Vaulted Primary
Walk-in Closet

Our Guarantees

  • Only the highest quality plans
  • Int’l Residential Code Compliant
  • Full structural details on all plans
  • Best plan price guarantee
  • Free modification Estimates
  • Builder-ready construction drawings
  • Expert advice from leading designers
  •  PDFs NOW!™ plans in minutes
  • 100% satisfaction guarantee
  • Free Home Building Organizer