20% Off House Plans Sitewide Ends Sunday
20% Off House Plans Sitewide Ends Sunday

House Plan: DFD-11574

See All 28 Photos > (photographs may reflect modified homes)
© copyright by designer
SQ FT
3,736
BEDS
4
BATHS
3.5
STORIES
2
CARS
3
HOUSE PLANS SALE 
START AT  $1,920.00
For questions and help, live chat, email or call us at 877-895-5299
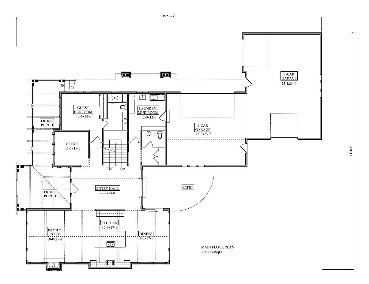
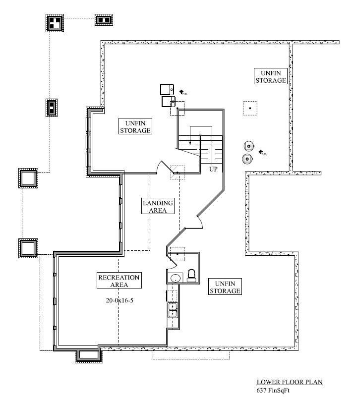
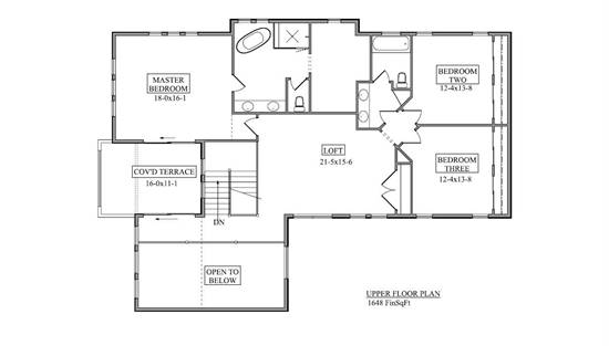
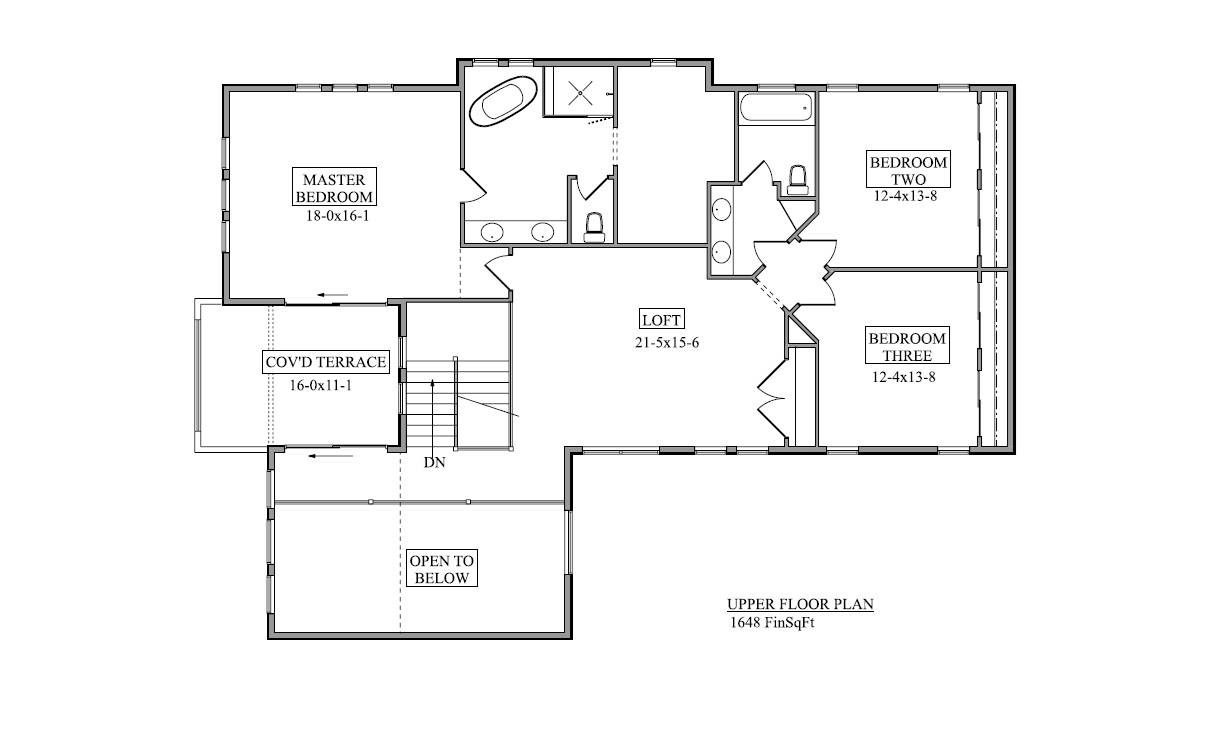
Floor Plans
Click to Zoom In on Floor Plan
 
About House Plan 11574:
This charming 4-bedroom Craftsman home features 3,736 square feet of comfortable, well-planned space. The kitchen includes both an island and peninsula, ideal for cooking and casual meals. An open floor plan connects the dining, family, and great rooms for effortless entertaining. The primary suite upstairs offers a serene retreat with a double vanity and walk-in closet. A mudroom, loft, and recreation area bring functionality and flexibility to daily life. The covered porch adds a touch of warmth and charm for relaxing evenings outdoors. A perfect mix of style, comfort, and livability makes this plan a wonderful family home.
House Plan Pricing
STEP 1 Select Your Package

PDF Single Build


Digital plans emailed to you in PDF format that allows for printing copies and sharing electronically with contractors, subs, decorators, and more. This package includes a license to build the home one time.

PDF Single Build $2,400
Most recommended package

PDF Unlimited Build


Digital plans with an unlimited build license emailed in PDF format, that allows for printing copies on a home printer or local print shop and sharing with contractors, subs, decorators and more 

PDF Unlimited Build $3,450
Digital plans including unlimited build license

CAD + PDF Single Build


CAD files are a complete set of construction drawings delivered electronically. They can be used for any type of modification—including major design changes and engineering—and include a release granting permission to modify the plan. Most CAD plan orders are emailed the same or next business day.
 
This package also comes with a PDF set of plans and a copyright release for making modifications and printing unlimited copies.
 
CAD files are provided in .dwg format. For details on the specific CAD program used, please refer to the PLAN DETAILS section located above the floor plan on each plan’s page.

CAD + PDF Single Build $3,900
2D electronic editable computer files

CAD Unlimited Build


CAD files are a complete set of construction drawings delivered electronically. They can be used for any type of modification—including major design changes and engineering—and include a release granting permission to modify the plan. Most CAD plan orders are emailed the same or next business day. CAD files are provided in .dwg format. For details on the specific CAD program used, please refer to the PLAN DETAILS section located above the floor plan on each plan’s page.
CAD Unlimited Build $5,700
2D electronic editable computer files
STEP 2 Need To Reverse This Plan?
STEP 3 CHOOSE YOUR FOUNDATION
STEP 4 OPTIONAL ADD-ONS
Subtotal:
$2400
FREE SHIPPING
 
Plan Details
See All Details
Finished Square Footage
2,088 Sq. Ft.
Main Level:
1,648 Sq. Ft.
Upper Level:
637 Sq. Ft.
Lower Level:
3,736 Sq. Ft.
Total:
Room Details
4
Bedrooms:
3
Full Baths:
1
Half Baths:
General House Information
2
Number of Stories:
77' 10"
Width:
100' 3"
Depth:
Single
Dwelling Number:
Unfinished Square Footage
1530 Sq. Ft.
Garage:
GARAGE
Rear
Garage Location:
3
Garage Size:
Exterior Style
Contemporary
Modern
Modern Farmhouse
Traditional
Transitional
Collections
Affordable
First Home
Luxury
Open Floor Plan
Foundation
Basement
Crawl Space
Daylight Basement
Slab
Framing Information
Truss
Roof Framing:
2x6
Exterior Wall Framing:
Roof Pitch
6/12
Primary:
3/12
Secondary:
Insulation (R)
House And Ceiling Heights
10
First Floor Ceiling:
9
Second Floor Ceiling:
27' 4"
Maximum House Height:
Key Features
Attached
Covered Front Porch
Dining Room
Double Vanity Sink
Family Room
Family Style
Fireplace
Front-entry
Home Office
Kitchen Island
Laundry 1st Fl
Loft / Balcony
Primary Bdrm Upstairs
Mud Room
Open Floor Plan
Peninsula / Eating Bar
Rec Room
Separate Tub and Shower
Side-entry
Storage Space
Suited for corner lot
Unfinished Space
Walk-in Closet

Our Guarantees

  • Only the highest quality plans
  • Int’l Residential Code Compliant
  • Full structural details on all plans
  • Best plan price guarantee
  • Free modification Estimates
  • Builder-ready construction drawings
  • Expert advice from leading designers
  •  PDFs NOW!™ plans in minutes
  • 100% satisfaction guarantee
  • Free Home Building Organizer