17% off ALL House Plans Sitewide
17% off ALL House Plans Sitewide

House Plan: DFD-11576

See All 35 Photos > (photographs may reflect modified homes)
© copyright by designer
SQ FT
3,757
BEDS
4
BATHS
4.5
STORIES
1
CARS
4
HOUSE PLANS SALE 
START AT  $1,992.00
For questions and help, live chat, email or call us at 877-895-5299
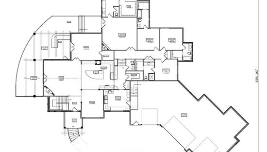
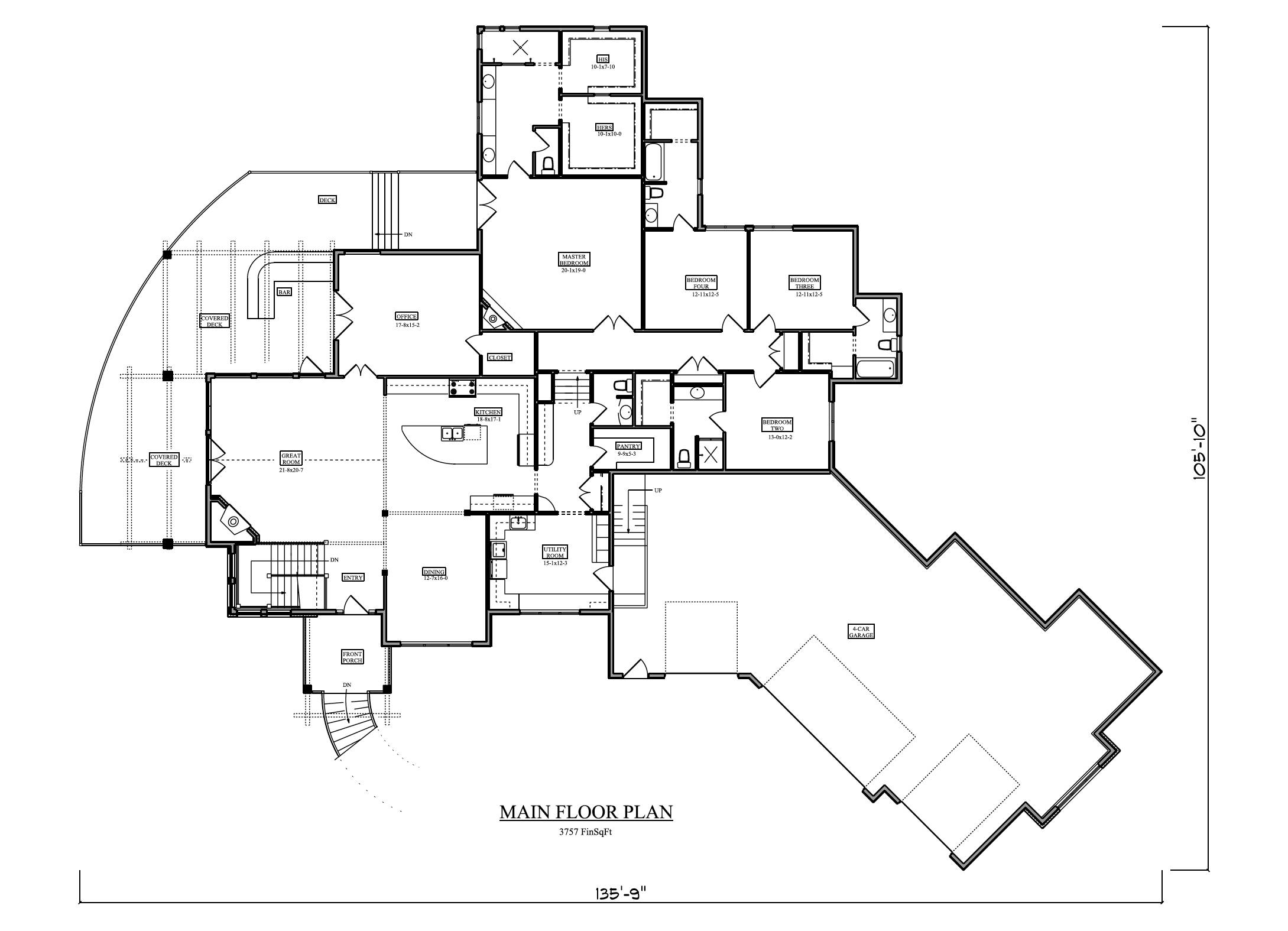
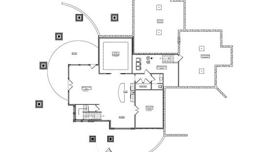
Floor Plans
Click to Zoom In on Floor Plan
 
About House Plan 11576:
This charming 4-bedroom Modern Ranch home offers 3,757 square feet of inviting, open living. The kitchen serves as the heart of the home, complete with a butler’s pantry, island, and peninsula for gathering and entertaining. A spacious great room with a fireplace opens to the rear porch and covered outdoor living area, creating seamless indoor-outdoor flow. The main-level primary suite provides comfort and privacy with dual closets and a spa-inspired bath. Downstairs, the rec room and exercise space offer room for leisure and fitness. A side-entry garage and mudroom keep everything organized and efficient. Blending luxury with laid-back charm, this home invites relaxed family living at its best.
House Plan Pricing
STEP 1 Select Your Package

PDF Single Build


Digital plans emailed to you in PDF format that allows for printing copies and sharing electronically with contractors, subs, decorators, and more. This package includes a license to build the home one time.

PDF Single Build $2,400
Most recommended package

PDF Unlimited Build


Digital plans with an unlimited build license emailed in PDF format, that allows for printing copies on a home printer or local print shop and sharing with contractors, subs, decorators and more 

PDF Unlimited Build $3,450
Digital plans including unlimited build license

CAD + PDF Single Build


CAD files are a complete set of construction drawings delivered electronically. They can be used for any type of modification—including major design changes and engineering—and include a release granting permission to modify the plan. Most CAD plan orders are emailed the same or next business day.
 
This package also comes with a PDF set of plans and a copyright release for making modifications and printing unlimited copies.
 
CAD files are provided in .dwg format. For details on the specific CAD program used, please refer to the PLAN DETAILS section located above the floor plan on each plan’s page.

CAD + PDF Single Build $3,900
2D electronic editable computer files

CAD Unlimited Build


CAD files are a complete set of construction drawings delivered electronically. They can be used for any type of modification—including major design changes and engineering—and include a release granting permission to modify the plan. Most CAD plan orders are emailed the same or next business day. CAD files are provided in .dwg format. For details on the specific CAD program used, please refer to the PLAN DETAILS section located above the floor plan on each plan’s page.
CAD Unlimited Build $5,700
2D electronic editable computer files
STEP 2 Need To Reverse This Plan?
STEP 3 CHOOSE YOUR FOUNDATION
STEP 4 OPTIONAL ADD-ONS
Subtotal:
$2400
FREE SHIPPING
 
Plan Details
See All Details
Finished Square Footage
3,757 Sq. Ft.
Main Level:
1,734 Sq. Ft.
Lower Level:
3,757 Sq. Ft.
Total:
Room Details
4
Bedrooms:
4
Full Baths:
1
Half Baths:
General House Information
1
Number of Stories:
135' 9"
Width:
105' 10"
Depth:
Single
Dwelling Number:
Unfinished Square Footage
1898 Sq. Ft.
Garage:
1624 Sq. Ft.
Porch:
GARAGE
Side
Garage Location:
4
Garage Size:
Exterior Style
Craftsman
Ranch
Collections
Kitchens
Luxury
Primary Suites
Mountain
Open Floor Plan
Outdoor Living
Split Bedroom
Foundation
Basement
Crawl Space
Slab
Walkout Basement
Framing Information
2x6
Exterior Wall Framing:
Roof Pitch
7/12
Primary:
Insulation (R)
House And Ceiling Heights
10
First Floor Ceiling:
32' 0"
Maximum House Height:
Key Features
Attached
Butler's Pantry
Covered Front Porch
Covered Rear Porch
Dining Room
Double Vanity Sink
Exercise Room
Family Style
Fireplace
Front-entry
Great Room
His and Hers Primary Closets
Home Office
Kitchen Island
Laundry 1st Fl
L-Shaped
Primary Bdrm Main Floor
Mud Room
Open Floor Plan
Outdoor Living Space
Oversized
Peninsula / Eating Bar
Rec Room
Storage Space
Suited for corner lot
Unfinished Space
Walk-in Closet

Our Guarantees

  • Only the highest quality plans
  • Int’l Residential Code Compliant
  • Full structural details on all plans
  • Best plan price guarantee
  • Free modification Estimates
  • Builder-ready construction drawings
  • Expert advice from leading designers
  •  PDFs NOW!™ plans in minutes
  • 100% satisfaction guarantee
  • Free Home Building Organizer