House Plan: DFD-11584

See All 3 Photos > (photographs may reflect modified homes)
© copyright by designer
SQ FT
4,382
BEDS
4
BATHS
4.5
STORIES
3
CARS
2
PLANS FROM $2,950
For questions and help, live chat, email or call us at 877-895-5299
Floor Plans
Click to Zoom In on Floor Plan
 
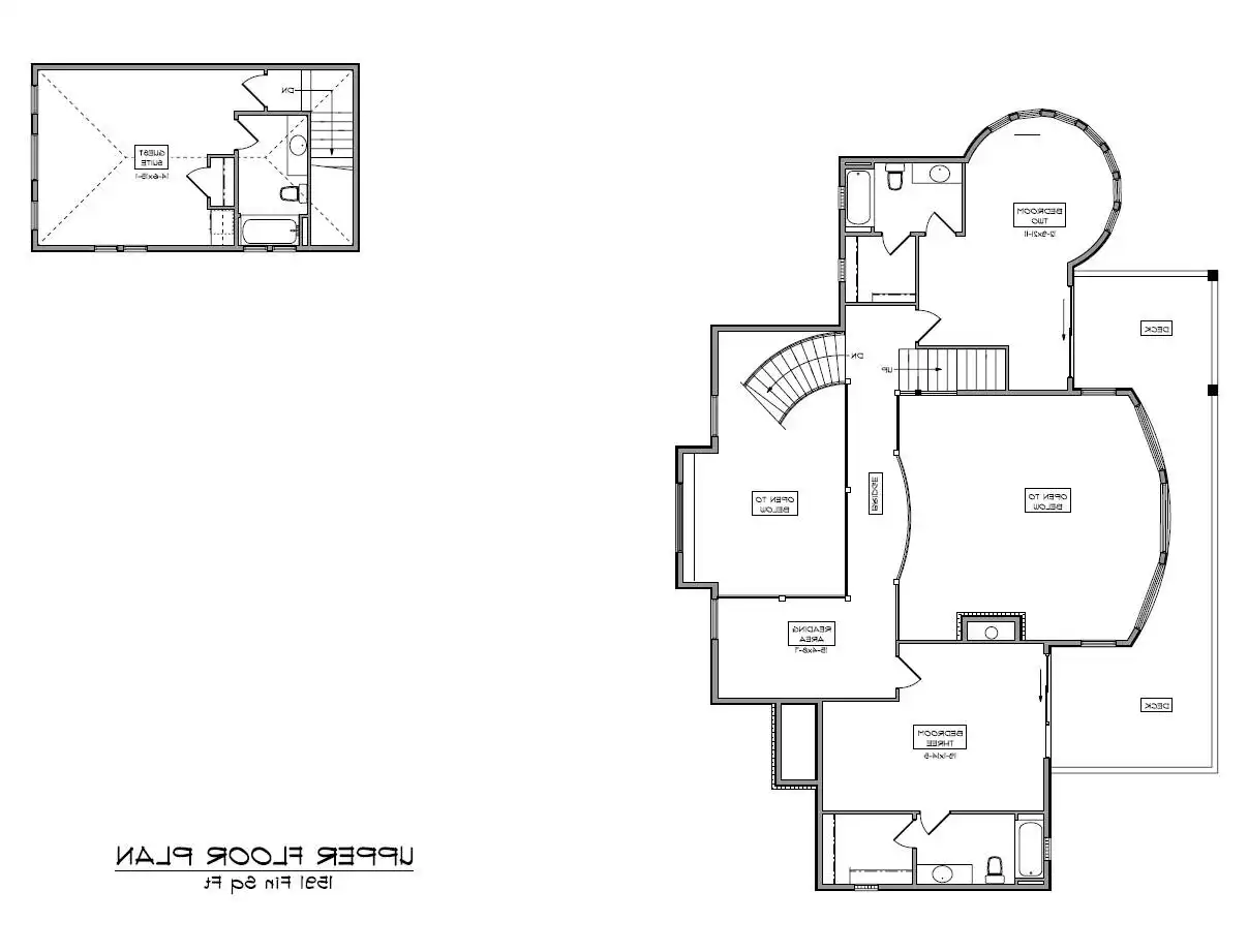
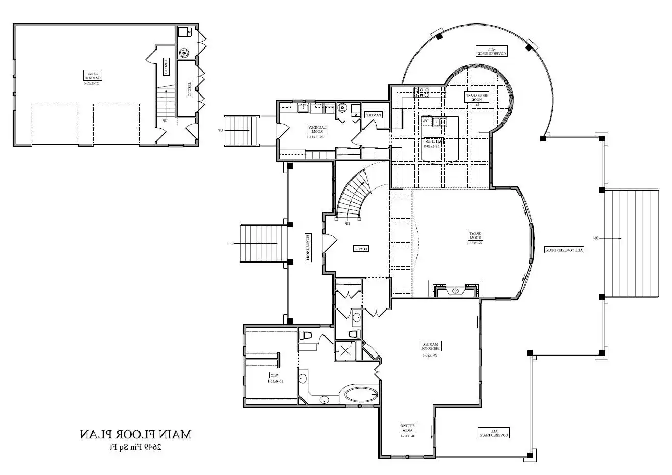
About House Plan 11584:
This charming 4,382 square foot plan blends Modern, Craftsman, and Traditional influences for a timeless design. The open concept main floor features a welcoming foyer, a spacious great room, and a gourmet kitchen with a large island and butler’s pantry. A cozy nook offers a sunny space for casual dining, while the formal flow ensures easy entertaining. The main-floor primary suite includes dual closets, a soaking tub, and a private sitting area for relaxation. Three additional bedrooms and a loft provide space for family or guests. The covered rear porch with a fireplace extends living outdoors, creating the perfect retreat for any season. This home brings together comfort, character, and enduring charm in every detail.
House Plan Pricing
STEP 1 Select Your Package

PDF Single Build


Digital plans emailed to you in PDF format that allows for printing copies and sharing electronically with contractors, subs, decorators, and more. This package includes a license to build the home one time.

PDF Single Build $2,950
Most recommended package

PDF Unlimited Build


Digital plans with an unlimited build license emailed in PDF format, that allows for printing copies on a home printer or local print shop and sharing with contractors, subs, decorators and more 

PDF Unlimited Build $4,275
Digital plans including unlimited build license

CAD + PDF Single Build


CAD files are a complete set of construction drawings delivered electronically. They can be used for any type of modification—including major design changes and engineering—and include a release granting permission to modify the plan. Most CAD plan orders are emailed the same or next business day.
 
This package also comes with a PDF set of plans and a copyright release for making modifications and printing unlimited copies.
 
CAD files are provided in .dwg format. For details on the specific CAD program used, please refer to the PLAN DETAILS section located above the floor plan on each plan’s page.

CAD + PDF Single Build $4,650
2D electronic editable computer files

CAD Unlimited Build


CAD files are a complete set of construction drawings delivered electronically. They can be used for any type of modification—including major design changes and engineering—and include a release granting permission to modify the plan. Most CAD plan orders are emailed the same or next business day. CAD files are provided in .dwg format. For details on the specific CAD program used, please refer to the PLAN DETAILS section located above the floor plan on each plan’s page.
CAD Unlimited Build $6,825
2D electronic editable computer files
STEP 2 Need To Reverse This Plan?
STEP 3 CHOOSE YOUR FOUNDATION
STEP 4 OPTIONAL ADD-ONS
Subtotal:
$2950
FREE SHIPPING
 
Plan Details
See All Details
Finished Square Footage
2,649 Sq. Ft.
Main Level:
1,591 Sq. Ft.
Upper Level:
142 Sq. Ft.
Third Level:
4,382 Sq. Ft.
Total:
Room Details
4
Bedrooms:
4
Full Baths:
1
Half Baths:
General House Information
3
Number of Stories:
85' 0"
Width:
115' 6"
Depth:
Single
Dwelling Number:
Unfinished Square Footage
864 Sq. Ft.
Garage:
2221 Sq. Ft.
Porch:
GARAGE
Front
Garage Location:
2
Garage Size:
Exterior Style
Cape Cod
Coastal
Craftsman
Modern
Transitional
Collections
Affordable
First Home
Luxury
Open Floor Plan
Split Bedroom
Foundation
Basement
Crawl Space
Slab
Framing Information
2x6
Exterior Wall Framing:
Roof Pitch
4/12
Primary:
Insulation (R)
House And Ceiling Heights
10
First Floor Ceiling:
9
Second Floor Ceiling:
36' 4"
Maximum House Height:
Key Features
Butler's Pantry
Covered Rear Porch
Detached
Double Vanity Sink
Fireplace
Foyer
Front Porch
Great Room
Guest Suite
His and Hers Primary Closets
Kitchen Island
Laundry 1st Fl
Loft / Balcony
L-Shaped
Primary Bdrm Main Floor
Mud Room
Nook / Breakfast Area
Open Floor Plan
Peninsula / Eating Bar
Separate Tub and Shower
Side-entry
Sitting Area
Split Bedrooms
Suited for corner lot
Walk-in Closet

Our Guarantees

  • Only the highest quality plans
  • Int’l Residential Code Compliant
  • Full structural details on all plans
  • Best plan price guarantee
  • Free modification Estimates
  • Builder-ready construction drawings
  • Expert advice from leading designers
  •  PDFs NOW!™ plans in minutes
  • 100% satisfaction guarantee
  • Free Home Building Organizer