15% off ALL House Plans Sitewide
15% off ALL House Plans Sitewide

House Plan: DFD-11613

See All 6 Photos > (photographs may reflect modified homes)
© copyright by designer
SQ FT
1,998
BEDS
3
BATHS
2.5
STORIES
1
CARS
2
HOUSE PLANS SALE 
START AT  $1,185.75
For questions and help, live chat, email or call us at 877-895-5299
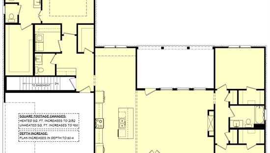
Floor Plans
Click to Zoom In on Floor Plan
 
About House Plan 11613:
With 1,998 square feet of heated space, this home blends openness and function across 3 bedrooms and 2.5 baths. A vaulted ceiling highlights the great room, where a fireplace anchors the open living area and flows naturally into the kitchen and dining spaces. The kitchen is well appointed with an island, walk-in pantry, peninsula eating bar, and a bright breakfast nook ideal for casual meals. The main-floor primary bedroom serves as a peaceful retreat with a spacious walk-in closet and a bath featuring double vanities, a separate tub, and shower. Secondary bedrooms are thoughtfully separated to enhance privacy and comfort. Outdoor living is enhanced by a covered rear porch, making this home well suited for both entertaining and quiet evenings at home.
House Plan Pricing
STEP 1 Select Your Package

PDF Single Build


Digital plans emailed to you in PDF format that allows for printing copies and sharing electronically with contractors, subs, decorators, and more. This package includes a license to build the home one time.

PDF Single Build $1,395
Most recommended package

5 Printed Sets + PDF


Includes 5 physical printed blueprint sets, shipped free via UPS within the U.S. Printed sets ship within 1 business day and are delivered within 3 – 5 business days. A complimentary PDF plan set is also emailed within 1 business day for easy sharing and local printing. These plans may be used to construct one home.

5 Printed Sets + PDF $1,645
5 Printed Sets + PDF

PDF Unlimited Build


Digital plans with an unlimited build license emailed in PDF format, that allows for printing copies on a home printer or local print shop and sharing with contractors, subs, decorators and more 

PDF Unlimited Build $2,095
Digital plans including unlimited build license

CAD + PDF Unlimited Build


This plan package is created in AutoCAD and delivered in .DWG format. CAD files are intended for use by design professionals, structural engineers, and builders to update plans for local building codes or to make revisions based on specific needs, lot requirements, and budget considerations. A complimentary PDF copy is included with this package for reference. CAD packages are delivered within 1 to 2 business days.
 
This package also comes with a multi-use building license, granting permission to construct the home an unlimited number of times, along with a copyright release for making revisions and printing unlimited copies.
 
For details on the specific CAD program used, please refer to the PLAN DETAILS section located above the floor plan on each plan page.

CAD + PDF Unlimited Build $2,495
2D electronic editable computer files
STEP 2 Need To Reverse This Plan?
STEP 3 CHOOSE YOUR FOUNDATION
STEP 4 OPTIONAL ADD-ONS
Subtotal:
$1395
FREE SHIPPING
 
Plan Details
See All Details
Finished Square Footage
1,998 Sq. Ft.
Main Level:
1,998 Sq. Ft.
Total:
Room Details
3
Bedrooms:
2
Full Baths:
1
Half Baths:
General House Information
1
Number of Stories:
70' 10"
Width:
56' 0"
Depth:
Single
Dwelling Number:
None
Bonus Access:
Unfinished Square Footage
606 Sq. Ft.
Garage:
30 Sq. Ft.
Storage:
298 Sq. Ft.
Porch:
63 Sq. Ft.
Front Porch:
235 Sq. Ft.
Rear Porch:
GARAGE
Front
Garage Location:
2
Garage Size:
Exterior Style
Contemporary
Country
Ranch
Collections
Kitchens
Primary Suites
Open Floor Plan
Split Bedroom
Foundation
Basement
Crawl Space
Slab
Walkout Basement
Framing Information
Stick
Roof Framing:
2x4
Exterior Wall Framing:
Roof Pitch
8/12
Primary:
3/12
Secondary:
Roof Load
30
Live:
10
Dead:
Insulation (R)
House And Ceiling Heights
9
First Floor Ceiling:
21' 0"
Maximum House Height:
Key Features
Attached
Covered Rear Porch
Dining Room
Double Vanity Sink
Fireplace
Great Room
Kitchen Island
Laundry 1st Fl
Primary Bdrm Main Floor
Mud Room
Nook / Breakfast Area
Open Floor Plan
Peninsula / Eating Bar
Separate Tub and Shower
Side-entry
Split Bedrooms
Storage Space
Suited for corner lot
Vaulted Great Room/Living
Walk-in Closet
Walk-in Pantry

Our Guarantees

  • Only the highest quality plans
  • Int’l Residential Code Compliant
  • Full structural details on all plans
  • Best plan price guarantee
  • Free modification Estimates
  • Builder-ready construction drawings
  • Expert advice from leading designers
  •  PDFs NOW!™ plans in minutes
  • 100% satisfaction guarantee
  • Free Home Building Organizer