20% off ALL House Plans Sitewide
20% off ALL House Plans Sitewide

House Plan: DFD-11629

See All 15 Photos > (photographs may reflect modified homes)
© copyright by designer
SQ FT
1,555
BEDS
3
BATHS
2.5
STORIES
2
CARS
0
HOUSE PLANS SALE 
START AT  $916.00
For questions and help, live chat, email or call us at 877-895-5299
Floor Plans
Click to Zoom In on Floor Plan
 
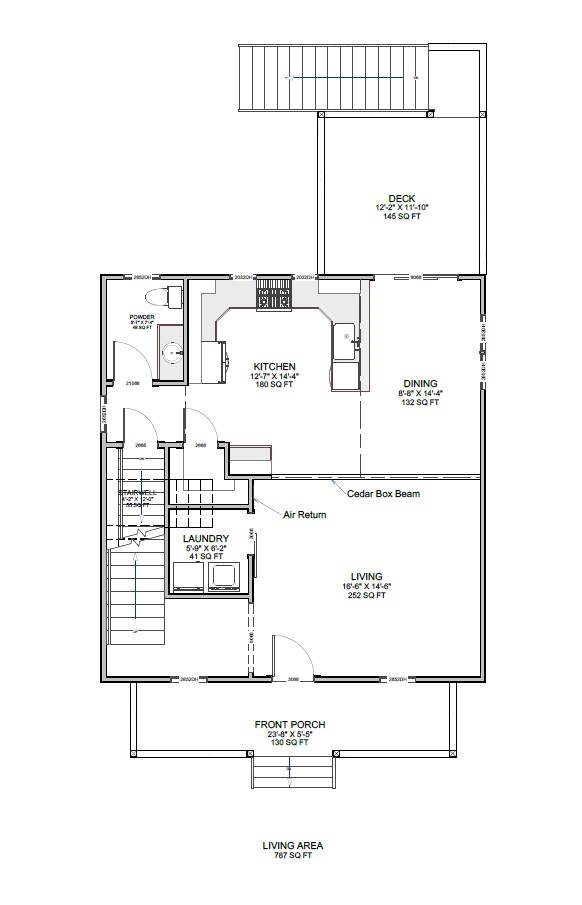
About House Plan 11629:
This 1,555 square foot Traditional-style home brings timeless appeal and efficient living together beautifully. A covered front porch welcomes you into an inviting main level with open dining and gathering areas. The U-shaped kitchen and walk-in pantry offer plenty of space for meal prep and storage. Upstairs, the primary suite provides privacy and comfort with a large walk-in closet and dual vanity bath. Two additional bedrooms create space for family or guests. The deck and covered porch offer outdoor enjoyment in every season. This well-balanced plan captures the warmth and ease of family living in a classic design that feels like home.
House Plan Pricing
STEP 1 Select Your Package

PDF Single Build


Digital plans emailed to you in PDF format that allows for printing copies and sharing electronically with contractors, subs, decorators, and more. This package includes a license to build the home one time.

PDF Single Build $1,145
Most recommended package

PDF Unlimited Build


Digital plans with an unlimited build license emailed in PDF format, that allows for printing copies on a home printer or local print shop and sharing with contractors, subs, decorators and more 

PDF Unlimited Build $1,645
Digital plans including unlimited build license

CAD + PDF Unlimited Build


CAD files are a complete set of construction drawings delivered electronically. They can be used for any type of modification—including major design changes and engineering—and include a release granting permission to modify the plan. Most CAD plan orders are emailed the same or next business day.
 
This package also comes with a PDF set of plans and a multi-use building license, granting permission to construct the home an unlimited number of times, along with a copyright release for making modifications and printing unlimited copies.
 
CAD files are provided in .dwg format. For details on the specific CAD program used, please refer to the PLAN DETAILS section located above the floor plan on each plan’s page.

CAD + PDF Unlimited Build $2,145
2D electronic editable computer files
STEP 2 Need To Reverse This Plan?
STEP 3 CHOOSE YOUR FOUNDATION
STEP 4 OPTIONAL ADD-ONS
Subtotal:
$1145
FREE SHIPPING
 
Plan Details
See All Details
Finished Square Footage
787 Sq. Ft.
Main Level:
768 Sq. Ft.
Upper Level:
787 Sq. Ft.
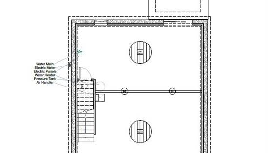
Lower Level:
1,555 Sq. Ft.
Total:
Room Details
3
Bedrooms:
2
Full Baths:
1
Half Baths:
General House Information
2
Number of Stories:
27' 10"
Width:
51' 7"
Depth:
Single
Dwelling Number:
Unfinished Square Footage
183 Sq. Ft.
Porch:
GARAGE
0
Garage Size:
Exterior Style
Country
Traditional
Collections
Affordable
Budget
First Home
Foundation
Basement
Crawl Space
Daylight Basement
Monolithic Slab
Slab
Walkout Basement
Framing Information
Stick
Roof Framing:
2x4
Exterior Wall Framing:
Roof Pitch
9/12
Primary:
4/12
Secondary:
Insulation (R)
House And Ceiling Heights
8
First Floor Ceiling:
8
Second Floor Ceiling:
28' 6"
Maximum House Height:
Key Features
Covered Front Porch
Deck
Dining Room
Double Vanity Sink
Family Style
Laundry 1st Fl
Primary Bdrm Upstairs
Suited for corner lot
U-Shaped
Walk-in Closet
Walk-in Pantry

Our Guarantees

  • Only the highest quality plans
  • Int’l Residential Code Compliant
  • Full structural details on all plans
  • Best plan price guarantee
  • Free modification Estimates
  • Builder-ready construction drawings
  • Expert advice from leading designers
  •  PDFs NOW!™ plans in minutes
  • 100% satisfaction guarantee
  • Free Home Building Organizer