20% off ALL House Plans Sitewide
20% off ALL House Plans Sitewide

House Plan: DFD-11637

See All 7 Photos > (photographs may reflect modified homes)
© copyright by designer
SQ FT
1,758
BEDS
3
BATHS
2.5
STORIES
1
CARS
3
HOUSE PLANS SALE 
START AT  $1,000.00
For questions and help, live chat, email or call us at 877-895-5299
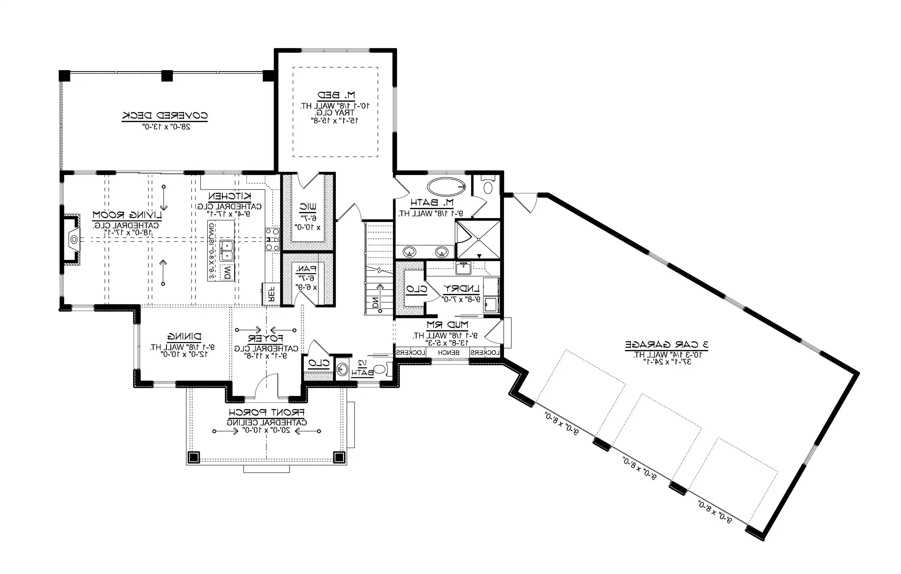
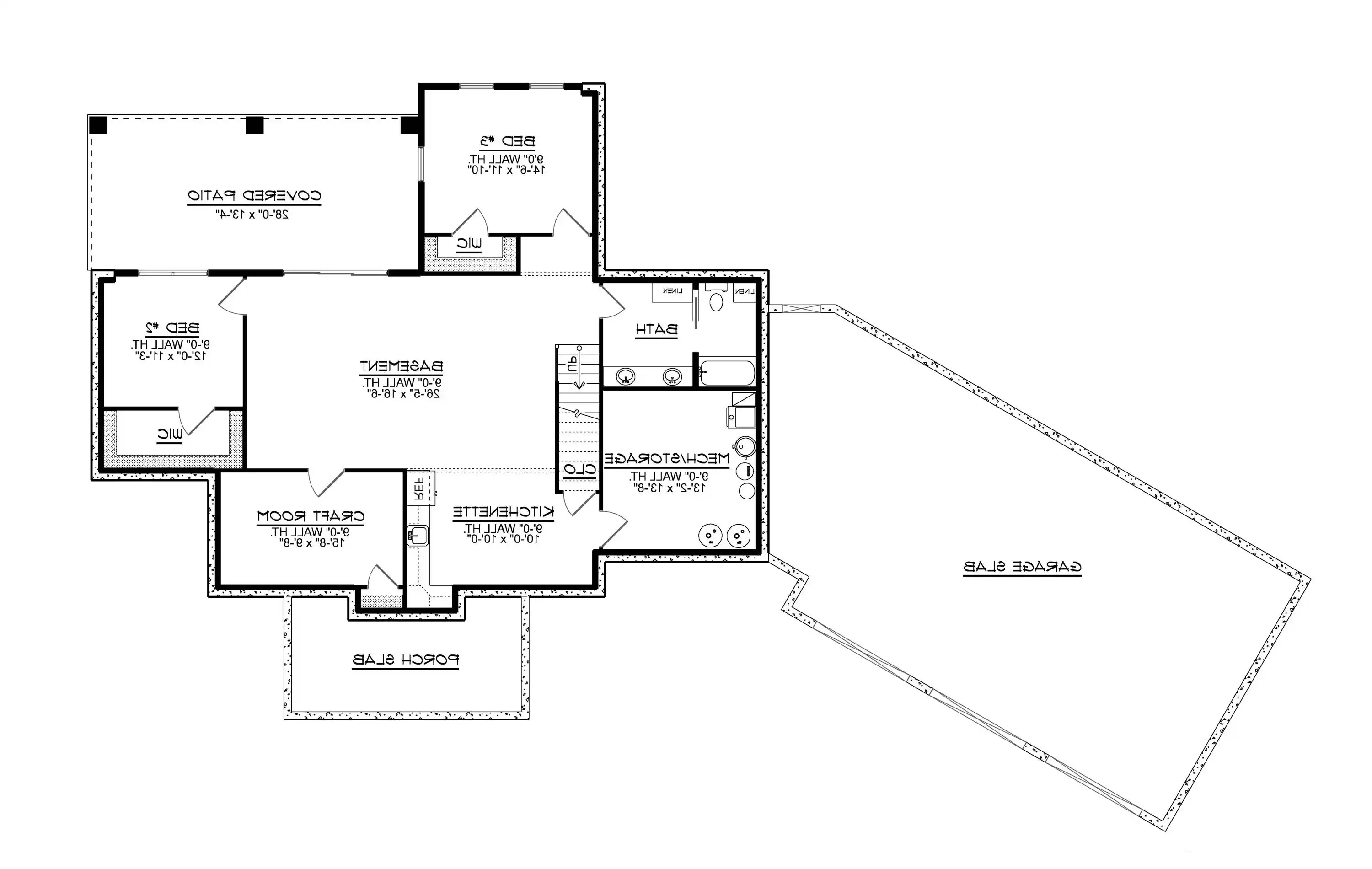
Floor Plans
Click to Zoom In on Floor Plan
 
About House Plan 11637:
House Plan 11637 showcases a modern Craftsman aesthetic with strong architectural lines, natural materials, and a welcoming front porch. Inside, the open living and kitchen area features cathedral ceilings and expansive windows that bring in abundant natural light. The kitchen is designed for efficiency and entertaining, with a central island, walk-in pantry, and easy access to dining and outdoor spaces. The primary suite offers a private retreat with generous closet space and a well-appointed bathroom. A mudroom, main-level laundry, and three-car garage support everyday organization. The walkout basement adds valuable living space with additional bedrooms, a kitchenette, and flexible rooms for hobbies or guests. This modern Craftsman house plan delivers both style and function for today’s lifestyles.
House Plan Pricing
STEP 1 Select Your Package

PDF Single Build


Digital plans emailed to you in PDF format that allows for printing copies and sharing electronically with contractors, subs, decorators, and more. This package includes a license to build the home one time.

PDF Single Build $1,250
Most recommended package

5 Printed Sets + PDF


Includes 5 physical printed blueprint sets, shipped free via UPS within the U.S. Printed sets ship within 1 business day and are delivered within 3 – 5 business days. A complimentary PDF plan set is also emailed within 1 business day for easy sharing and local printing. These plans may be used to construct one home.

5 Printed Sets + PDF $1,600
5 Printed Sets + PDF

PDF Unlimited Build


Digital plans with an unlimited build license emailed in PDF format, that allows for printing copies on a home printer or local print shop and sharing with contractors, subs, decorators and more 

PDF Unlimited Build $1,850
Digital plans including unlimited build license

CAD + PDF Single Build


This plan package is created in AutoCAD and delivered in .DWG format. CAD files are intended for use by design professionals, structural engineers, and builders to update plans for local building codes or to make revisions based on specific needs, lot requirements, and budget considerations. A complimentary PDF copy is included with this package for reference. CAD packages are delivered within 1 to 2 business days.
 
This package also comes with a copyright release for making revisions and printing unlimited copies.

For details on the specific CAD program used, please refer to the PLAN DETAILS section located above the floor plan on each plan page.

CAD + PDF Single Build $2,300
2D electronic editable computer files

CAD + PDF Unlimited Build


This plan package is created in AutoCAD and delivered in .DWG format. CAD files are intended for use by design professionals, structural engineers, and builders to update plans for local building codes or to make revisions based on specific needs, lot requirements, and budget considerations. A complimentary PDF copy is included with this package for reference. CAD packages are delivered within 1 to 2 business days.
 
This package also comes with a multi-use building license, granting permission to construct the home an unlimited number of times, along with a copyright release for making revisions and printing unlimited copies.
 
For details on the specific CAD program used, please refer to the PLAN DETAILS section located above the floor plan on each plan page.

CAD + PDF Unlimited Build $2,850
2D electronic editable computer files
STEP 2 CHOOSE YOUR FOUNDATION
STEP 3 OPTIONAL ADD-ONS
Subtotal:
$1250
FREE SHIPPING
 
Plan Details
See All Details
Finished Square Footage
1,758 Sq. Ft.
Main Level:
1,758 Sq. Ft.
Lower Level:
1,758 Sq. Ft.
Total:
Room Details
3
Bedrooms:
2
Full Baths:
1
Half Baths:
General House Information
1
Number of Stories:
104' 6"
Width:
64' 1"
Depth:
Single
Dwelling Number:
Unfinished Square Footage
1146 Sq. Ft.
Garage:
180 Sq. Ft.
Porch:
369 Sq. Ft.
Deck:
GARAGE
Side
Garage Location:
3
Garage Size:
Exterior Style
Country
Craftsman
Modern Farmhouse
Collections
Open Floor Plan
Split Bedroom
Foundation
Basement
Crawl Space
Slab
Walkout Included
Framing Information
Truss
Roof Framing:
2x6
Exterior Wall Framing:
Roof Pitch
8/12
Primary:
3/12
Secondary:
Insulation (R)
19
Exterior Wall:
36
Ceiling:
House And Ceiling Heights
9
First Floor Ceiling:
18' 11"
Maximum House Height:
Key Features
Attached
Covered Front Porch
Double Vanity Sink
Fireplace
Foyer
Front-entry
Kitchen Island
Laundry 1st Fl
L-Shaped
Primary Bdrm Main Floor
Mud Room
Open Floor Plan
Outdoor Living Space
Separate Tub and Shower
Split Bedrooms
Suited for sloping lot
Suited for view lot
Walk-in Closet
Walk-in Pantry

Our Guarantees

  • Only the highest quality plans
  • Int’l Residential Code Compliant
  • Full structural details on all plans
  • Best plan price guarantee
  • Free modification Estimates
  • Builder-ready construction drawings
  • Expert advice from leading designers
  •  PDFs NOW!™ plans in minutes
  • 100% satisfaction guarantee
  • Free Home Building Organizer

See terms opt out anytime